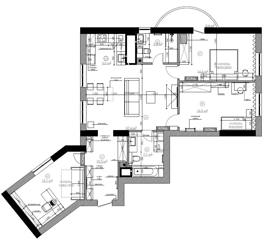
Taras Belik新作,面积110㎡,天花板高度2.98米,设计师用低调诠释奢华,用理性诠释睿智,以简洁手法打造自然、质朴典雅的空间,既艺术又有格调并带有明显的设计气质。
开放式的设计布局,将客厅、厨房、餐厅和休息区融合在一起,设计师
选择传统的家具布置,在电视前放了一张沙发,
旁边有两个咖啡桌,电视下方是一个低矮的抽屉柜,用于存放书籍。
吸顶灯的光线非常舒适,并将空间划分为两个不同的功能区域(饭厅和休息室)。室内的色彩是优雅,是时尚,也是都市生活的居家与惬意。
屋主米色为主色调,同时他们的女儿也喜欢绿色,于是设计师建议使用米色和绿色搭配。简约实用的衣柜
引起了非常受业主的欢迎,
有助于女业主不用花费大量时间去整理。
卫生间色调相近但纹理不同,起了丰富的视觉作用,隐藏的照明布满整个空间,给人一种漂浮的错觉。“潮湿”区域的地板,选择了西班牙工厂生产的带纹理的防滑砖。
实现功能与美感的结合,简约的线条,将实用与美观做到了极致。
在创建卧室内饰时,了解业主的需求尤为重要,
也许这是公寓中唯一的非公共空间。以浅灰色和原木色的完美交织,梳妆台靠近窗户,
自然光线充足,舒适惬意
屋主的女儿很喜欢绿色,于是设计师以绿色为主调,在设计师看来,这种颜色与自然紧密相关,选择了带有花卉图案的挂画,并添加了花纹形状的枕头,从而增强了室内的自然动力。
家庭办公室,符合个人习惯的布局是非常重要的。简洁舒适,没有过多的装饰,工作室里的收纳设计也是值得关注,常用的物品、资料需要妥善保管,也需要拿取方便。
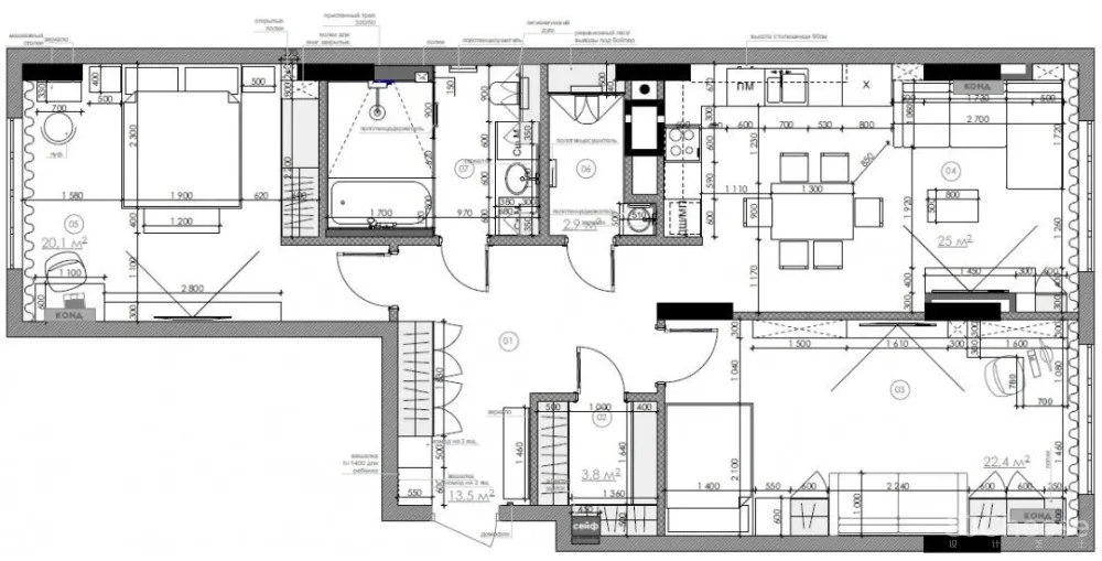
Taras Belik
Taras Belik,室内设计师,BELIK工作室的创始人,对使用天然材料,不寻常的纹理以及表面触感舒适的现代室内装饰感兴趣,对设计领域的创新技术感兴趣,有助于创造舒适的家居空间。
Taras Belik为一家三口设计的公寓,面积100㎡,线条清晰,金属元素,天然木质和浅灰色,这种风格贯穿整个公寓,令人印象深刻。

