“小楼昨夜听风雨,小巷明朝卖杏花。”印象中的江南烟雨濛濛,飞花若梦,生活亦应如梦。


崇尚交流与互动,为室主人营造多种生活的可能性是这个空间的精髓。

白墙粉黛的水墨江南、柳叶飘雨的古城嘉兴,被设计师巧妙的搬入到居室之中。



用素净优雅来诠释东方美学是设计师想要呈现出来的效果,相较于沉稳的中式,这种手法似乎更符合嘉兴人的气质。



软装的黄、蓝色调点睛之作则来自江南的春天色彩,记忆中的江南蓝花布,将江南水乡自然、人文之美带进居室生活中。

垂落而下的玻璃灯像雨滴般编织梦幻的花语江南,丝丝溶入地毯的江河之中,带来梦幻与诗意,使人仿佛游走在江南的烟雨中,时间被静止,舒服又惬意。

设计充分利用地下空间超高的挑空,塑造出优越、仪式性的生活空间效果,配以典雅的材质及高耸的书架让人眼前一亮。




就地下生活空间而言,设计不只是关注会客的基本功能,更把目光投向未来室主人的生活方式。



会客厅巧妙地连结吧台区与书房品茗区,每个空间看似独立却又相互串联。


生活空间需要有业主自己的生活气质,而设计师要做的,就是帮他们把天马行空的想法、喜好、个性化需求整理出来。


在静逸雅致的庭院中平和身心,品位生活中的闲适情趣。



壁纸配以柔和稳重、不事张扬的“高级灰”,仿佛可以看见居者身上所散发出的柔和低调、优雅的江南气质。


烟雨、诗词,这是记忆中的江南;白墙、黛瓦、青石板路,印象中的江南;江南的清幽、宁静、典雅、婉约,岁月的底蕴、文化的熏陶。

将中式风格与现代东方相互糅合,为业主勾勒出了个有态度的生活美学之家。

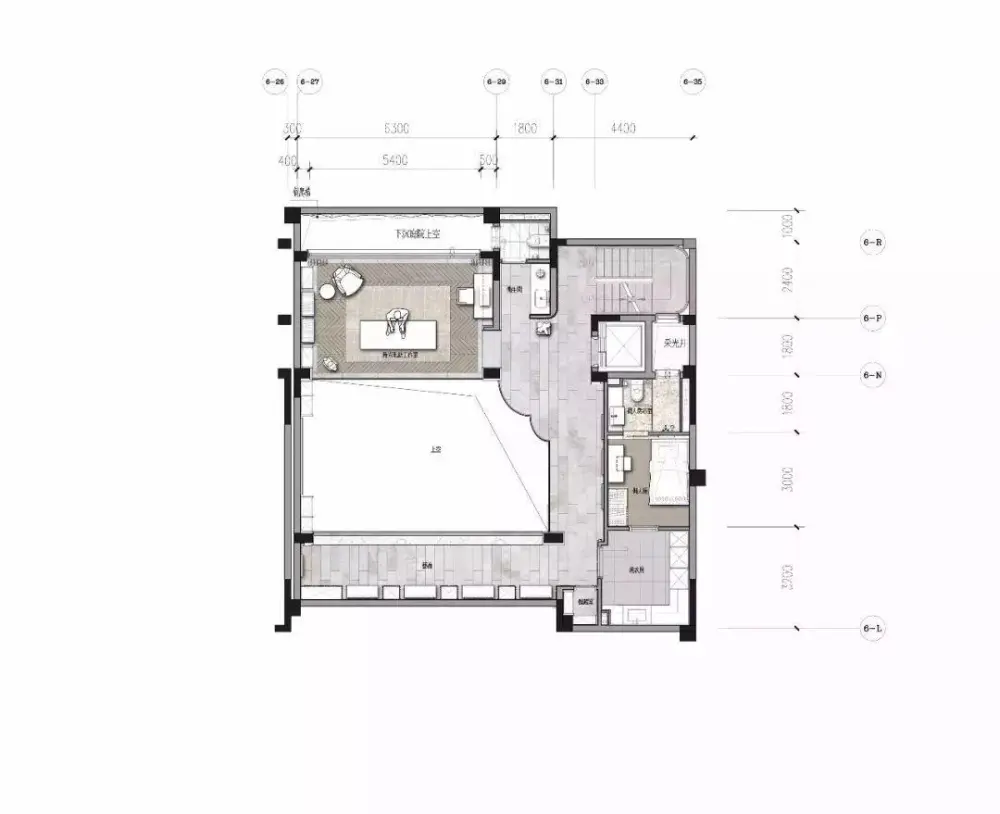
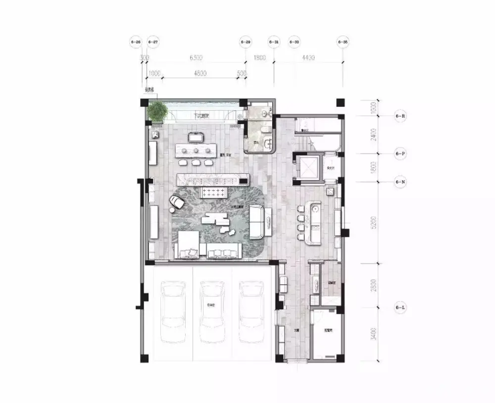
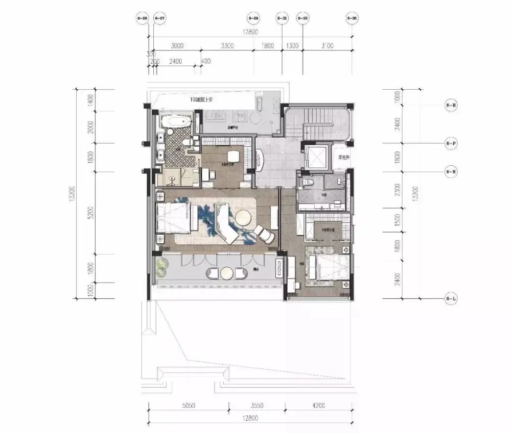
一层平面图

二层平面图

地下室平面图

夹层平面图
项目名称:嘉兴花语江南北区合院项目
设计事务所:邱德光设计事务所
主创人员:邱德光、江晋栩、陈惠君
设计团队:庄媛婷、林唯欣、林佩玲 、江鎷如、 姚道元
项目管理:朱晓东、夏梦
家具主要品牌: T.K HOME
项目地点:浙江省嘉兴市
摄影:ingallery 金啸文
原文始发于微信公众号( 室内设计秀 ):中式与现代的糅合 | 勾勒生活美学