对于生活的重视却从未改变
这个家的故事,从两人开始说起,
如今成了四个人一起写的故事,业主夫妇为了家里的小朋友放弃了市区的繁华,选择了更切近自然的郊区别墅,
这栋位于台湾省新竹的郊区别墅,
由北欧建筑做设计与施工。
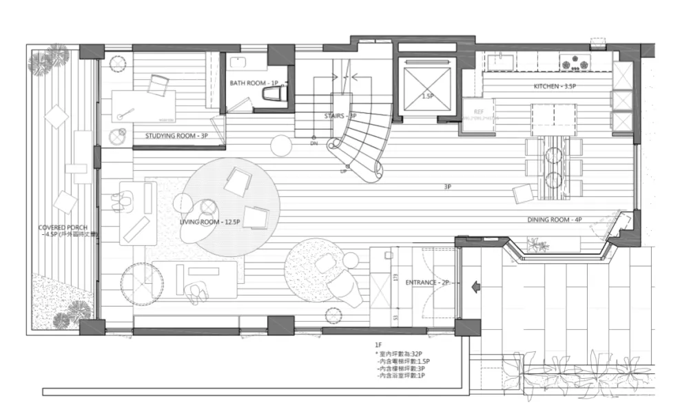
映入眼帘是宽敞的起居间,
以简约灰阶的自然色调基底,
不见传统的电视与沙发面对面的摆设,改以躺椅、两个单椅,为的是屋主一家可以方便接待客人、其中设计的重点在于望向窗外的景致。
从实用性出发,在空间中回应家人的生活习惯,让这个家本身的轻松感不言而喻。
爱阅读的一家人,在这里摆设了高大的书柜,看着家中风景,可以随时拾起一本书,享受耕读般的恬静生活。
起居的空间中,以不过度装饰的空间,呼应着家人的心境,让人在家中可以彻底放空、放松。
起居间与书房之间,拉起了一条空气长廊,让空间更宽广之外,也增进家人互动的趣味性。
随时都可以知道彼此在做什么、增进家人间的交流与情感互动。
主餐厅在1F光明、舒爽的另一角,以温暖如日光的圆弧吊灯照亮餐桌。
开放式厨房是妈妈每天都需要待着的空间,厨房对应着两大扇的窗,可以看到前院有生长茂盛的白水木、多肉植物、丰富层次的绿植。
这里可以随时留意到家人的起居,让女主人的煮菜时光不再是闷着头,而能够面对日常生活的琐碎时,保有心情的愉悦感,幸福感。
空间尺度不大不小,刚好容纳起一家四口的空间。当阳光洒落进来,开启了一天美好!
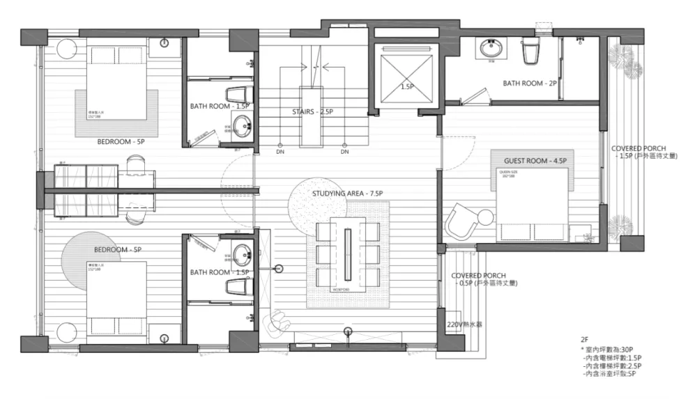
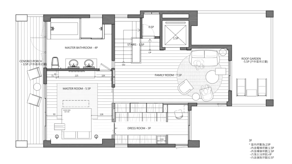
一楼至二楼由回旋楼梯上去,进入私领域,包含家长的主卧、孩子的房间、以及书房。
公私区间的区隔,让个人保有更多的私人空间,每个人皆可以在家中创造属于自己的生活节奏。
一家人的兴趣都喜欢阅读,静谧且书香浓厚的设计风格正是家人所向往的,
因此在书房的设计,营造浓厚的书香气息,自在的阅读与提供孩子宁静质感的⋯
在线条上采以最简洁俐落的切割,让自然光能够伴随着孩子读书的生涯成长。
期望带给还在求学时期的孩子,一个舒适、安稳的读书环境。
书房的转角,也设计了两个休憩的呼吸角落,让孩子偶尔可以坐在上面换个心境阅读。
主卧空间的规划主要在于让空间留白,但在细节中加一点微微的温度。
隐藏灯的设计,仿佛山中的微光,点起夫生活中的微微亮光,在忙碌的生活中,
主卧希望给两人美好相处的空间。
摆设简单的矮柜,摆放几束花束,点缀起平凡生活中的微小浪漫。
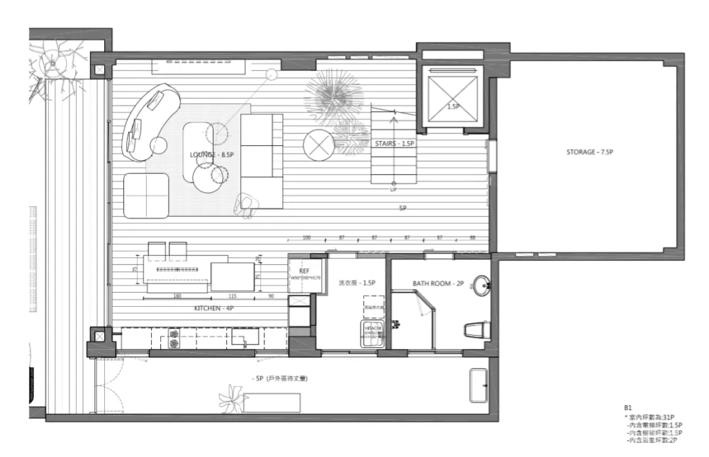
在家中除了放松,少不了娱乐,屋主一家
原先在城市的高楼与近郊别墅中做选择,当看到了这个家的大起居间中,
便知道这是他们要的生活,假日时,孩子们相约与朋友在泳池悠游玩乐。
色调采用深灰色系及丝绒材质丹麦BoConcept的沙发,大中岛与沙发形成平行、平衡的状态,
生活中追求的不过如此,就是在下班、下课后能够尽情放松,达成生活中完美的平衡。
屋主夫妻也能够在次起居间小酌、与三五好友闲话家常,同时也可以安全的看顾着孩子。
静谧的山中夜晚,宽阔泳池是家人搬进来后最舒心的区域,
在成长时期的孩子能够拥有自由宽阔,与大自然紧密连结。
一个家,是父母能给孩子最满足的礼物!
生命是不断变化的旅程,
人的心境、生活环境、不断的调和与重整,让生活的节奏更加轻快。

