该项目是一个多用途空间,将工作室和展示空间结合在一起,出售家具。该物业位于高雄市左营区,是一排排老屋中的一个单元。这座具有36年历史的房屋拥有复古,温暖而诱人的外观,并保留了1960年代流行的错层式平面图。过去的住户已根据自己的需要添加了物品,包括钣金棚和带铁栅栏的窗户。
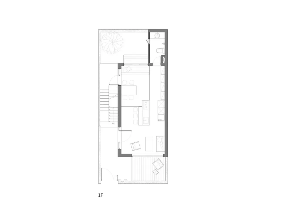
大楼的第一层是11坪(约36平方米)。它的门面狭窄,因此内部光线不充足,遮盖了建筑物原有的美丽外观。我们拆下了内部楼梯,面对街道的铁栅栏窗户和一楼后面的钣金棚屋(这是一个厨房)。我们通过增加外部楼梯和庭院来扩大空间,以使旧房子恢复其原始风格和魅力。
该空间最初被指定为日式家具的工作室和展览空间,但由于平面图的原因,该建筑的三个房间全部由坚固的墙壁隔开,并被楼梯遮挡。整个空间是零散的和不连贯的。
首先,我们移除了分隔交错地板的坚固墙壁,并将楼梯移至户外以扩展结构的内部空间,以使庭院的光线可以进入。我们使用玻璃使光线自由渗透,从而扩大了空间,从而提高了交互性。现在,每个空间都可以与其邻居互动。
为了突出联排别墅的美丽特征(例如窗户的圆形倒角),我们使用白色作为基础,以创建干净整洁的家具展示空间。
至于楼梯,现在是唯一连接各个楼层的东西。为了给上下楼梯增加新的感觉,我们在二楼的落地窗上增加了倾斜度,以便人们在通过室外楼梯走到外面时会踩在三角形的平台上。
这也创建了一个更生动的外观。穿过房子的小路被外部楼梯串在一起,所以居住者和访客都可以穿梭进出,享受探索各种盒装空间的兴奋。

