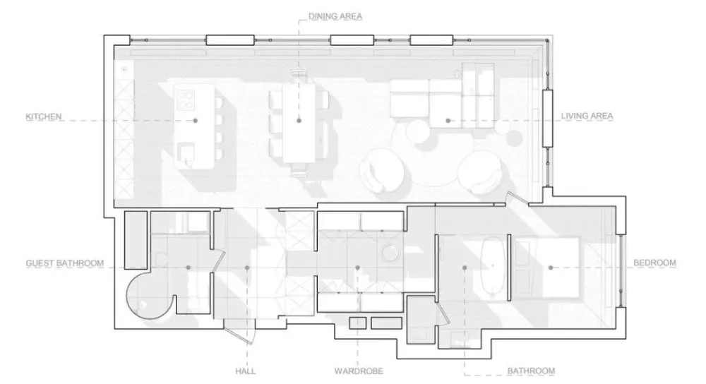
这个公寓位于乌克兰基辅,面积为 114㎡,由 ONE MORE BURO 设计。一室一厅的空间布局,
整体从简单到繁杂、从整体到局部,都被精雕细琢,给人一丝不苟的印象。
玄关的设计选用了较为深色调,换鞋凳、穿衣镜靠墙设计,让出门、归家都更为方便。地面的水磨石更是与整个家的
色彩相似,呈现出别样的质感美
拱形玻璃门,茶色玻璃与金属线条搭配
客厅设计师选用白、黑、
碰撞原木的空间色彩搭配,以最简洁的设计风格,打造出极
墙上巨大的圆形壁灯,让整个画面极具艺术气息。
黑色的木质餐桌搭配多款靠椅,虽然形色各异却
保持了整体色调与美观度
开放式的厨房设计的非常的简练,黑色橱柜内嵌着厨房电器,
中岛台外面包裹着一层光滑的铜镀层
卧室是一个矩形空间,一半空间设计成休息区,一半空间用作卫生间,整体看起来非常有情调。
三分离的卫生间设计,各个空间可分别使用,彼此互不相干。
衣帽间的设计与玄关有几分相似,水磨石地面,茶色玻璃柜门,大面积穿衣镜,带着几分精致时尚的简约美。
次卫设计师利用弧形元素
营造出了一种舒适的氛围,半透明的洗漱台,
黑色水龙头,搭配在一起,
兼顾了实用性与设计美感,室内
每一个造型,每一处细节,
无不体现出屋主人的品位与喜好。
隐藏在柜门后的洗衣机和烘干机堆叠摆放,其余空间全部用来置物,
方便存放一些生活小物件。

