这是一栋坐落于巴西的私人住宅,原建筑由建筑师Rodolpho Ortenblad建于1957年,为了更好的满足居住需求,
对住宅进行了改造,在保持原有特征的基础上,改动了局部空间。
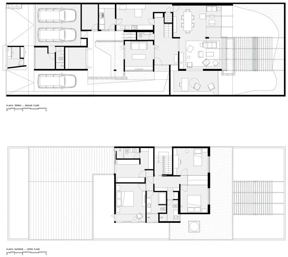
建筑一层设有车库、游戏室、起居空间等,与室外庭院相连,庭院内植被茂盛,空间内的木质元素与建筑内部彼此呼应,呈现出连贯的视觉效果。
门厅的墙板得到修复,置入原有木材做成的矮门,起居空间包括有两个区域的客厅和餐厅。室内设计简约自然,既有新元素的表达,也有原始的痕迹。
▼新壁炉 © Fran Parente
原建筑内曾经带有长椅的花架被拆除,作为庭院内的一大核心设施是曾经整栋住宅的一大特色。值得兴奋的是,根据老照片,设计师在同样的位置复原了这一独特的结构,找回了曾经了画面。
住宅在改造的过程中修复了大部分老旧的原始结构,包括封闭的柱子、天花、木板以及白色框架。破旧的米色石陶瓷立面置入白漆砖。厨房、洗衣房和浴室完全翻新,材料和颜色均参考原有色调,采用米黄色岩石和木材。
值得一提的是,该住宅曾在1960年圣保罗现代艺术沙龙中获奖,并刊登于Marlene Acayaba的《Residências em São Paulo 1947-1975》中。翻新之后的住宅,保留了原始的风格,以更舒适的性能服务居住者。
工程名称:Thompson Hess住宅 坐落地点:巴西 设计单位:Felipe Hess 摄影:© Fran Parente

