1936年的上海法式洋房改造而成的办公空间
Villa Karma是沪上知名创意广告公司KARMA的办公地点,坐落于车水马龙的淮海中路背后。2019年初,将一栋建于1936年的三层法式列式花园新里改造为KARMA的新办公楼。
老房子有着传统的法式竖窗、红砖墙、壁炉烟囱,入口上方镶嵌着优美巴洛克卵圆饰窗洞。在接下该项目之前,原先的设计师和施工队对老房子原始结构和环境做了破坏性拆解,室内的木楼板、粉刷墙皮、门窗套以及院内的大树都被移除,庆幸的是,圆形水池、旧楼梯、壁炉、罗马柱还有几处斑驳的墙皮残存下来。
改建的首要原则是去伪存真,显露时间的层累,并在此基础上形成新的空间基底。此幢房屋的外立面依旧保留着1936年以来最原始的状态,且没有明显的裂缝和损坏之处。原汁原味的法式风格外貌被保留下来,仅拆除外墙面的杂物、清洗污渍,整体做防渗处理,以最轻的介入方式对外立面进行修缮。考虑到密闭性和耐久性,只有一层的木门、门上的圆木窗及楼梯上的两扇木窗被保留,其他门窗则使用细边框的玻璃窗,部分较大窗洞以钢框中转的方式扩大开启面,减少玻璃分隔,形成通透、简洁的效果,同时凸现新旧窗的对比。
在室内,因为原先错误的施工显露出了室内的红砖墙,借此机会,将其展示出来,红砖墙和残留的墙皮被封存在时间的层叠中。结构上,考虑到建筑的使用体验和耐久性问题,原有的木楼板-承重砖墙体系转变为混凝土楼板-钢结构内框架形式,将钢柱置于多处壁炉烟道或半嵌于砖墙内,并在砖墙与钢结构之间设置拉结筋以提高砖墙稳定性。
室内表面是现代的、一张白纸的白,然而又是多样的,抽象的磨砂阳极氧化铝板,光滑的金磨石,背景性的白色涂料墙面与吊顶,新的覆层与旧的基底相缠绕,提供了阅读建筑历史的可能。
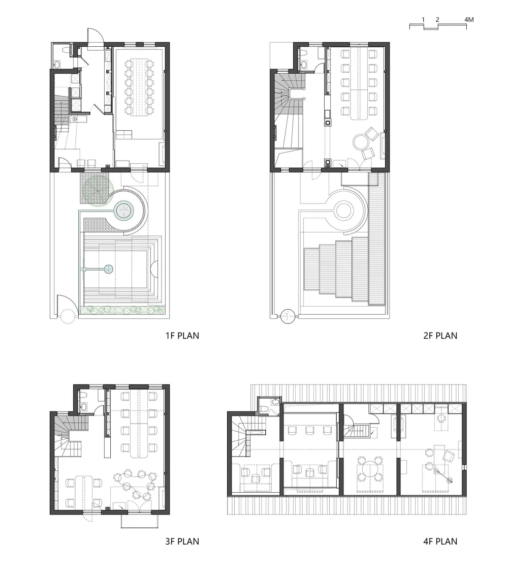
Villa Karma是高度个人化、体现公司内涵的办公场所,我们在空间中试图呈现Karma(轮回)这一概念。首先表现在室内外空间的塑造上。从庭院大门进入,顺着一道矮墙前行,墙的另一头是下沉的水庭。墙角下是汨汨的流水,跟随前进的步伐。行至入口处,水流向右折转,止于一片半弧墙前,指示了花园的入口。
回环一圈后,水流又顺着瀑布落差流到下沉的水庭,回到了矮墙背后。水庭的上方装有可伸缩式雨蓬,纤细的钢柱落在周遭台阶的滑轨上,支撑着上方同样是阶梯式的阳光板雨蓬,从矮墙处逐级抬升至院墙。
收回目光,继续前行,推开入口斑驳的木门,上方卵圆形窗洞投下一道阳光,顺着光的方向,一截木质楼梯引入前行。在楼梯上方起始处,折线形的装饰灯带追随人的脚步点亮。
灯光一路上行,穿越一、二、三楼,收束于新加的阁楼层,结束了这一垂直方向上的旅行。区别于保留的木楼梯,新增楼梯的结构做了新的演绎,取消梁和柱,使用不锈钢板焊接自承重的方式,呈现了通向屋顶的轻盈。
如若回到二层,在罗马柱界定的客厅区域之外,借用木质楼梯的形式延伸发散,形成能够休憩、灵活办公、小型讲座发布的阶梯式区域。它也可以被看作是二层地面的扩展,使用了相同的金磨石材料。
同时,从正对着的法式竖窗往外看去,室内的大台阶与庭院内的伸缩式雨棚以“阶梯”元素相互呼应,而一楼的入口空间逐级升高的阶梯状吊顶与它们再次呼应。
▲大台阶雨棚阶梯吊顶关系
由于广告公司创意性工作、时常加班和国际化的运作模式,以及“加班不那么沉闷”的诉求。有别于日光在老洋房斑驳红砖上投下的岁月端庄,我们特意增加了一层“外来”的颜色,它被设定为薄薄的、似有似无的、捉摸不定的“轻纱”。
室外常用的RGBW洗墙灯置于室内,光色薄涂于空间的表面上,根据需求瞬息万变,或是广告提案主题色的发布、或是客户来访的欢迎动画、或是具有节日氛围的聚会,不一而足。
员工工位与会议桌设计了独立控制的桌面办公照明,在不影响正常工作的前提下,彩色灯光的加入改变了夜间办公室的整体氛围。
▲彩色光不影响办公照明
这一光的律动也蔓延到入口水池与下沉水庭,用光去延续与塑造室内外空间的关系。
日常固定光的真与临时彩色光的假构成了虚实交汇的景象,觥筹交错,人生如戏。
Karma也是对广告公司logo的反复演绎,它可以被看作一个站立行走的人,也可以是一张闭眼沉思的脸,甚至可以是书法“永”字的变体,其变体散落在房子的各个角落,成为一种重复的诉说。庭院大门上方的半球门灯是遇见的第一个logo,暗示进入了循环之地;一进入室内,楼梯旁的logo迎面而来,上到三楼,它演化成一张桌子台面的构成母题。
▲karma logo
原办公室内的logo装置改造后作为过滤装置固定在水池中,在“脑回路”里种植水边植物,缓缓涌出的小喷泉是水流的起始,意味文思泉涌、创意不断;下沉水庭再次出现了logo那张似笑非笑的脸,作为水流的收束。
除了logo,Karma也通过不断收缩回旋的阶梯来加以暗示。阁楼的连续拱形门洞,下沉庭院的四界和雨蓬,二层扩展的阶梯平台,楼梯灯带起始处和收尾的装饰性阶梯,层层向上的艺术吊灯,甚至办公桌的桌腿形式、讨论椅、画框的留白、花瓶,都是对这一母题的三令五申,将Karma的概念在设计语言中推向极致。

