Trendy House
这套住宅位于麓湖边上,身处山林、草地、湖泊之间,自然环境十分优美的迷人居所。
屋主是一对年轻夫妇,他们从事设计相关行业,喜欢旅游、喜欢自然,收集潮玩,
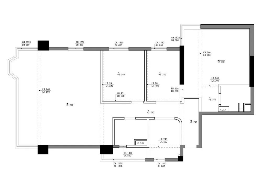
设计师由此切入空间的设计,在这一套建筑面积为171平方米的住宅打造了一处具有极简主义和潮流时尚居住空间。
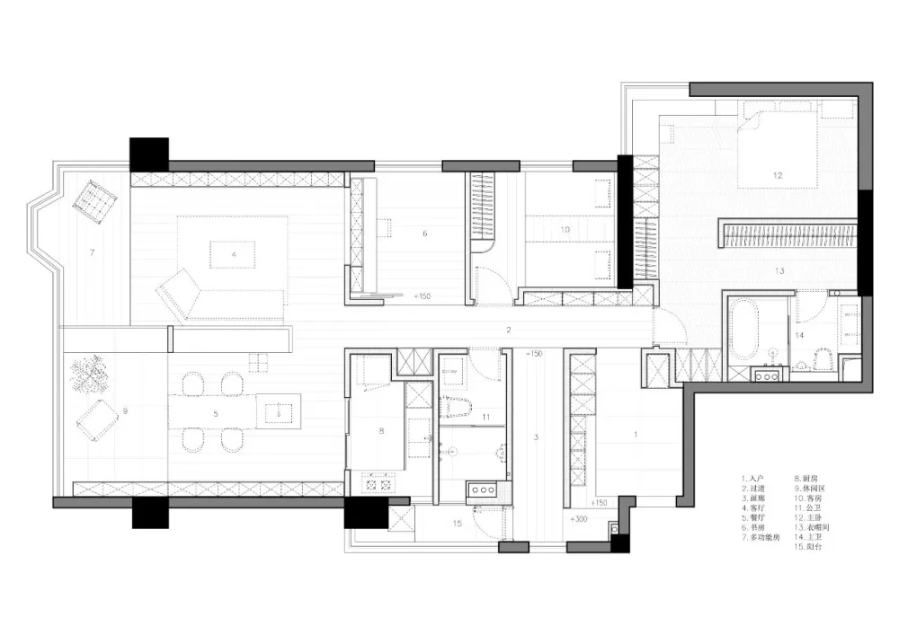
设计从住宅入口入手,玄关处地面采用水磨石地砖,对空间进行分区。整面洞洞板与深浅柜设计,开放与私密的结合。
镜面的使用,让原本狭长的空间更加通透又可丰富空间层次,颜色及肌理的对比,是一种趣味,更是一种艺术的演绎,面与面、线与线之间的联系,优雅的结构处理方式,营造了一种极简气氛。
从入口一直延伸到底的长廊,串联起包括画廊、次卫在内的居住空间,利用白色柜体与木饰面将房门隐藏在内,直通客餐厅,它们位于住宅的尽头,从这里望去,麓湖的美丽景致尽收眼底。
空间整体采用经典的黑白木色调,展现亲近自然之感,
整个房间看上去好像一件艺术品,空间的概念与生活空间的自然、纯净之美融为一体。
空山基机械霸王龙、KAWS玩偶、专为千年隼定做的茶几,无疑能让客厅增加趣味性与灵动感,代表着屋主对设计与艺术的热爱,让整体空间充满时尚。
整体空间营造一种自然朴质又富有气质的极简设计,木色与黑白色调的融合,赋予空间无限的想象,同时兼顾艺术及品味,让人感受到家的温暖,真正体验舒适的生活氛围。
架高的地台为空间做了分割,延伸了视觉感受,让空间有了生趣与生活的味道。
周末的闲逸午后,随手从架上取下一本书席地而坐,看阳光在缓缓推移,享受着无时间感的宁静。
柔软的写意懒人沙发,创造一种自由的个性化设计,空间的简洁性并不会影响住宅的质量和舒适性,而家具风格的简单、低调,则进一步迎合了屋主的生活方式。
木色温润,爵士白清爽,黑色跳跃,大面积原木色桌面与白色柜体吧台给予视觉的舒适。静与动、黑与白,方形桌和圆形灯的碰撞,是藏在舒适下的灵动。
一面木饰面一面水泥漆,形成小型画廊,它是这套空间的亮点之一,
底部暗藏灯带,顶部轨道灯,扭动开关,整墙藏品随之点亮,宛如屋主精神乐园的展厅。
书桌与吊柜中间做了镂空的处理,犹如借景空间营造出一种微妙的变化,实现了半开放式的空间互通。
干净、整洁、素朴的灰色墙面与浅色的木元素构成了一种纯净的语音,遍布空间各处,将人们的注意力引向对材质本身的思考与感受。
主卧也安装了隐形门,拉开隐形门,便可进入主卧。
利用鱼骨拼接的木地板来区分主卧,用到顶柜体做为隔墙,将卧室分隔成睡眠区与衣帽收纳区,木饰面与白色烤漆板的交错融合。
线条的干净利索,组合成衣柜、书桌、床头柜、床头背景墙一体的设计,这个住宅的主色调给人一种温暖、舒适的感觉,力求实现与简约空间造型的完美平衡。
木地板与饰面成为卧室空间的主导材料,从公共区域延伸贯穿至主卧,营造出空间的一致性,在材料和家具的选择上,设计师也花费了大量精力,以确保他们的实用性和人性化。
主卫墙面与地面采用水磨石砖一体设计,在视觉效果上更为整体,干湿分离,悬空洗手台分为上下两层,增大可利用空间,美观也可摆放常用物品,鹅蛋型哑光浴缸,弧形优美,让卫浴空间散发出不一样的视觉魅力。
ABOUT PROJECT
项目面积 | 171㎡
设计机构 | 一点设计工作室
施工单位 | 思域精工
竣工时间 | 2020年9月
项目地点 | 中国·广州
主要材料 | 科定木饰面、BoConcept、Camerich、宅匠木地板、Flos、泰斯特灰泥、B – O音响等
项目摄影 | RICCI
ABOUT DESIGNER
一点设计工作室创立于广州,是一家致力于私宅落地的设计工作室,工作室拥有一整套完备、清晰的工作流程,遵循设计至上的原则,以全案设计为方向,实现价值最大化。
对于一点设计来说,做设计我们会多一点责任,多一点态度,用设计还原家理想的样子。

