感谢来自 水相设计 的售楼处项目案例分享:
在俗世里寻见璞真宁静、和谐无扰的清静之所,无论什么时代皆让人心向往之,恰如<桃花源记>描述渔人缘溪而行意外发现秘境的故事:「忽逢桃花林,夹岸数百步,中无杂树,芳草鲜美,落英缤纷,渔人甚异之﹔复前行,欲穷其林⋯⋯」这豁然开朗的感受成为此案设计的灵光。
Find a simple and tranquil, harmonious and undisturbed dwelling place in the world. It is desirable no matter what age it is, just as The Peach Blossom Spring describes the story of the fisherman going along a creek and accidentally discovering the Arcadia: “he suddenly chanced upon a peach Cleaning forest; keeping by the shore he moved a hundred paces; inside there were no other trees, and the fragrant grasses were fresh and beautiful; the fallen leaves were a mix of colors, and the fisherman found it strange; He continued onwards, wanting to find the end of this forest⋯⋯” This sudden enlightenment inspired the design of this copywriting.
∇ 至地下一楼通道 stairs to B1F




厦门中南地产两个别于传统售楼处的前提:售楼处建筑日后将供在地小区永续使用,其二,两层楼空间除接待入口,大部分使用面积位于地景下。如何发挥与外隔绝独立场域的特点,同时维持阳光、空气与水三元素的环境架构,是负责此案的水相设计首要设定的课题。
Two premises make Xiamen Zhongnan Real Estate differ from the traditional sales office: Firstly, the sales office building will be for the community’s sustainable use in the future. Secondly, except the reception entrance, most of the use area of the two-story building is located in the landscape. It is the primary task for WATERFROM DESIGN to give play to the characteristics of the sequestering and independent field, while the environment architecture of the three elements of sunlight, air and water is maintained.
∇ 户外天井入口 entrance to atrium



茶之源,取一瓢饮 Source of tea, take a dip
预期未来小区应用的蓝图,我们从一楼入口开始建立串连在地记忆的地景。过往村镇生活总以老树为集会核心,链结人们交换日常信息与情感,生活大小事向树下靠拢是习惯也成一种集体记忆。而茶,又是老厦门的文化主轴及精髓,烹水泡茶、以茶待友是仪式更是生活,无关乎茶的等级,饮的是自在净心。
It is expected that on the blueprint for community use in the future, we will build a landscape that is connected to the ground from the entrance of the first floor. In the past, an old tree always acted as the core of the gathering among the villagers, who exchanged daily information and built relationships. It is a habit and a collective memory to gather under the old tree. Tea is the tradition and essence of the old Xiamen culture. It is a ritual and life to boil water and brew tea for friends. It is not about the level of tea; drinking tea is a gesture of freeing and calming our mind.
一座湖泊环绕映衬天光的玻璃茶庭是序曲,如透明容器装载着茶席上的仪式行为,外在川流的喧嚣对应内部不疾不徐的宁静,沈淀人们踏入后的心境。茶亭中央横过一道流水长桌穿透玻璃帷幕,于桌边烹茶品茗时水声不断潺潺流入湖泊,冲出一室韵味舒展。虽非重现王羲之流水以泛酒的曲水流觞,但清流激湍、映带左右的雅趣亦不远矣。
A glass tea pavilion surrounded by a lake is a prelude, just like the transparent container for the ritual on the tea table. The flowing stream of the river accentuates the quietness of the interior, which brings a sense of tranquility for people after they step in. The water flows across the long tea table at the center of the tea pavilion and runs through the glass curtain. When the tea is being brewed on the table, the sound of the water flows continually into the lake stretches all over the room. Although it is not the reappearance of Wang Xizhi’s description of drinking fine wine by the river, the running stream still brings refined pleasure as enjoyed by the ancient literati of China.
∇ 接待柜台,茶桌 reception area, tea area



光之源,欲穷其径 Source of light, after passing a winding path
茶席旁地板有处开口,是通往湖泊下方洞穴的阶梯。大抵这世间所有传奇的世外桃源皆始于一处隐而不显、难以觉察的入口,是以外人屡屡探寻里头那从容不受打扰、时光悠然的生活。透过这段昏暗无饰的地下廊道,洗礼人们的日常杂绪从而沈淀心绪回归本质。至此,再循着廊道末端隐晦微光引导,踏入隐身湖底另处截然不同、豁然开朗的场域。
There is an opening on the floor next to the tea table, which is the ladder leading to the cave below the lake. Most of the legendary Arcadia discoveries begin with a hidden and unobtrusive entrance for outsiders who want to explore a peaceful and leisurely life in this place. Walking through this dim path, people can leave behind their stress and frustration, and calm their minds to find their essence in life. Then, with the guide of twilight at the end of the corridor, they can step into a different and open space hiding at the bottom of lake.
∇ 共享厨房 cooking area





别有洞天的地底因着环形天井纳入阳光,引水、借光而在湖底世界滋养了一株向天伸展的树,形成天地循环最单纯的模样。白昼任树影在室内游走,人们卸下行程计划、卸下惯性速度,仅就着枝叶淡影享受遮荫、靠拢相聚,以自然直觉阅读日夜和四季,用一盏又一盏茶来记录时光,超脱城市时序的空间,让人得以用舒适的吐纳节奏感受光阴变化。
With a scenery of exceptional charm, the underground is surrounded by the circular atrium bringing light and water nourishing the tree in the bottom of the lake that stretches out to the sky. The scene resembles the simplest appearance of the heaven and the earth. The daylight makes the tree shadow wander indoor where people could leave behind their busy schedules and slow down. They could gather under the tree, enjoy the time together, observe the day and night and the four seasons. As they sip a cup of tea, they could feel themselves surpassing the order of the bustling city, and comfortable breath in the rhythm of life.
∇ 用餐区 dining area



隐于湖,时间让物浸润成画 Hiding in the lake, time makes things painted
抬头可见周围穿透屋顶的上层湖水,让水面筛过日光温柔荡漾在墙,无声摇曳的光束宛如隐身湖面下,地表的车水马龙与自己拉开了平静的距离,在湖底发生的事,不受日常时间约束。
When people look up, they could see the lake water over the roof. The reflection of water creates ever-changing shadows on the wall; the silent swaying beam seems like hiding under the lake. Quietly keeping the distance from the busy traffic on the ground, this space is free from the stress of daily life.



∇ 阅读区 reading area


为延续外界不染的超然感受,我们屏弃了矫饰与刺激感官的色彩,回归温润、自然质朴的材质,并维持纯粹的质地与触感。过程中极力避免过度表现的形式,以直觉性的线条架构空间。因为简洁,使用者可不受干扰地觉察自然光影、色调。去装饰的语法又见如墙上长幅画卷,如当代水墨去具象轮廓与文字的淡泊飘渺气氛,滤去观者心绪里的纷扰,只有随着年岁渐显风霜的铜记录时间,映衬人们在历史洪流中努力所留下的变化。
In order to retain the detachment from the outside world, we chose warm, natural and simple materials, and maintained the pure texture and tactility. In the design process, we strived to avoid the form of excessive expression, and constructed an intuitive space with lines. Under simplicity, the users can perceive the natural light and shadow without interruption. The décor is like a long scroll on the wall, just as contemporary ink painting that is abstract and only outlines the text. There is no frustration in this space; the cooper plate that ages over time reflects the changes of people in the flow of time.





连结土壤脉络的手作陶器,遗留木头上的清香,藤编严严密密织着的起伏,它们都在细微处藏着差异,那是物叙述记忆和故事的肌理,是情感流动的微观,作为茶席、建筑里的点缀,它们亦是日后人文活动的楔子。
The hand-made pottery that connects the veins of the soil, the fragrance of the wood, and the undulations of the rattan weaved tightly, all narrate the memories and stories of people with subtle details. They are like the microscopic expression of emotions, and the embellishment on the tea tables, and the preludes of cultures activities in the future.
∇ 阶梯教室 lecture hall





∇ 展示区 gallery

∇ 办公室廊道 office aisle



∇ 厕所 toilet

城之心,养树亦养情 Heart of the city, nourishing trees is also cultivating the temperament
无论是售楼处或作为日后小区艺文活动中心,我们撇除过份具体的功能框架,希望以设计创造一处开启对话的场域。因都市化疏离的个体,能寻回围绕着树相聚、闲话家常的群体凝聚引力。「便要还家,设洒杀鸡作食,村中闻有此人,咸来问讯。」桃花源里人们平实相待的性情、聚落和谐气氛,盼能在此重现而成为新小区珍贵的生活底蕴。无论外界如何喧闹、城市怎么蜕变,寻到秘境的入口潜行湖底,总能从异于寻常的视角找到宁静。
Whether it is a sales office or a community activity center in the future, we have removed excessively specific functional frameworks, and hope to create a space for dialogues so the individuals who are alienated by urbanization can find a place to gather around the tree and talk about their daily lives and build personal relationships with others. “He invited the fisherman to the house and entertained the fisherman with wine and delicious food. Others in the village heard of him, and all came to inquire him about the outside news.” In the Peach Garden, people are simple and honest, and live a harmonious atmosphere. We hope this scene will reappear here, which will become a precious life connotation in the community. No matter how bustling the outside world is and how the city is changed, find the entrance to the Arcadia and dive to the bottom of the lake, and you will always find tranquility from an unusual perspective.
∇ 鸟瞰图 sky



∇ 概念图 concept

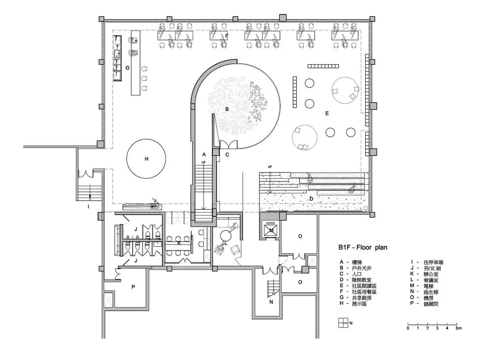
∇ 负一层平面 B1F plan

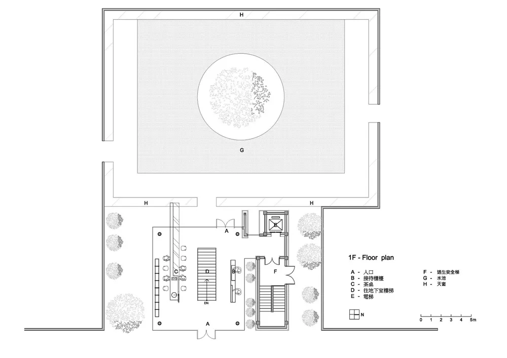
∇ 一层平面 1F plan

∇ 立面图 elevation


完整项目信息
项目名称:厦门中南九锦台
空间设计:李智翔、葛祝纬、林其纬、黄昱诚、陈宥儒 / 水相设计Waterfrom Design (http://www.waterfrom.com)
软装设计: 水相设计Waterfrom Design + 万有引力室内设计有限公司
业主:中南置地厦门海西区域公司(卢庆林、陈亚凤、黄焕新、柴丽敏)
空间性质:售楼处、接待会馆
座落位置:厦门翔安区
室内面积:750 m2
空间格局:接待区、品茗区、阶梯教室、儿童阅读区、小区厨房、用餐区、办公区
设计时间:2019.04-2019.05
施工时间:2019.08-2019.10
主要材料:莱姆石、城堡灰石材、香杉实木、红铜染黑、黄铜染黑、手工漆、抓痕泥客石
摄影:赵宇晨
Project name: Zoina Mansion in Xiamen
Space Design: Waterfrom Design (http://www.waterfrom.com)
Decoration: Waterfrom Design + Gravity Company
Client: Zhong Nan Group
Category: sales center, reception center, tea area, ladder rest area, reading area, kitchen, dining area, office
Location: Xiamen, China
Area: 750 m2
Layout: reception area, tea area, ladder rest area, reading area, kitchen, dining area, office
Material: limestone, sandstone, luanta-fir, red copper with black oxide, borne copper with black oxide, hand paint, artificial stone
Design Period: 2019.04-2019.05
Construction Period: 2019.08-2019.10
Photographer: Yuchen Chao
Copyright: Waterfrom Design


不错不错
66666