 
 
浙江工商大学位于杭州主城区教工路的老校区,历史可追溯至上世纪60年代。同诸多中国高校一样,在城市扩张和校区增设的双重夹击下,老校区蜕变为市中心不可多得的办公园区。而园区内B幢的一、二层阶梯教室,因其空间形式无法对应正常的办公需求而被长期闲置,无人问津,成为新旧转变中遗留下的问题空间。
 
 
 
 
 
 
line 因团队扩张亟需更自由宽敞的办公空间,在工作室选址时,这个极具层次感与可能性的非标准化空间被团队一眼相中,连同相邻的原女生宿舍楼整个二层空间,成为line 眼中无限可能的开始。
 
 
传统办公空间是封闭单一的工作“容器”,而在信息技术高速迭代的当下,办公空间则逐渐演变为人们工作交往的“媒介”,容纳整合展览、讲座、沙龙、娱乐、event space等各种使用场景,鼓励各种正式与非正式的交流共享在其中发生。
▼办公空间结合多种使用场景
 
 
 
 
 
 
当有机会来打造自己专属的工作空间时,我们的角色定位在甲方和乙方间切换,对自己提出了明确的要求:在为建筑师提供舒适办公体验的基础上,创造一个冷峻又亲和,流动而开放的工作空间,以承载未来多变的需求。“line”即边界,“ ”旨在突破界限,改造设计秉承事务所的核心理念,打破空间和时间界限,也与我们自身对于当代新型办公空间的态度不谋而合。
 
 
01. 打破建筑布局——夹处缝生
 
 
 
 
▼改造前阶梯教室的外挂楼梯(左),改造后作为事务所主入口(右)
 
 
 
 
 
 
 
 
▼改造前的女生宿舍(左),改造后的办公空间(右)
 
 
▼水吧台、接待和展厅区域
 
 
 
 
02. 打破建筑立面——生长的黑盒子
 
 
 
 
 
 
▼黑盒子建立起独属line 的领域感,又透露着对外展示的意图
 
 
03. 打破空间定义——“TALK-LINK”多变空间
▼“TALK – LINK”概念
 
 
 
 
 
 
 
 
 
 
 
 
 
 
▼1F-2F阶梯展厅不同的使用状态
 
 
 
 
 
 
▼改造前废弃的阶梯教室(左),改造后的多功能展厅(右)
 
 
▼二层阶梯展厅的不同使用状态
 
 
04. 打破时间界限——材质的新与旧
 
 
▼B区粗糙混凝土与白色粉刷墙面对比
 
 
 
 
▼D区混凝土漆墙面,强调空间整体性
 
 
 
 
▼灯条嵌入顶部金属拉伸网,在纵深上形成序列感
 
 
▼D区以黑色钢板与阳极氧化铝延续金属质感
 
 
 
 
整个改造设计采用减法剥离出空间及结构原型,并克制地将材料纳入灰度体系,由此凸显的新旧并置形成了最持久的视觉张力。我们以空间赋能,将因社会功能变更而闲置的封闭校园置换为适应于时代的共享开放的混合型空间,借此探索以创新为目的的企业,在未来办公空间发展上的新模式。而过去、当下,和未来line 的无限可能都将在这里展开。
 
 
 
 
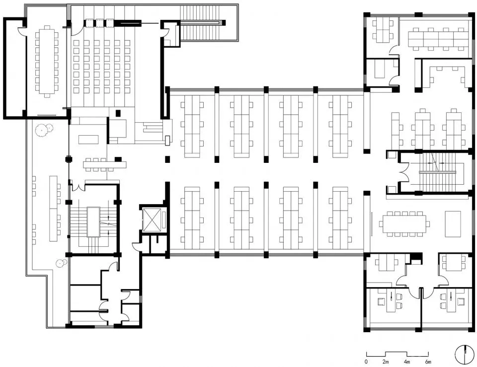
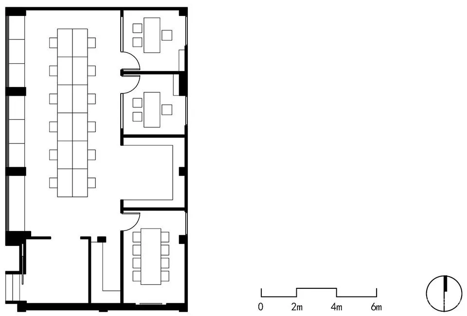
▼B区二层平面图 ©gad · line studio
 
 
 
 


