 
 
PERSONALITY RESIDENCE
OF THE YOUNGER GENERATION
图文提供 | 万境设计
当下年轻一代,对于独立多功能的空间需求愈加强烈,多样性的空间设计更能体现今后新一代年轻人对未来生活的需求与向往。
在这样的背景下设计师希望通过空间关系,满足当下年轻人生活的多业态生活圈的基础上,
打造一个满足年轻人多需求的生活与工作空间。解决当下年轻人在居住中遇到的“居住”空间问题。
 
 
 
 
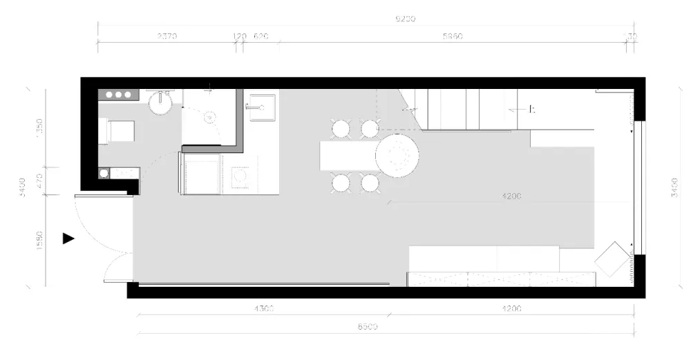
LOFT的空间结构上,满足了当下年轻人对于空间的需求,每一层有不同的功能属性,
在54平方有限的空间里,确保居住私密性与
一层的空间中,一边兼顾日常起居,一边侧重个人活动需求,不同生活场景灵活切换。在有限的空间中做设计,是不同材质的材料在空间中的融合,既能保持风格一
致,又能够将空间延续,让有限的空间迸发出活力。
 
 
 
 
 
 
运用色彩、材料与线条去体现空间的动感与层次,空间中每一个角落都有不同的定义。直线的分割,也让入户时的感受变得更加直接和自由,视觉也更开阔,空间中挑高的窗户,也让整个室内拥有绝佳的自然采光。
 
 
 
 
 
 
 
 
巧妙利用楼梯下方的空间,空间不再局促,吧台的设计,也让空间有了明确的属性和分隔。
 
 
 
 
 
 
 
 
 
 
有着私密、温暖、静谧的二层卧室空间,尽可能的保留了高度,即使身处二层,也不会感觉到压抑。而被特别设计出的窗户,也让这个空间可以享受自然的光线。原木色的使用,是空间最舒适的感知,是一个属于家的色彩。
 
 
 
 
为每一个年轻人创造出一个属于他们的“家”,以更加自如的方式释放自我,从而寻得自由。
ABOUT PROJECT
 
 
 
 
 
 
项目名称 | 杭州 万科天空之城
项目地点 | 杭州·余杭
竣工时间 | 2020年
业主单位 | 杭州西曙置业有限公司
设计单位 | 万境设计WJ STUDIO
项目负责人 | 胡之乐
灯光设计 | 束芒照明设计
项目文案 | Lucie
ABOUT DESIGNER
 
 
2007年毕业于中国美术学院,曾任GOA主案设计师,2019年加入万境设计(WJ STUDIO),设计中追寻感性与理性结合,擅长用现代简约的美学风格对空间进行解读,以克制与平衡的手法来阐述设计本质,在他看来,设计是温暖的,能够让使用者感受空间的温度。
 
 
在室内设计过于形式化,设计元素过度堆砌的当下,万境设计注重建筑内外空间的延续性和创造性思考,善于从理解建筑、周边环境以及产品核心内容出发,创造最精简、最具时间延伸性的室内空间。
编辑 | Kerry 校对 | 大 白


