「 色調和線條都是情感表達的媒介,
它們通過我們的眼睛來調整我們的心靈,
這是空間與我們的對話。 」
Healing Medical Space-治愈系醫療空間是一種特殊的室內空間,它結合了建築學、生物學、醫學、心理學、行爲學等學科的理論知識,以空間爲載體向使用者傳達積極信息,以達到更好的治愈效果。 JuniperMD Lab Geographical Position ·項目地理位置· JuniperMD Lab杜松醫療診所,位於廣州城郊工美港國際創新中心,逸仙電商集團內部。創新中心前身是建設于上世紀50-60年代的老舊工業廠,後改建為設施齊全的商業休閒生態園區。 初次勘察,這個離廣州CBD 30分鐘車程的三角洲,邊臨珠江和官洲水道,依水而建,伴島而栖,在繁忙的廣州城中是一個如此寧靜的存在。從選址開始,便奠定了其暗藏的態度。 ▲項目周邊環境航拍
日常功能性與詩意感受之間的距離平衡,
如何拿捏這個度,不多不少,
是我們需要審慎探索、思考的問題。
——————————————————
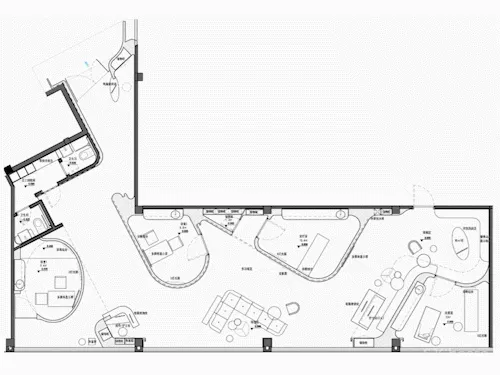
在整體不到200㎡的空間中,需要有秩序地根據日常就診行為鋪排、串聯診所的診室、治療室、處置室、觀察室各個功能體塊,融入其中的公共開放空間不再是常規候診區那般等待被審判的坐立不安,它必須是以一種非常舒適的狀態而存在。
▲杜松是一種耐旱、耐寒、適應性極强的優良樹種,
是補給疲憊心靈的一劑良藥。
以杜松果實爲出發點,提取果實外形堆疊形成流動的弧線為元素貫穿連接空間,增加空間的變化和柔軟感,打破狹長的局面,傳遞給人安全感,滿足柔和理性的功能模塊。
靠墻佈置,保證私密性,同時保證公共空間足夠開闊。
解决功能性和私密度後,接著,我們考慮到了就診者,甚至是診所工作者對空間的情感體會。
▲舒適愜意的公共空間,打破診所固有的冰冷感
當空間的某一元素被賦予某種屬性,
似乎在無形上也多了更多的可能性。
——————————————————
設計有趣的地方在于,靈感來源與點滴的生活細節密不可分。一貫以來,超級機器人無論在國內還是國外的電影中都以堅硬,强壯,無所不敵的形象呈現。而《超能陸戰隊》中的BAYMAX(大白),在一眾冰冷金屬感的機器人下,是多麼與別不同的存在——一個守護型暖男,它讓人對人工智能有了溫暖的期待。
對於醫療空間亦然,專業的形象總是等於冰冷感?何不以大白力量感親和力並存的格調來設立一個醫療伴侶的形象,在診所空間設計中作為概念性的引導和延伸,打造非典型的診所體驗。力量守護其實可以有不同的詮釋方式。
積極的寓意在室內的延續,
是舒適的設施與溫馨的氛圍。
——————————————————
能讓人在脆弱的時候感到溫暖的空間,自然光照的重要性無可置疑,柔和的燈光在頂部結構兩側徐徐傾瀉而下,人對空間與空間之間的感官變化就像植物一樣,隨著光線律動而演變。
▲日光略過弧面,基于結構,光與空間的豐富性自然生成。
▲藝術的光線以一種抽象的方式介入潔淨的藍白主調中。
呈現可觸摸的情感溫度。
——————————————————
空間的進深、天花的燈路、墻身的弧面、地面的流綫、沙發與燈具…空間中每一個分寸都讓人的目光和腳步跟隨著設計而流動,使得空間與人的關係變得緊密、柔和,改變內部空間情緒,換句話說,便是改變人在這個空間當中的情緒。
▲弧線的流動,讓空間得以延伸。
冰冷的醫療建築本身與醫患息息相關,當中診療環境對于使用者的身心感受都有著最直接的影響,縱觀國內診所,傳統型診所體驗感相對較弱,大致能滿足求醫者基礎的診療需求,但並未能滿足求醫者的更高層次精神體驗。
從JuniperMD Lab開始,建立JuniperMD(杜松醫療)專業和關懷共存的品牌基調,在提供一流醫療方案的同時傳遞企業的文化基因,讓空間産生持續的吸引力,獲得心理身體精神上的治愈感。
About JuniperMD
JuniperMD杜松醫療是壹家國內領先的互聯網疾病管理服務機構。跨越國界,激活醫生間協作,整合美國、澳大利亞、日本及歐洲的優勢醫療資源,以高效的協作、專業的知識、優化的流程、實用的科技,為中國及周邊國家人群提供遠程會診、全球醫療及疾病管理支持等壹站式解決方案。
項目名稱:JuniperMD Lab 杜松診所
設計時間:2020.4
完成時間:2020.8
設計單位:湯物臣·肯文創意集團
設計總監:謝英凱 Thomas
硬裝設計師:余江序 James / 潘晴 Apple
軟裝設計師:黃媛 Ian
效果圖設計師:麥媛文 Sibyl / 朱麗 Juliet
工程項目督導:麥錦輝 Marco / 王藩 Fanni

