建案名稱:京投发展 锦悦府 叠拼样板间
主持設計師: 近境制作 設計總監 唐忠漢
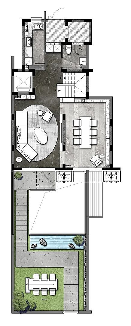
空間坪數:中叠165.9平米 下叠206.6平米
异域印记 人文 | 自然 | 线条 | 宁静
回溯到「生活」型态这件事的衍生,从外入内以及独立空间的配置,以「环境」自然共存为导入,利用室内地坪材质延伸及空间量体的转换,重新连结室内外空间定义。
将休闲活动的区域从室内搬到室外,保留大面积的庭园从1楼到地下一层都可以看到庭园的空间运用,让居家生活有更多与自然的连结,在下层的开放空间中,设计概念是由一道连接户外绿地的大面积落地窗开始,在格局规划上,希望能藉此引进室外大片绿意,并将石材主墙与地坪延伸至户外,再利用地坪划开既定的空间定义,区分出一处位于室内外之间的中介空间。让光线与空气透过中介设计的处理,进入室内空间,并过滤光线与流动的空气,让空间宁静而舒适。将延展出介于室内外的共存空间,让居住在其中的人能享受到更多的阳光、空气。而木质地坪温润的质感延续至墙面,透过天光映照着一整片的绿意,感受无压力的朴实因子,在尘嚣及繁忙的都市化生活中,得到一个真正的宁静空间。
立体迭拼的空间,利用垂直动线区分了居住的使用功能,一楼公共领域达到生活互相链接与共同生活的功能,而二楼私密空间安排了独立套房的设定,每个家人都有属于自己的安静的空间。
地下空间的安排增加了入户时的清洁消毒动线,在入口玄关衣帽间的配置里多新增了洗手台的功能,多了一道防疫动线,让回家更安全
剔除繁复的奢华表象後,以材质本身的特性来充填空间,形体组构的方式与手感处理的纹理,交错铺陈,在褪去激情浮夸的都市色彩後,坚定一种沉淀过後的生活态度
在轴向上将量体延伸立面堆叠
以温润的木皮质感与特殊涂料做为基底,水磨石与黑色不锈钢的结构特性相互对比,做为空间中垂直水平 的分割模距,以量体形式挤出堆叠并依其形体赋予机能,延续其型态转折至不同空间
在轴向上发现了一个态度
利用地坪的材质分割的空间中不同的使用机能,利用光源的设定将串连了平面与立面的关系,
公领域用黑、灰、白的色彩计划,在不同的材质中看见材料本身的特性与颜色,利用本色的呈现,让视觉能够达到放松的效果,在居家生活的空间不受到太多刺激的观觉感受 而卧室空间则是另用了更多的木饰面,让空间整体更为温暖,木地板的铺设方式更放大了空间的视觉感,每个卧室都有独立的卫浴设备,让各自拥有更多自我空间。
唐忠汉 近境制作 设计总监
坚信生活即风格,重视回归空间本质
作品连续4年荣获意大利A’Design Award
包揽德国红点传达设计奖、日本优良设计奖
英国国际地产大奖—亚太区等国内外设计大奖
商业空间,展示空间,会所设计,样板房,别墅豪宅,近境制作所推出系列的设计作品,自然、清晰,空间中一种隐藏着的轴线关系,创造出和谐的比例。另外,对于可靠材料的真实表现,结合着细部的处理,这种谨慎态度始终支配着我们,对于质量的要求,我们深具信心。
近境制作的设计中,充满着对生活中的幽默,强调自然、清晰的原始设计,代表了未来空间的发展方向,年轻、活力、亚洲, 我们所做过最好的设计,那就是我们创造明天。

