位于乌克兰基辅的住宅公寓,原本是一套两居室,设计师Kate Raspopina接到设计任务时没有过多的期待,不过年轻业主给提的设计要求,使她来了兴致。
仅保留一个卧室,不希望厨房占太多面积,最重要的是“不用太在乎预算”。这些要求对于Kate Raspopina来说,简直不要太完美!
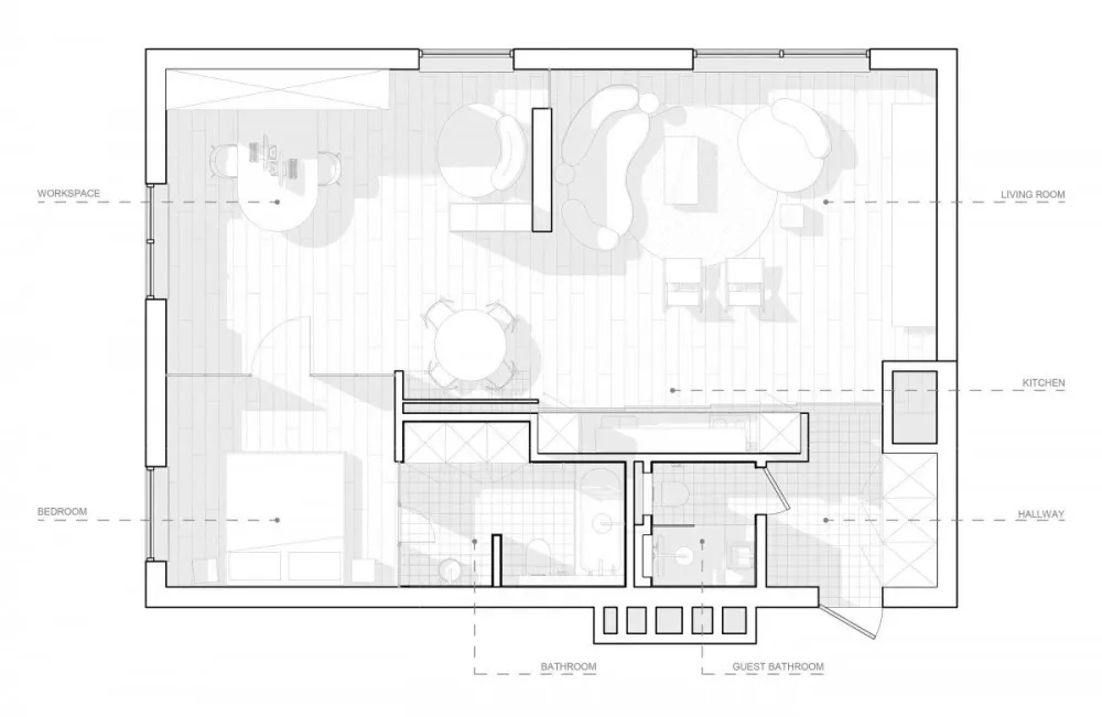
修改过的方案征得了业主的高度赞同,超大的起居空间,灵活简洁的区域划分,让原本普通的老宅焕然一新。
围合型客厅格局使人和人之间的距离更加亲近,通过编织藤椅在客厅的空间内形成围合的形态,不用考虑电视的存在,任意一面墙都可以作为投影使用。
墙角处用玻璃留出一处视口,增强空间的视觉流动性,引入光线,同时也达到空间的互动。
这个角度刚好可以看到被隐藏的厨房,将移门全部打开,一个功能齐全的开放式厨房就出现在了客厅的中央。
餐厅就位于厨房旁,整个空间内没有传统的直线型动线布局,多的是“走弯路”,借助每一个空间转角形成不同的功能区域划分,设计师的构思可以说是非常巧妙了。
另一个占据大部分空间的就是开放式书房,业主两人有在家办公的习惯,所以一个超大号书房必不可少,加宽的书桌刚好满足两人面对面办公,一整面墙的书房也满足了强大的储物需求。
靠窗的小空间不容浪费,拿来做休闲阅读区刚刚好,用镂空置物架作为隔断,将过道与餐厅隔离开,一个光线正好的阅读角就这样形成了。
圆润的橘红色沙发给空间带来一丝活泼的气息。
没有留过多空间给卧室,满足休息需要即可,空间的简洁更有助于睡眠。藕色系的卧室空间温柔雅致,墙面的浮雕挂画点缀得当。
卧室的另一侧是主卫生间,浅咖色方格瓷砖搭配艺术砖作为点缀,使整个空间灵动起来,灯光是这个区域的重点设计,色温极低的光线在整个空间内呈现昏黄幽暗的格调,泡澡也是氛围满满。
墙面的收纳柜将洗衣机藏入其中,设计师在隐形收纳方面真是做到了极致。
公卫的色调非常梦幻,粉绿色的渐变与方格砖分别形成两个区域,在暖暖的灯光下浪漫而现代的气息扑面而来。

