不知不觉到了上有老下有小的年纪?为了不影响工作,不得不请父母同住来照顾小孩?由于现实种种条件,只能买得起中小户型?
家居君相信,这是当下不少80后、90 后的真实写照,那究竟如何做才能解决以上问题?今天就给大家分享一则这样的案例,71㎡的两室改三室,不丢失颜值又能满足三代居住需求,一起来看看,设计师是如何帮助屋主实现的吧!
Nothing Design 工作室设计师
处女座的前网红咖啡店店主,生活方式主义者。毕业后经营了一间咖啡店,慢节奏的安逸生活让她思考内心的真实渴求。由于热爱家居美学与空间设计,桂子在2018年调整了自己的人生规划,重新出发,投身到自己热爱的行业中。
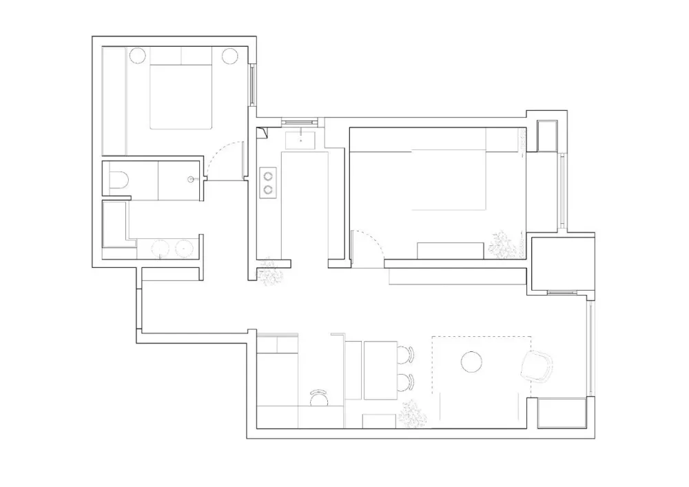
这套不算大的住房是业主单位提前分配的。突然之间即将开启新家的喜悦,业主希望房屋能表现出自己的风格喜好:简洁和冷色调为主,明净大气,又要满足当下的居住需求。
①满足三代同堂的居住需求,将房屋原始户型改成了三房;
②借用客厅空间,用长虹玻璃隔出一间小卧室给小朋友睡;
③考虑到三代人一起住,三分离式卫生间,以及两个洗漱盆可满足多人同时洗漱,非常方便三代人的居家生活;
④扩大厨房面积,U型厨房的两面操作台空间更大。
弧形拱门 打造空间层次
为了隔离室外的灰尘,更方便清洁,设计师在玄关的收纳和地面材质选择上花不少心思。首先是选择了有质感的水磨石地面,好打理、耐脏,也轻易的从视觉上区分了玄关和客厅两个空间。
进门左边是一组悬空通顶鞋柜,悬空部分方便取放居家拖鞋。上中层隔断,留出装饰和取放钥匙等小物件的空间。下柜大抽屉,充分满足玄关的收纳功能。
浅木色换鞋凳:宜家;猫咪地毯:野兽派;金属边框复古全身镜:The Noedic
一块毛茸茸的猫咪地毯增加了空间趣味,也让小朋友更愿意主动更换自己的鞋子。
巧用空间,用玻璃隔出儿童房
白色小推车是由意大利设计师Joe Colombo设计,百搭经典又实用。
客厅配色以灰色为主。低饱和的冷色调能给予空间更多包容性,让小区域的视觉开阔舒适。搭配一款暖色的皮沙发,供家人们聚在一块儿聊天看电视。
杏色皮质沙发:NATUZ
因为家里有小朋友,皮质的沙发更好打理。藤编地毯的加入,为客厅带来了一股贴近自然的感觉,也更好清理地面。白色的移动小推车造型经典又有趣方便,哪里有需要就随时移动这个小边几。
另一面的电视墙同样以简单的色彩和线条,营造出舒适的美感。同时,设计师较大幅度的利用纵向墙面,以省出客厅的立体空间,如此一来便让视野和活动区域更开阔。
椅子:STRAIGHT WORK
客厅延伸到左侧的阳台承担了一定的储物功能,桦木材质的使用令原本厚重的柜体,显得干净且自然。男业主有时需要在家办公,在这个区域做了一个折叠桌面,平时不使用的时候可以藏起来。
不过最特别的是,设计师巧妙的以长虹玻璃为隔断,在比较开阔的客厅空间中“偷”出了一个儿童房。同时,中央空调做了两个出风口,一个放在儿童房,一个过道上方吹客厅。在隔断分离的同时,保证不同空间的新风使用。
ARA HOME;餐椅:APARTMENT101(中古款)
餐厅是祖孙三代人一起享用美食的温馨空间。设计师选择了亚麻的桌布增加居家的亲切氛围感,在配合柔和的玻璃吊灯,以及不同设计感的椅子,营造出一派自然的温馨轻快气氛。
餐边柜:舒梵(复刻版)
考略到餐厨的收纳需求,设计师在餐桌旁特意设置了白色金属骨架的餐边柜。开放的置物架和封闭的柜体结合,即能摆放展示一些装饰性物品,也能将更多器具收纳起来,避免空间的凌乱感。搭配屋主喜欢的几株绿植,为整个空间增添了少灵动感~
玻璃隔断,延伸空间层次
浅蓝色是小朋友喜欢的颜色,能让孩子放松、有助于休息。再以白色调和,墙上的装饰画让整个空间有了童趣,却丝毫不显幼稚,因此也延长了整个儿童房空间的使用年龄跨度。
设计师还是在床边为小朋友留出了一块活动区域,不管是玩耍还是做作业,小朋友都可以拥有自己的独处乐园。
长虹玻璃可以透光但又有保证了隐私。上部分的玻璃隔断中间做了一个向客厅开启的小窗,来延伸这个卧室的空间感。小朋友很喜欢打开窗户和沙发上看电视的外公互动。
玻璃下半部分的封板高度为1.2m,小朋友在里面无论是写作业,还是休息玩耍都比较有安全感。黑色封板还兼备了黑板功能,让小朋友可以任意涂涂画画。
家具可灵活移动,方便储物取物
卧室的隐形门藏在电视背景墙边,卧室内保持了和房屋整体一致的简洁、清淡风格。从旧家搬来的舒服的大床,为了更好的搭配新居的色调,定制了和墙漆同色的灰色靠背。
床尾墙面,可做投影使用,黑色矮柜长虹玻璃的元素呼应了儿童房。
艺术画靠墙而放,更具灵活性。
繁茂的绿植点缀着床尾,让卧室更加自然温馨。
为了储物的利用率更高,设计师在卧室床头做了整排的储物柜,因为将来需要再放一张儿童床,左边的衣柜门定制成了移动门,即使之后有床,也不影响取物。
三区分离,方便三代人使用
通过走廊的拱形门洞,可以直接进入到卫生间干区。进门正对着的储物柜用的是阳台同款桦木板材质,除了自然好看,还特别防水。洗衣机藏在下柜里,侧面还留了位置放置洗衣液。
洗漱台延续了地面的水磨石材质,细碎的彩色波点融入硬朗的水磨石,颜色与墙漆颜色相呼应,为空间增添了几分灵动感。
淋浴房和马桶间同样采用了水磨石材质,墙面选了白色瓷砖,搭配同色的美缝剂,显得更干净整体。绿色的顶面为低饱和的冷色调空间注入了丰富的层次感,让洗浴间也不显单调。
精心构思的结构创造,细致入微的家居选择,让这个三代同堂的家既实用又漂亮,既温馨又时尚。71㎡的中户型,也能够通过灵巧的改造,完美地适用一家三代人的居住需求。这样的一座房子,满足你理想中的居住空间吗?

