项目名称:中梁新力宽泰铂园
业主单位:中梁地产-新力地产
业主团队:周昀、毛春梅、王维佳、马胜昔
设计团队:林伟君、田高阳、邵楠
艺术陈设:ART VGC
The great promise of Milky Way
Let us go back to the origin and read it
“ 空间其实是无声的抽象内建筑,纯美的简约极致形体。要忘记和丢掉一切多余的装饰,没有必要去表现自己,一切留给人,人和生活才是主角。我们的空间并不重要,去帮助、陪伴、衬托、无声,不真实空间要归元功能本质。不要去诉说,不要去表演,若要看繁星,走出去就是繁星,或是留下,触景生情,满心都是繁星。 ——罗伟 ”
宽泰铂园营销中心是VGC韦高成设计与中梁合作的创新型项目,总设计师罗伟通过串联品牌营销和文化内涵,让内空间与人文、环境、建筑、景观、功能有机融为一体,探索空间里已经发生的故事。
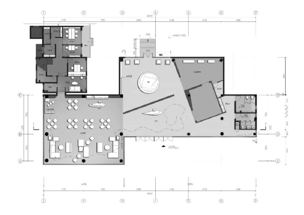
永久建筑与临时建筑结合。
设计师的处理方式是既不破坏永久建筑的结构,又方便日后建筑的拆改。斜墙穿插于新旧两个空间体块,使其空间形成流动,引导人流动线。
打破空间维度,永久与临时空间墙体位移。
正交与斜交重叠,产生有趣的灰色空间,使得单一的方正空间就此灵动起来。由此产生一种剥离的状态,新旧的简约结合微妙共生。
空间肌体应纯粹而有机的生长,以比例分割、立体裁剪、工艺拓缝手法重塑表皮,而非过渡装饰元素堆砌。
因此设计师将表皮采用为石材类、金属类、乳胶漆3种材质的简洁组合。
控制成本及创新环保是设计师的责任,石材类选择天然白木纹大理石、人造岩板及仿石朗生板,造价可控又保持空间天壁地材质统一、万物归元。
千帆驶过终入海,在入海之前,先打造一艘船。
前厅和水吧台接待装置艺术灵感皆来源于帆船,以帆船航行的形态,寻觅远方的海无涯,将之演绎成一个艺术品,回馈星宇自然。
设计像诗人书信里的暗涌,纯净极简,拾回一方地域的文化记忆。设计师对此有过无数的设想,终于从苏州传统缂丝工艺种汲取灵感。
随着空间流动感很难在平面上表达,所以设计师动手用卷纸模拟动态,再用SU进一步优化。
通经回纬的丝线穿插在4000多片千姿百态的玻璃晶片中,熠熠生辉,穿梭回绕。形如浩瀚星辰盘旋在银河之中。
中梁苏州宽泰铂园原本有着不一样的建筑结构规划。
星辰大海,以梦为马;星海为遥,俯仰之间。
即使生活熙熙攘攘,奔波劳碌,愿为使用者提供一方乐土,收藏温暖光明的梦想,燃起仰望星空的诗心。
由于建筑结构的变化,第一轮方案曾经终止推进。时间紧迫,总设计师罗伟迅速调整方案,才有了现在的 “THE SEA” 。
如果想造一艘船,先要激起人们对大海的向往。
成本,引导发现新型环保的材料。
周期,强调工艺的落地性。
永久建筑与临时建筑的脱离,衍生斜墙原理,营造各处灰界空间,让空间与空间交融。
以星辰的诗心开始,到设计落地收尾,空间归元功能本质,一切留给人。
VGC创始人兼总设计师 人文设计及谨程精绝的探索者
善于思考与践行,注重人与环境相互的关系;平衡于艺术与商业之间的取舍。作品自然而然、化繁为简、细腻温润、富有情感。

