多数住宅,无论是高层还是低层,我们在绿植的设计上总是在同一视觉水平上。如今越来越多的设计师意识到,多层次的视觉感受打破了视觉疲劳。我们更愿意主动地去用不同的
角度去感受不同层次所带来的不同的情感维系。
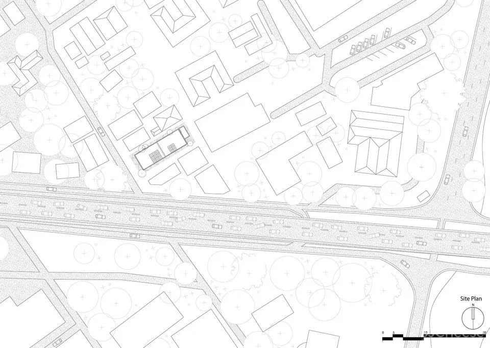
这座房屋由一对同为内科医生的夫妇持有,坐落在位于Ratchadapisek路上一片12米宽、32米长的土地上,这几乎算是两位业主工作场所之间的中间点。
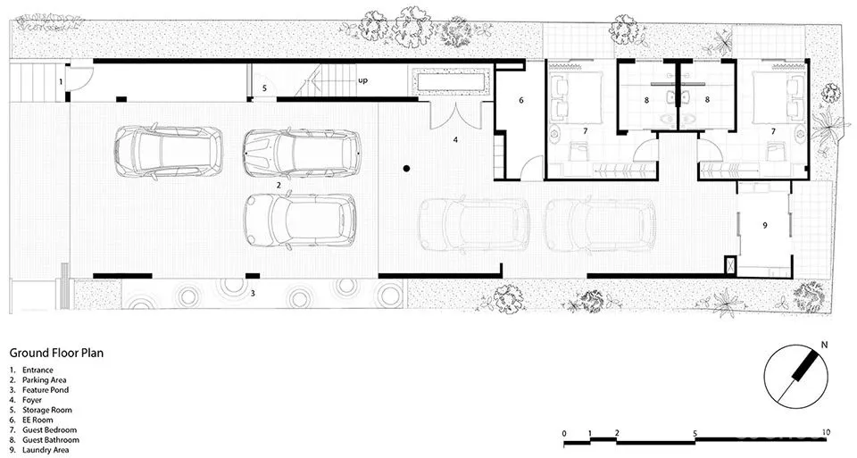
根据场地的形状和业主需要5-6个停车位的需求,设计师从传统的泰式吊脚楼中得到启发进行设计,将主要的功能区安排在建筑的二层至三层。
设计师还决定凿出建筑的体块,因此设置一个为庭院使用的负空间(通常在中葡建筑中可见)并被生活空间、餐厅和起居空间包裹。
引入泰国传统高脚屋的设计方法
考虑到这块土地除形状上又长又窄,并且在十米开外还有一座朝向建筑场地西南方尽头的天桥结构,Anonym 工作室的设计团队选择挖出半露天的庭院,让建筑朝南设计。为居住者们提供更佳的私密性,并遵从业主们希望有一个更为生机勃勃的、令人兴奋的生活空间的心愿。
这般对于空间的控制使餐厅和生活区转变成这座房屋的主舞台。并以创造出一片超现实的、令人兴奋的生活空间为结果。
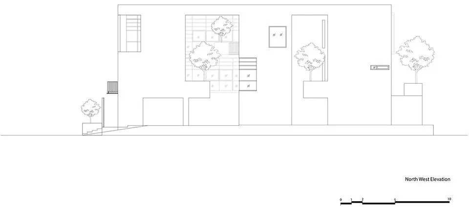
墙体、钢框窗户、拐角窗和树池构建出一个丰富而又层次分明的序列,
然而,为使居住者们的生活体验达到平衡,在适度给予视觉无障碍性的同时避免实际生活空间过分
暴露,Anonym在墙壁的外形上使用了一些建筑元素,包括铁质窗框、在厚重的混凝土墙角上的开口、和根据多样却提供不同私密程度的层级空间按照分层顺序放置的大型盆栽。
一连串向阳台开放的滑门被安装在这面墙上并且与混凝土墙上开口的高度相当。这些建筑细节周到地实现了一个舒适、慵懒的生活空间,置身其间业主们可全身心地感受到家一般的自在。
钢结构玻璃墙从三个方向将客厅围合起来
通过绿植设计过滤阳光并保持私密性
庭院中的树木位置经过了谨慎设计,能够帮助过滤阳光并阻挡来自外部的视线
设计师还决定在西面和南面的墙上创造额外的长方形开口。这些开口高于地面高度,在控制进入建筑热量的同时让恰到好处的光线被反射进屋内。这些开口的存在将共同使整体的室内氛围更为生动。
与其他住宅项目相比,漂浮树屋的一个特点在于其起居空间和公共空间的连接并不会随着深入住宅内部而逐渐变得单一乏味,而是以一种十分有趣的方式整合在一起:客厅和餐厅被设置在庭院之间,从而各自在住宅的其他区域中得到突显,并最大程度地保持了向外部环境的开放性。
这幢住宅因为层次上的丰富性,使得建筑外镶嵌的盆栽更具
漂浮感,而不再是摆放在阳台这一仅有的绿植景观。
对于这种漂浮感,我们不一定是通过绿植去表达,例如,我们可以镶嵌一些“金属盆栽”,也许能传达出一种漂浮的时空感,我们可以用更多不同的载体去表达出不同的气质。
设计公司:Anonym Studio
材料: 木材 金属 钢 绿植 玻璃
分类: 住宅室内设计 住宅建筑 独栋住宅
项目名称:泰国“漂浮”的树屋
项目地址:曼谷, 泰国
建筑师: Anonym
面积: 550.0平方米
摄影师: W Workspace
主创建筑师:Mr. Phongphat Ueasangkhomset, Ms. Parnduangjai Roojnawate
设计团队:Mr. Phongphat Ueasangkhomset, Ms. Parnduangjai Roojnawate, Ms.Napapash siraputtipat
工程师:Weravat Tudthong
景观设计:Anonym
从传统的图文转到短视频的传播,设计联做了很多的尝试,设计联也将开始多视频平台同步传播的脚步。

