感谢来自 MYP设计事务所 的售楼处项目案例分享:
在概念方案的时期,我们讲了一个故事,大意是儿时的朋友,长大后的时代变迁和情感的变化,用以介绍整个空间的理念来源和发展。待成片出来时,倒觉得要换一个角度表达,用一种更简单的方式。
∇ SHIMAO WANGYUE SALES CENTER | 概念背景

∇ SHIMAO WANGYUE SALES CENTER | 效果呈现

地处岭南,自然少不了用些岭南的元素。无论是古韵新意的元素,还是含蓄隽永的表达,都在乎能找回文化根源的同时将空间儒雅精妙的处理。
∇ SHIMAO WANGYUE SALES CENTER | 精神内核及元素提取


首先通过对岭南宅院的理解转化成平面布局,落点在于对中轴对称和仪式感的把握,起承转合中让空间优雅且自然的展开。其次,对岭南古典建筑及园林进行采样,共同构成对细节的处理,使看客能轻松的感受到空间中本土人文气息。
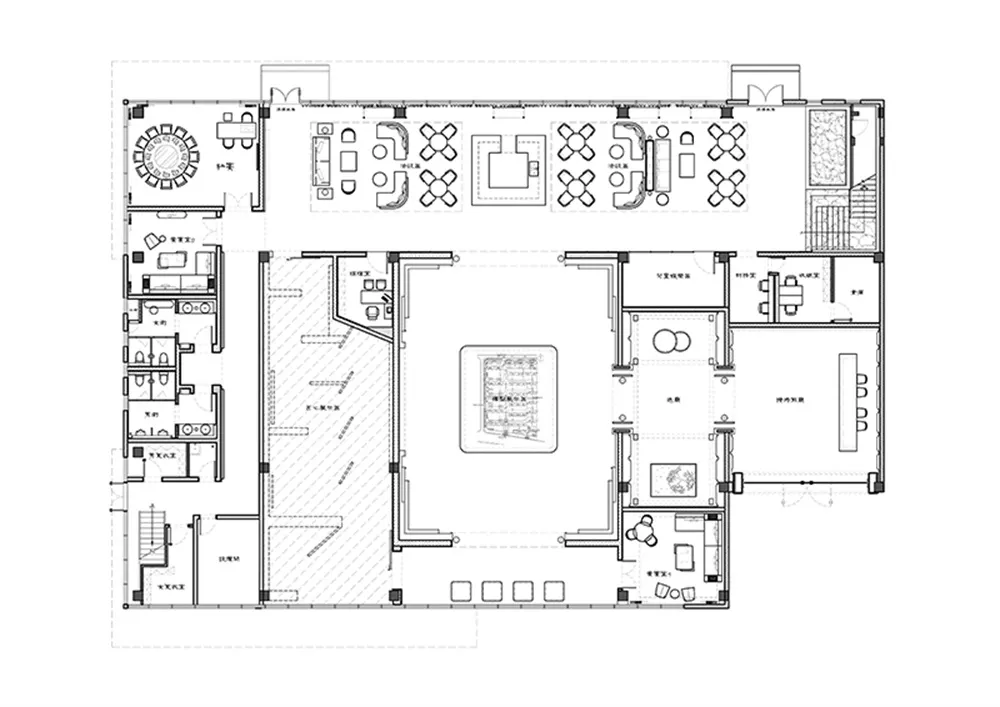
∇ SHIMAO WANGYUE SALES CENTER | 一层平面图

∇ SHIMAO WANGYUE SALES CENTER | 二层平面图

樾过近千年的白天与黑夜,总能从时光缝隙里,望见不一样的生活模样。将南岳村的黑白影像处理成铜蚀屏风的方式,落于大厅正对面,也算是对座山影壁的一个呼应处理。
“有堂皆井”,在岭南老宅建筑中尤为多见,也是特色之一。天花在设计上提取了天井的概念,将传统的建筑元素现代化演绎了一番。方寸之间,也另有一番“别有洞天”之景。
∇ SHIMAO WANGYUE SALES CENTER | 建筑外观-日景

∇ SHIMAO WANGYUE SALES CENTER | 建筑外观-夜景

接待厅连至过厅,采用了融合中式轴承布局,通过屏风阵列的现代手法,重现了当代名居特色。层层递进的空间,也有几分几进院落的意趣。
∇ SHIMAO WANGYUE SALES CENTER | 接待前厅



虽不能说,处于不同的功能空间有着不同的心境,但也会在不同程度上去调整。用传统抄手游廊式的空间处理,承载起空间的过渡,而让看客体验到移步换景间的趣味性和传统的神韵,这也是一种大多数人都可以接受的方式。
∇ SHIMAO WANGYUE SALES CENTER | 过厅全景

∇ SHIMAO WANGYUE SALES CENTER | 过厅

烤漆面处理的大门屏风,在颜色上略显夸张,但毕竟艺术的张力始终是来自于对立性的表现,而细节线条的处理上结合了岭南通商时期的摩登风格。油纸灯笼不在,换成现代的壁灯处理,也算是古韵新意了。屏风式主题背景,传统门套元素的提取与现代工艺的结合,细处出匠心。
∇ SHIMAO WANGYUE SALES CENTER | 模型区看向接待大厅

∇ SHIMAO WANGYUE SALES CENTER | 过厅细节

整个沙盘区力求沉稳大气,彰显空间及光线氛围。沙盘底座概念从传统挑篮中提取而来,凸显地域文化的同时,与整个空间无缝融合。而白兰作为佛山的市花,将之衍化成吊灯造型,在挑高足够有优势的空间中,更显磅礴,也不失静气。
水晶玻璃砖与铜砖错落交叠,法国木纹砖的自然点点,像是跨越了千年的斑驳光影照进了现代,影影绰绰。虚与实,过往与当下,谁能探清?
∇ SHIMAO WANGYUE SALES CENTER | 模型区





将市花白玉兰的图案抽离分解,结合岭南的门窗图案,提炼出的元素做为空间中一条隐藏的线索,从前厅的屏风细节到过厅的装饰品、从两层挑空的灯俱图案到洽谈区墙身的金属造型,以其能悄无声息的体现。能看得出神韵固然好,看不清也不必刻意的表达。
∇ SHIMAO WANGYUE SALES CENTER | 模型区细节


洽谈区讲究私密性,延续整体主题。设计师不单对空间表面进行解构,更从细节、工艺等综合角度进行探索,实践,重塑了空间形态与情感,凸显当代创新性。
传统建筑中,一砖一瓦,一面一线都极为精细,而我们将这份精细推崇到当下的空间中去,传统与当代艺术美学的融会贯通,内外气质显露。
∇ SHIMAO WANGYUE SALES CENTER | 洽谈区




公共空间的设计在于能够让人待得住,特别是对于销售中心而言,这点显得尤为重要。设计师将岭南情韵转化成有形之物与无形之气,笼聚于空间,有东方细腻,也有现代风情。
∇ SHIMAO WANGYUE SALES CENTER | 交通流线


当夕阳的余晖散去,夜幕将下时,于是环境、光与影,有形的器物与无形的变化越发的温润。时代变与不变,在这里,回响不止。
∇ SHIMAO WANGYUE SALES CENTER | 体验区


完整项目信息
项目名称:世茂佛山望樾售楼处
项目地点:广东佛山
设计面积:2000㎡
开发单位:世茂集团
设计单位:MYP设计事务所
创作总监:马一平
核心团队:潘建伟、蔡沛杰、林梓生
完成时间:2018年11月
主要材料:雅士白大理石、慕云灰大理石、白色乳胶漆、木饰面、古铜拉丝不锈钢、瓷砖
摄 影 师:井旭峰

