中国(南沙)时尚珠宝文旅小镇展示中心

东涌,地处美丽富饶的珠江三角洲腹地。宋代以前,这里还是一片浅海,经过数百年泥沙淤积成滩,后经岭南先民疍家人抛石围垦造田,慢慢演变成为今日具有鲜明地方特色的岭南水乡。
随着属地南沙崛起为东西互通的国际通道与现代化港区,以珠宝产业为中心的珠宝小镇在东涌悄然落地。这个历经八百年沧海桑田的人文古镇,将借助粤港澳大湾区的发展契机,实现从乡村小镇到国际时尚创新中心的蜕变。
△中国(南沙)时尚珠宝小镇规划图
△中国(南沙)时尚珠宝小镇区位图
作为“湾区明珠”南沙区体量最大的城市更新项目,珠宝小镇以「中国的安特卫普」为规划愿景,承载着提升东涌片区城市和产业新形态的使命,对推进湾区珠宝产业创新和转型升级亦有着重要意义。
珠宝小镇展示中心由EHOODESIGN易虎设计担纲室内软装设计与陈设,设计团队顺着南沙及东涌的历史脉络、人文年轮和时代展望,从沧海桑田的城镇变化和东西方珠宝文化中汲取灵感,将岭南文化、东涌水乡、珠宝文化、疍家文化等代表性的元素融入空间设计,打造具有东涌本土特色的文化体验中心。
01
时间与空间对话,未来在此展开
展示中心是文化艺术与产业合作交流的场域,联结着小镇的过去、现在与未来。我们希望在此建立时间与空间的对话,用一种对土地的眷恋,对本土气息的一种表达,去唤起一种时间与空间上的碰撞。
结合水乡的特色,展示中心入口处设置了一池镜面水景,建筑倒影在水面上,与周围环境融为一体,打造出唯美的水乡意境。
△展示中心建筑外观及镜面水景
△一层前厅接待区
建筑内部空间以极简的白色、浅灰色和自然的木作棕为基调,搭配色彩层次鲜明的黑白灰陈设,再以绿色装饰作为点缀,使空间所要表达的情绪有节奏有韵律地铺陈开来。大面积的落地玻璃,使室内得以邻借室外的自然之景,营造开阔大气的视觉美感。天然的原石接待台,为空间注入更多自然生态的气息与张力。
02
文化与技艺传承,唤醒根脉记忆
“骨曰切,象曰磋,玉曰琢,石曰磨;切磋琢磨,乃成宝器。”珠宝原材料只有经过能工巧匠的精雕细琢,才具有真正的艺术价值。工匠精神是珠宝文化和技艺传承的精髓,我们希望将这种工匠精神融入到珠宝小镇展厅的空间设计中。

△一层转角过渡区
以前对于生活在海上的疍家人来说,渔船就是他们的家。在一层转角过渡区,一艘满载着珍珠的东涌水乡“独木舟”,构成了空间的艺术焦点。独木舟按照“刳木为舟”的古法,由一整根原木精工雕凿而成。鲜明的地域文化符号与现代时尚元素碰撞,创造出富有岭南韵味和时代气息的艺术空间,唤起人们对东涌历史根脉的记忆,和对未来国际时尚之都的畅想。
香云纱也是岭南一个非常有特色的文化元素,被誉为“岭南瑰宝”,是岭南非物质文化遗产。而独具地域特色、自成一派的岭南建筑,则承载着东涌厚重的历史和记忆,是岭南文化的灵魂所在。在一层休闲区的软装设计上,设计师将香云纱、岭南建筑这两个极具代表性的民族元素分别制作成香云纱装饰画和悬吊的建筑木雕,构成了空间的视觉焦点,增强了空间的艺术气息和地域文化特色。


△休闲区
二层走廊,在壁饰的选择使用上也采用了疍家文化的元素,设计师通过现代手法演绎,将疍家渔民的竹编工艺运用到艺术装饰画上,呈现出一幅幅疍家农耕文明的缩影,形象地展现疍家美好的文化生活和情感的独特表达。
△电扶梯区
△二层中庭区
△二层走廊壁饰


△二层走廊造景区
03
山水意境,赋予空间灵性
在木质格栅前后,设计师通过白沙、铂晶与绿植于方寸间营造山水意境。白沙起伏如山,铂晶清透如水,当阳光透过天井和格栅倾泻在水波纹似的肌理上,粼光闪烁,宛若微风拂过的水面泛起粼粼波光,一幅意境悠远的岭南山水画卷跃然于眼前。
△过道装饰台
04
古今交融,中西并蓄,造就独特空间意象
于纷繁的都市旁,寻一处静谧的古镇,青墙黛瓦,烟水人家,古韵灯笼,搁浅了尘世喧嚣。世界上本没有时光机,但那些经历了时光之河洗礼的老建筑或老物件仿佛都具有放慢时光的魔力。
为了打造宁静、温暖、素雅、纯粹的空间氛围,设计师将古韵犹存的青铜酒爵、香炉、描金食盒、老式茶壶等中式传统器物,陈列于现代时尚的空间里。这些古色古香的陈设,典雅庄重而不失摩登,为空间注入了独特的东方韵味和文化魅力。










△洽谈区
一张沾杂着淤泥的渔网虽为寻常之物,却蕴藏着水上人家深厚的民族记忆和情感。设计师将渔网置于洽谈区的视觉中心,以一种独特的艺术形式再现疍家渔民海上劳作的生活场景。
与一层接待台相呼应,二层水吧台同样运用了天然的原石材质,粗狂的石材与空间的白色基调及精致细腻的珠宝元素形成强烈对比,增加了空间丰富的层次和内涵。吧台上绿植的点缀,让整个空间更加的灵动和谐。

△水吧区
茶艺室延续了展示中心简约素雅的风格,以极简的白色铺垫空间的基调,将茶道的禅意之美融入现代的表达手法,实虚结合,化繁为简。设计师借鉴钻石元素的特性,充分利用光影营造色彩素雅,格调清新,意境优美的水墨山水画境。



△茶艺室
现代简洁明快的贵宾接待室,便于政界领导团接待。迎客松选用鲜活的绿植,为空间添加生机。接待椅运用钻石切合工艺,彰显尊贵与奢华。
△贵宾接待室
VIP洽谈区在结合岭南文化和珠宝文化的基础上,更注重自然意境的营造。洽谈区与户外露台一墙之隔,大面落地玻璃将户外的景观延伸至室内,精致而古朴的艺术品透过玻璃装饰柜清晰地呈现于眼前,巨幅黑白装饰画上一棵参天大树与室内外的绿植相互映合,虚实相间,让空间更加意境幽远。艺术、自然与空间在此完美融为一体。



△VIP洽谈区
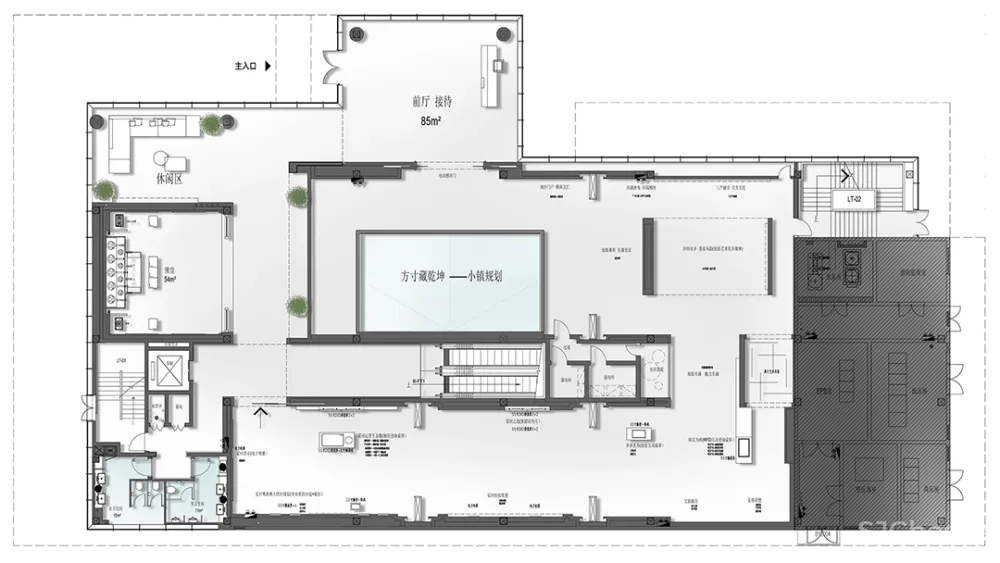
图纸呈现
△一层平面布置图
△二层平面布置图
项目名称 | 中国(南沙)时尚珠宝文旅小镇展示中心
业主单位 | 星河控股集团
项目类型 | 展示中心
项目面积 | 1392 ㎡
软装设计 | EHOO 易虎设计
室内设计 | GIES 杰尔斯
设计时间 | 2019.11
完工时间 | 2020.05
项目摄影 | 本末堂
项目摄像 | 星希唯文化
特别感谢 | 邓立、张晋华、黄实华、林庆枫


现在这个浮躁的世界,能细心整理一些东西发上来的越来越少了。要么就是敷衍的图片,要么就是枯燥的文字。之后就是AI生成的预制菜类的打包便捷快餐了。感谢楼主的分享,让我能在大智能无人化来临之前,看到同类发出的项目。有幸与您互动,缘分2
是不是一直复制,人就会变懒,变笨,第一次的复制粘贴,可能还略带羞赧,第二次再复制,内心的自责就少了一分,第三次毫不犹豫的ctrl+v 是那么的心安理得。回头一看,重复的留言已经700多条了。心安理得么?得到了什么呢?
人生本就短暂,走了除了家里三代人能记得,谁有会记得谁呢?反倒是这数字世界会多多少少留下我们的印记,然而周而复始的评论终究无法让人看上一眼,注定成为网络垃圾。
宝剑锋从磨砺出,梅花香自苦寒来。