 
 
▲ 在建 / construction
 
 
▲ 建成 / Finished product
“生长”就是除了生命本身,过去和未来都可以被囊括其中,好的不好的都将一并接受,并重新启程。
 
 
现代主义大师柯布西耶,注重设计中的秩序,他提倡在建筑设计之中,从纵深排列的平面中,创造出一个可以走进去的延伸空间幻像,达到一种通透感。而室内设计中的通透感也源于这种从二维到三维的空间转化。
本案外建筑关系错落有致,多种组合拼接、相互呼应,空间层次有主有次,节奏分明。通透的落地玻璃是最为重要的设计元素,简简单单的软装陈列,将室内的产品充分展现。
 
 
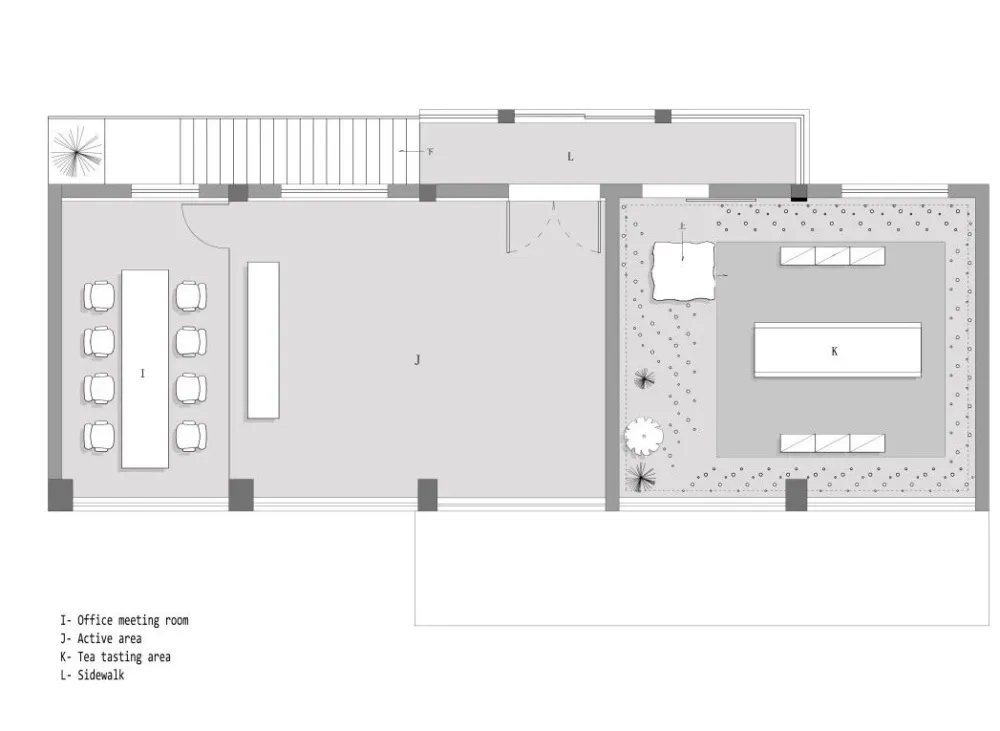
原有空间,墙体繁多,布局分散,动线关系凌乱而复杂,严重影响了展示体验。空间尚停留在二维的平面上,板滞而缺乏层次。设计师巧妙的将空间中不可拆除的墙体重新做了空间梳理,改变了原有的失序状态,最终确立了立体而通透的空间秩序。
 
 
借助项目本身的品牌定位和特点,以及外界周边所获得的直觉和信息,设计师重新理解和构建新的存在。对于本案,并不单单是对废墟和新生的重新考量,亦有重塑和构架。生存、生长、新生,将当下的发展观念和功能需求置入其中,重新组织布局,功能业态、新生关系、打造一个全新的感官空间。
 
 
 
 
 
 
 
 
 
 
一楼办公、洽谈、休息、茶歇,选取长卷打开的表达方式,照顾了实用功能的实现后,并兼顾审美情趣。
 
 
 
 
非淡泊无以明志,非宁静无以致远。 设计从返璞归真的东方哲学出发,将日本文化传统中的木、竹、枯山水等元素融入空间,寻求人与自然融合的诗意状态。置身其中,自然而然放下身心,平静的感受当下,一草一木、一杯一盏所蕴含的包容与承载。
 
 
 
 
空间选用原木色和光,表述画幅的纯粹及诗意,在提供情感归属和文化认同的空间内,适当留白,来丰富空间的想象力,既温柔又有趣。
 
 
 
 
 
 
会心不在远,得趣不在多,人文气息与艺术气息的交织,展现出空间的生活美学以及器物情境之美。
 
 
光衬着景为空间蒙上了一层滤镜,古今碰撞的同时,又呼应了场域感,“孤舟蓑笠翁,独钓寒江雪”。室内造景的每一处陈设,都有各自的生命。
 
 
 
 
 
 
被植物细细切分的光,投射在空间的物体上上,光影感体现出专注和立体,凸显了其秀美的一面,光线穿过玻璃照射在墙体及地面上,每一束光,都极具生命力,不同时间,不同力度,不同感觉。
 
 
“昔去雪如花,今来花似雪”,时间的流逝之美被古人说得格外动人。而展示空间的白描,也恰恰总是着以艺术之笔,于神思之外,生出曼妙灵花。
 
 
 
 
 
 
 
 
通过材质的变幻构筑当代设计语境,软装的陈列分界空间的自然属性,过道或座席、线与形、虚与实,都是边界弹性而模糊的存在。
 
 
 
 
 
 
 
 
材质的运用极其考究,贯穿连续的项目特性,加之统一的“弱对比”色调,将亲近自然的精神融于雅致和谐的整体氛围,赋予从容安定的空间感受。
 
 
 
 
 
 
 
 
踱步而入,深色的胡桃木与橡木作为空间的主色调,纯净中潜藏无限生机,正是东方美学强调的平衡意境。
 
 
 
 
软装会为了空间牺牲装饰,硬装也会为软装舍弃许多技巧,但我们依旧会在力所能及的范围内,尽可能地保留对万物的平衡,让空间饶有趣味的不只是突如其来的感觉,更包含高层次的体会和理解。当这种思想浓缩,就成为了美学。
 
 
 
 
 
 
 
 
在享受光线的极致体验,以及空间情感带来乐趣的同时,从不同的界面,色彩,材质,氛围去传递美,以此来抵御世俗的缺憾。
 
 
 
 
二楼入口茶水区,门洞处采用镜面不锈钢,通过材料自身的特性,营造出一种空间时机上的转换和切换。沿着楼梯拾级而上,楼道干净清雅,脚下的灯光伴君而行。
 
 
 
 
行至二楼,透过木栅背景的结构更能让人心生遐想,“山有木兮木有枝”,借用传统来打造出更具现代感的空间结构,把一切世俗隔绝在外。
 
 
 
 
 
 
 
 
空间的顶面造型延伸至墙面 ,层级依次降落。墙面层叠的灯光呼应红色的镀膜玻璃,给整个空间带来了艺术性灵动性。内敛有序的灯光,用自己的语言诠释着空间的可能性,无论是自然光还是灯光,都因为光的光明、希望寓意,而成为设计中最值得期待的部分。
 
 
 
 
 
 
茶室通过立柱做了结构和视觉上的穿插,模拟出一个身处丛林的时空感,去表现独特又新颖的视觉体验。结合内部空间的功能特点,让人犹如时光的剪影,穿梭在这片丛林当中。纵深通透的茶室并非乏味得一览无余,而是在“似断非断”、“似隔非隔”的张力下独具魅力。
 
 
 
 
 
 
设计师将传统材料重新定义,去建立一个人与环境的对话窗口。空间是可以灵活的,松散的,随性的,多变的,利用空间本身的结构特点做空间装置语言,体现其独特的精神气质,乍看不知何为,细细寻味,意远留长。
 
 
空间营造出静逸的休憩场景,去感受时间的生命力,在微弱和谐的对比中,细数每一寸斑驳的界面在时光里蔓延,去抒写恬静温暖的空间氛围,过去、未来、现在,连成一线,安静和谐。
这是一个值得静候的空间,在观点开放而具弹性的空间架构中,不仅当前的成果能表述观点品味,更期待随着时间的推移,在材质的呼吸演化过程中,抑或随生活、见闻所积累的个人变化中,能够覆写、包容未来的经验,寻得平静与心性的自由。
 
 
在本案的设计与实施过程中,为了最好地糅合东方哲学与生活美学,设计师经过反复推敲,精益求精,对体量、尺度、光线、色彩、肌理及空间的特性需求等进行精准的洞察及综合把握,延续仓石设计一贯强调的简约美学逻辑,并力求在当代的建筑秩序中寻求自由的精神传达。
设计图纸 Design drawings
 
 
▲ 门头结构 / Facade structure
 
 
▲ 门头全貌 / Facade
 
 
▲ 一层平面/ First floor
 
 
▲ 二楼平面 / Second floor
项目名称 | 艺枫榻榻米
项目面积 | 255平方米
设计公司 | 上海仓石设计有限公司
项目类型 | 展示空间
灯光设计 | 第壹舍灯光
摄影团队 | 金选民 丛林
 
 
Founder / Long Shao (Leo)
2019-最佳设计BEST100大奖
2019-IAI全球设计大奖-商业空间优秀奖
2018-APDC亚太室内设计精英邀请赛 会所大奖
2018-IDS商业空间第一名 优胜奖
2018-香港APDC亚太室内设计师大赛会所最高奖 至尊奖
2018-华鼎奖商业空间最高奖 金钻奖
2018-红棉奖 商业空间大奖
2018-金堂奖 休闲娱乐 优秀奖
2018-艾特奖 南京赛区 优秀奖
2018-《新设榜》50*50年度创新设计师
作品刊登《发现设计》,上海《精品家居》等媒体平台


