项目位于重庆市南岸区,地处江边的一套私宅叠墅,业主是一家对生活品质有很高要求的新中产。优越的地理环境,本身自带气场,同时也彰显着重庆这个城市在新时代的活力和发展。通过多次跟业主沟通探讨,最终我们希望打造一个意式极简的家居氛围和空间格调。
空间承载着我们对于生活,对于家,对于心中净土的期许。本次项目更是如此,空间作为叠墅空间,整体以高级灰为基,低饱和度彩色点缀其间,形成轻松舒适的空间氛围,同时也不乏低调内敛的腔调。
空间围合以线性元素贯穿其中,简致,流畅,搭配现代家具,干净素雅,结合大理石和金属的纹理走向,让空间背景兼顾美观舒适的同时,植入安静纯粹的精神观感。
选材在满足设计需求的前提下,着重从环保、品质和经济等方面着手。地面整体选择大板仿石材砖通铺,增大空间延伸感和视觉感,浅灰色的颜色也在空间中有提亮空间安静气质的效果;大面积墙面选用米灰色肌理壁纸,纯色的壁纸,搭配一定纹路的肌理,让空间干净整洁,同时又更有质感;
设计摒除过度矫饰,视觉中大面积的灰调,虚实,显隐,互相作用,形成视觉的张力。家居灯具点染其中,形成静逸脱俗的艺境之美。
艺术和设计有着深厚的文化渊源,它既可以是视觉的欣赏对象,也可以是承载感情和理念的美学表达。通过梳理空间,我们希望塑造一个安静的当代艺境奢宅。
素色美学具有极好的和谐感,摒弃一切繁复的华丽,低调而奢华。精致优雅的家居,配以精心挑选的灯具,让空间多了几分优雅。
卧室均以多层实木地板搭配使用,让卧室更具温馨舒适的感受。全屋创新性的采用极简窄边框推拉门,线条感极强的门框搭配金属夹丝的玻璃门板,与金属不锈钢结合使用,设计感极强。
全屋充分考虑收纳系统,在柜体木制于金属交接的地方均留有工艺缝处理,大幅度提高整体品质。卧室除了壁纸的铺贴外,床头背景结合布料硬包以及皮革面料搭配金属使用,品质感十足。
女儿房顶面使用光纤灯,满足孩子对于星空的幻想。
交房使用后,业主对整体效果非常满意,特别喜欢坐在江边的沙发上休闲放松。对于全屋的收纳系统,用起来也是得心应手。客餐厅一体结合西厨岛台的做法,也让业主非常喜欢。空间体量在进行了改造梳理之后,有所增加,开阔的空间体验也在无形中影响着业主的行为和生活模式。
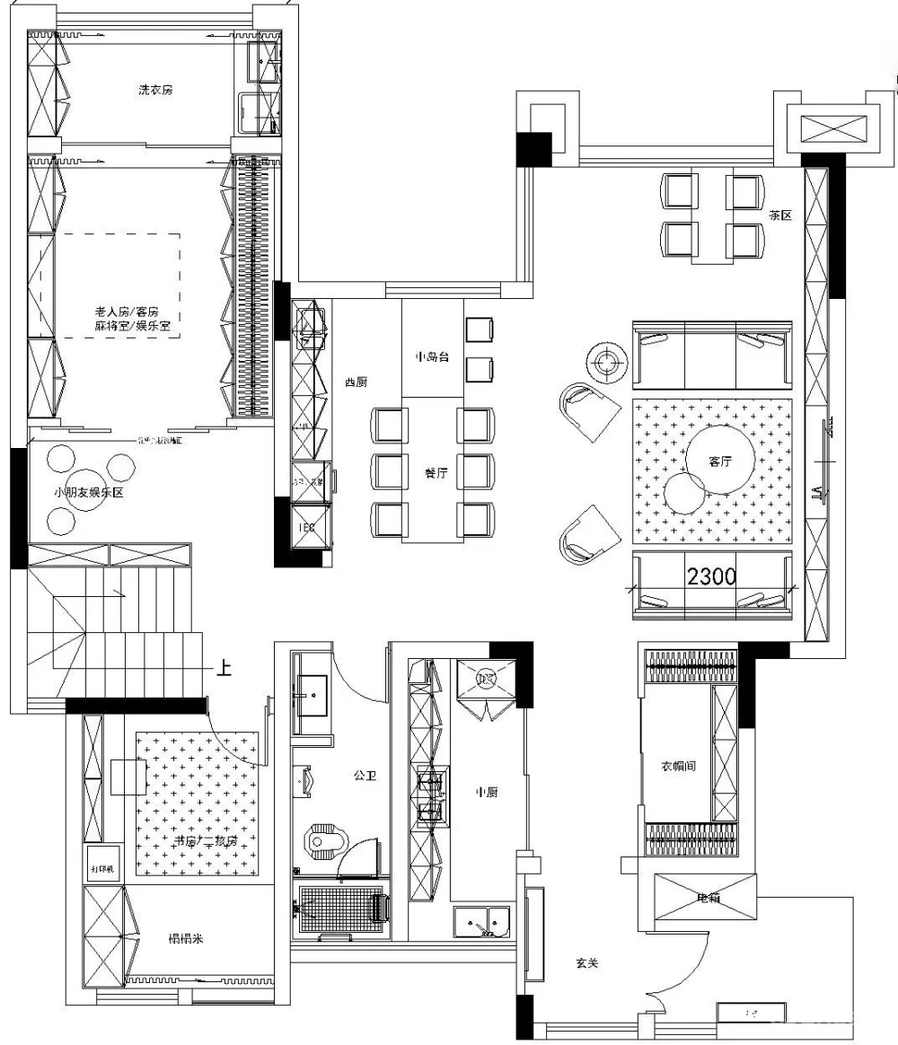
原始建筑结构是一个有挑空客厅的顶层叠墅,餐厅位置狭小,没有入户更换衣帽以及收纳储物的空间配置,同时卧室数量足够但是面积都比较小,另外本身处于江边,对于江景别墅应有的感受,没有达到需求。综合考量现场情况和业主需求后,我们将原餐厅位置规划为步入式衣帽间,将客厅旁边卧室打开,植入西厨和中岛概念,强化就餐文化,并且增大沿江的观景面,让更多的江景进入空间视野,增加采光通风的同时,提升空间江景叠墅的气质。
在原客厅挑空区,我们将挑空区封闭,作为主卧室来使用,同时规划男女主人分开的衣帽间,卫生间,形成豪华套房的概念,增加空间使用的舒适度。一楼预留两间卧室,满足老人临时来短住的可能,同时兼具书房和娱乐室;二楼预留健身房和露台,作为一家人休闲健身的功能空间,在过道部分植入迷你吧,满足夜晚饮水需求。空间经过整合梳理,最终形成一套完整的江景别墅格局。
项目地点:重庆市南岸区金辉江城里小区
竣工时间:2020-07-27
设计机构:忱意空间设计研究室
摄影:聿空间摄影-刘伟
ZEAL.DESIGN忱意设计,于2016年在上海成立,是一个以设计为驱动的团队。团队成员经过多年行业熏陶,拥有深厚的专业功底、丰富的实践经验和卓越的创新精神。
忱意设计一直实践着对当代艺术美学的探索和理解,回归设计的本质,在理性的简明中觅得灵魂的舒张,呈现空间形态的干净凝练与流畅协调,自然而然地生发出生活的格调,凝聚时空意识,让人回归内在的安宁,进入丰厚的精神世界。设计团队不断研发独特的设计风格与个性化标签,在将空间功能极致优化的前提下,通过寻找更具品质感的材质、更具艺术感的色彩搭配方案,为业主带来更多细节上的人文关怀。
忱意设计团队提供住宅空间、商业空间、办公空间、会所、酒店空间的整体规划设计,集空间设计、软装陈设设计于一体,并提供工程施工管理指导服务。从需求分析、设计方案的制定到施工执行、节点验收、陈设布置,我们旨在最大限度保证设计方案的最终落地。
2019年 艾特奖 铜奖
2019年 金蝴蝶奖 金奖
2019年 金堂奖 入围奖


现在这个浮躁的世界,能细心整理一些东西发上来的越来越少了。要么就是敷衍的图片,要么就是枯燥的文字。之后就是AI生成的预制菜类的打包便捷快餐了。感谢楼主的分享,让我能在大智能无人化来临之前,看到同类发出的项目。有幸与您互动,缘分2
是不是一直复制,人就会变懒,变笨,第一次的复制粘贴,可能还略带羞赧,第二次再复制,内心的自责就少了一分,第三次毫不犹豫的ctrl+v 是那么的心安理得。回头一看,重复的留言已经700多条了。心安理得么?得到了什么呢?
人生本就短暂,走了除了家里三代人能记得,谁有会记得谁呢?反倒是这数字世界会多多少少留下我们的印记,然而周而复始的评论终究无法让人看上一眼,注定成为网络垃圾。
宝剑锋从磨砺出,梅花香自苦寒来。