冈德美术馆(Gallery Building)由 GUND 设计,位于凯尼恩学院(Kenyon College)的中心,是校园艺术的灯塔。 美术馆的建筑材料参考了校园内其他建筑,包括锌板、陶瓷长板和玻璃。 本地材料砂岩广泛用于校园内其他教学楼,也是美术馆的外墙材料。美术馆的设计对于校园的建设来说是一种发扬、扩展和补充。


外部装有陶瓷板的方形玻璃空间是这栋标示性建筑的主入口。 玻璃立面展示了美术馆内部的艺术展览和装置,让路人能够在偶然一瞥中被吸引,进入楼内探索艺术和艺术史。 大堂是美术馆日常开展和特殊活动的接待区,也是学生聚会的场地。

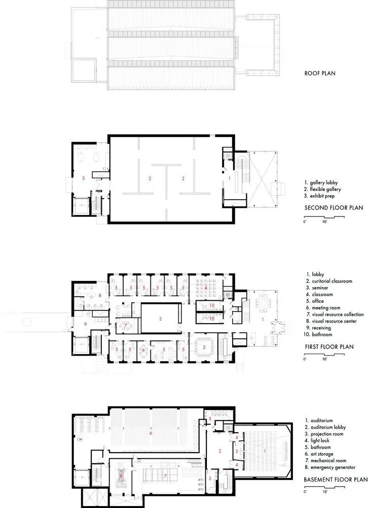
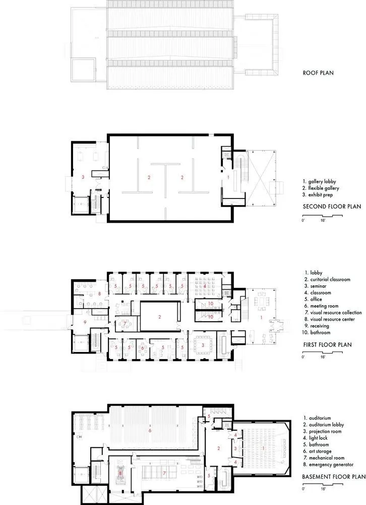
美术馆的首层提供了学习和办公的地方,包括能够灵活使用的教室和研讨室,和位于建筑中心的特殊互动式教室。 多功能的无柱式展览馆位于顶层,上方配有能够调节日光的探测器。


这座两层楼的建筑有两个相关但截然不同的功能:美术馆和画廊以及相关的行政、后勤和贮存区域; 以及美术史学院的教室、演讲厅、办公室和行政设施。 建筑的设计和功能排布很好地考虑并解决了美术馆和艺术史学院这两个不同的功能和需求。





建筑师 GUND Partnership 地址 Gambier, 俄亥俄州 43022, 美国 建筑面积 31300.0 ft2 项目年份 2011 摄影师 Brad Feinknopf 厂家 LinEl Signature, Briar Hill, MOEDING, Shildan, Gallery flooring, Panaria Ceramica, Construction Specialties, Rulon 信息来源;上海建筑与室内设计师网
版权声明:本文内容由用户自行发布上传或投稿由设计芝士代为发布,版权归原作者所有,设计芝士不拥有其著作权,亦不承担相应法律责任。如果您发现本站中有涉嫌抄袭或侵权的内容,请点此提交工单进行举报,一经查实,本站将立刻删除涉嫌侵权内容。

