Bauhofstrasse Hotel
要说到现在建筑的「潮流」,那就得提
了。虽然这个概念一直以来都被提到,但真正能落地执行的案例却不多。
今天要介绍的这家酒店,位于德国路德维希堡,名为「Bauhofstrasse Hotel」,就是用了这种建造方法,且仅仅用了 5 个工作日就建好的酒店 ▼
这家酒店由 Matthias Siegert 与 Dennis Alexander Mueller 二人共同创立的德国设计事务所 VON M 设计,目前已经入围了包括德国立面奖、AIT 奖、DAM 奖等各种奖项 ▼
酒店位于一个历史建筑街区,它的总建筑面积为 2058㎡;并且高度与相邻建筑一样,共有四层楼,屋顶也采用了相呼应的结构,这让它能很好地融入整个街区的环境 ▼
建筑的外立面整体看上去非常干净,并且开窗非常整齐划一,这也是借鉴了周围历史建筑的建造方法 ▼
外立面采用的是白色的水泥纤维板材料
,让整个建筑的外立面简洁,另外在表皮也能看到独特的纹理特征 ▼
但不要被它的外观所迷惑,
因为这栋建筑实际上是一栋木结构的建筑。
这点从酒店的室内空间就能看明白,从酒店的大堂、餐厅、一直到客房,都是采用了木材,饰面也保留了木结构固有的肌理特征。
这与建筑的外立面形成了反差,形成了独特的室内空间氛围 ▼
而且,这家酒店的建造时间仅仅只用了 5 天!
酒店的客房就是一个个的「模块」,采用了当地木材,在奥地利的福拉尔贝格生产 ▼
房间的墙壁、地板以及天花板,都采用了经电脑切割的交叉层压木材制成,拼装在一起后就是一个个「容器」▼
这些模块内还会配备必要的附件,例如窗户、地面和瓷砖。建好以后的「客房模块」被打包,运送到路德维希堡 ▼
酒店的地下层、一层采用了混凝土,建造了能够支撑地上木结构预制模块的「地基」▼
接着便是把一个个的模块用吊车吊起来,移动到原本定好的位置 ▼
除了「地基」是混凝土的之外,楼梯部分也采用了混凝土材料来制作,让整个建筑更加牢固 ▼
一个个「客房模块」就像搭积木一样摆放在一起 ▼
客房模块摆放完毕之后的模样 ▼
最后就是屋顶了。屋顶同样也是预制模块,两个模块堆叠到了建筑的最上方,完成了整个建筑的雏形 ▼
盖上了屋顶之后的模样 ▼
之后再把建筑的表面部分完善,采用了前面提到的水泥纤维板 ▼
整个过程仅仅用了 5 天,在生态、效率、工期与质量方面,建立了行业标准的典范。
建造中,因为使用混凝土材料而造成的二氧化碳排放量共 880 吨,但都被所使用的 440 立方米木材节省的排放量给替代了,
成为一个「碳中和」的建筑
接着让我们来看完工以后的酒店室内 ▼
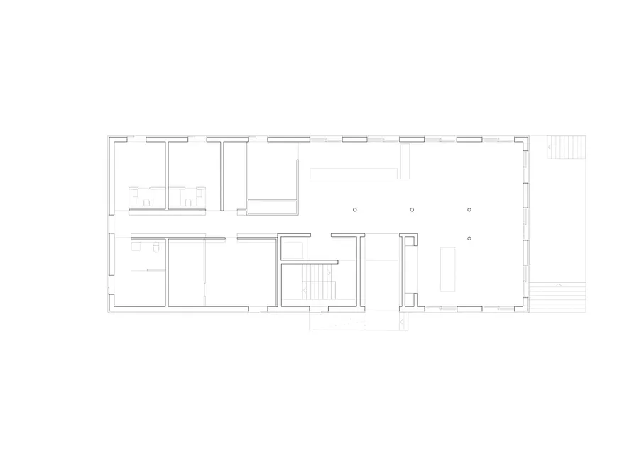
建筑的一层设置了酒吧、接待区、办公区域以及行李寄存间 ▼
在这些空间中,建筑师专门设计了吧台、柜台以及桌椅,都是由当地工匠以白蜡木材料精心制作 ▼
实心的拼花木地板同样采用白蜡木,有着独特的天然纹理,并且这种材料质感也延续到了其他楼层中 ▼
楼梯空间则是由混凝土制成,并且辅以金属材料和木材踏板 ▼
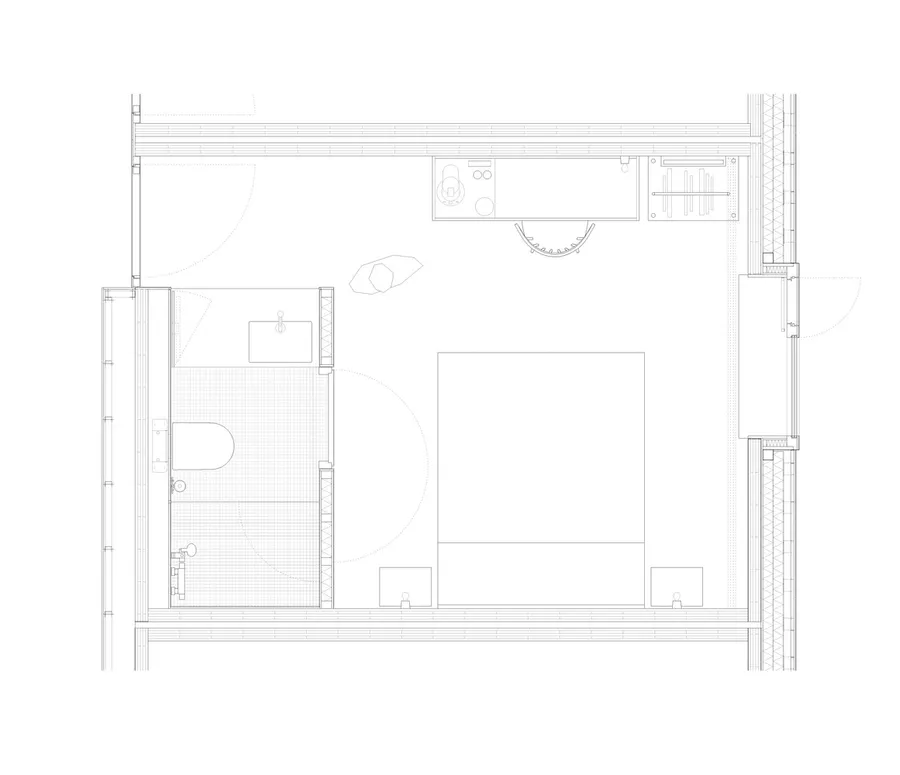
酒店内共有 55 间客房,都采用了中性色调的装饰,并配有米色和白色的窗帘以及灰色地毯 ▼
窗台凸出的部分还摆放了织布,既可以作为座位,又可以透过窗户观看到城市的景观 ▼
而且各种木材雕刻的细节也随处可见 ▼
现在,「木结构预制模块」已经成为了一种设计、建造的趋势,因为它既能节省成本,又更加环保,这对改善目前的环境有着非常重要的意义。
可惜的是,类似的成功案例还并不是太多,希望未来能够看到更多采用这种方式建造的建筑。


现在这个浮躁的世界,能细心整理一些东西发上来的越来越少了。要么就是敷衍的图片,要么就是枯燥的文字。之后就是AI生成的预制菜类的打包便捷快餐了。感谢楼主的分享,让我能在大智能无人化来临之前,看到同类发出的项目。有幸与您互动,缘分2
是不是一直复制,人就会变懒,变笨,第一次的复制粘贴,可能还略带羞赧,第二次再复制,内心的自责就少了一分,第三次毫不犹豫的ctrl+v 是那么的心安理得。回头一看,重复的留言已经700多条了。心安理得么?得到了什么呢?
人生本就短暂,走了除了家里三代人能记得,谁有会记得谁呢?反倒是这数字世界会多多少少留下我们的印记,然而周而复始的评论终究无法让人看上一眼,注定成为网络垃圾。
宝剑锋从磨砺出,梅花香自苦寒来。