 
 
百年前,曾是第一条标志性铁路建筑
项目位于曼谷热闹而繁华的Saladaeng街区,意为“红色的亭子”。
百年前,场地的前身是一座拥有红色斜屋顶的小火车站,是泰国第一条铁路上的标志性建筑。
而本次的设计也为世人揭开了这一段鲜为人知的街区历史。
 
 
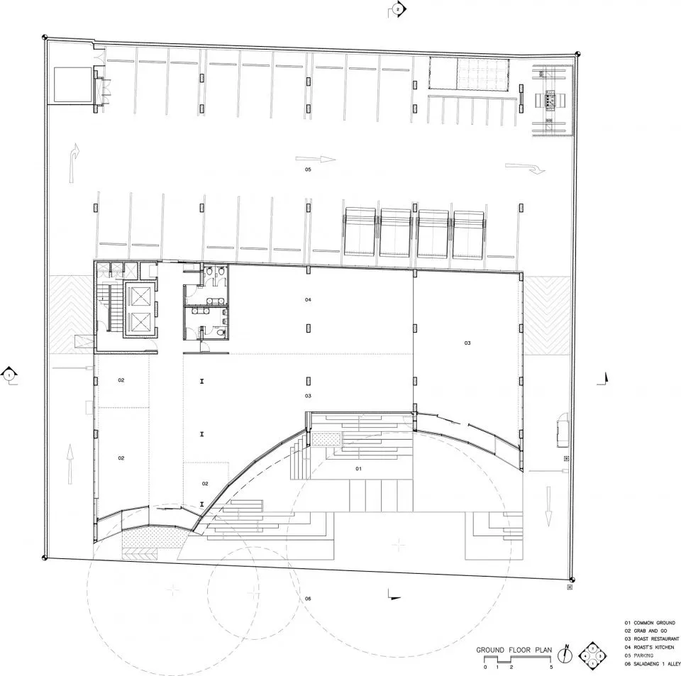
The Commons Saladaeng是一个集合了餐饮、零售等多种服务的社区型商业综合体。建筑以红色的橡胶板为主材料,兼顾了色彩和隔音上的需求。波纹状的表面与过去的屋顶材料相呼应。透明的红色屋顶板呈现出视觉层次的变幻效果,建筑形式简单大方,这也为此增添了一些新鲜感。八个小型的屋檐与周边建筑形成对比,特立独行,并通过专门设计的M型支撑结构使其在高度上有更为开阔的空间体验。M型屋顶在过去的情感维度与当代的功能尺度之间取得了良好的平衡。
建筑形体与原有环境相适应
▼俯视建筑,建筑形体与大树的有机
 
 
▼立面被设计为内凹的形式,减少了原有周边件环境的干扰
 
 
与15米高的大榕树拔地而起的商场综合体,依树而建,为了减少对原有周边环境的干扰,其立面被设计为与树木相适应的内凹形态,使这棵大榕树与建筑融合在一起,并在此基础上建立一个以大榕树为出发点的露天公共空间。与此同时,树的存在为内部空间赋予适当的私密性且亲切自然。
 
 
▼空间从街道层层向上延伸
 
 
 
 
▼层叠状的界面融合了大台阶、露台、座椅和绿植
 
 
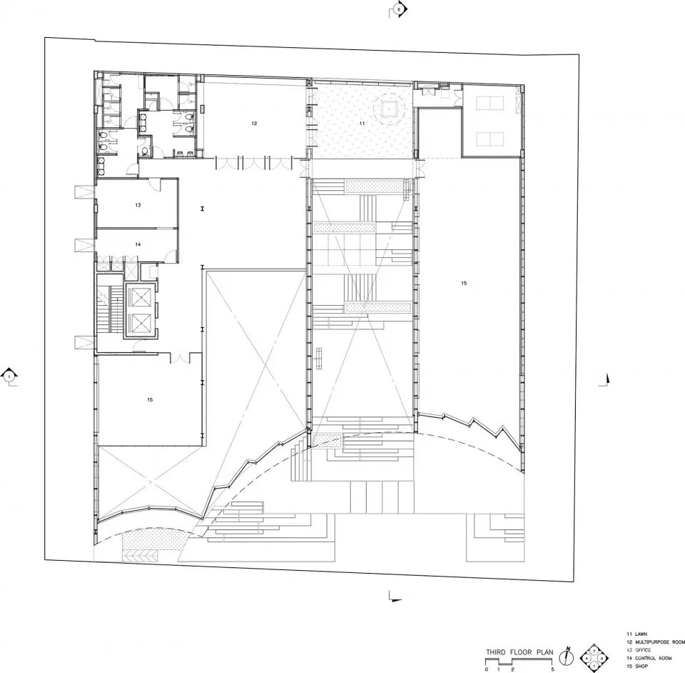
Saladaeng是一个高密度的商业中心区,在这里居住和工作的人们非常需要一个能提供舒适感的露天区域来缓解快节奏生活。因此,建筑团队将30%的用地打造为一个开敞式的户外公共空间。该空间从街道层一路向上延伸,将位于一层的餐厅、咖啡吧、二层的美食广场以及三层的多功能大厅连接起来。该层界面融合了超大台阶、露台、座椅和绿植,并通过大型的工业风扇为整个空间带来持续的空气流通,在提供轻松舒适的社交及餐饮空间的同时充分体现了曼谷的热带气候。
 
 
 
 
是一个可变的地面景观。特殊托架的建筑装置与层层叠叠的台阶结合在一起,形成多样化的活动空间。周末可以作为零售摊位;也可以堆叠成阶梯供孩子们玩耍;或者布置成大小不一的平台和舞台等等。使得建筑内的公共空间可以无限地进行调整,以适应未来的各种需求变化。
共享模式 | 从“时间”划分“空间”
 
 
活动在不同的时段中发生
 
 
 
 
 
 
 
 
由于场地面积的限制,并不能像其他许多大规模的商业综合体那样,通过大量独立区域来提供多样化的服务。
在此情境下,“The Platform”应运而生,这是一个采用共享经济模式来优化空间规划和创意运营的新型概念空间。
不同于按照功能来分割空间的做法,“The Platform”
,即让不同的活动在不同的时段中发生。
时间的分配与空间的合理设计,为商场提供了更为灵活的空间,诸如烹饪课、主厨餐桌、酒吧、运动、儿童艺术工坊、派对等丰富多彩的活动可以在一天之中有条不紊地进行。
 
 
 
 
 
 
▼The Commons Saladaeng夜景
 
 
 
 
 
 
 
 
 
 
 
 
 
 
 
 
 
 
The Commons Saladaeng是一座全新的城市街区生活建筑,它扎根于曼谷当地的环境和气候人文,展现了独特的场所精神。同时,该项目紧跟当下经济模式,深入街区环境,不断适应着社区生活的需要。
设计公司:Department of ARCHITECTURE
材料:木材 金属 钢 玻璃 橡胶
分类:商业建筑 热带建筑 综合体 购物中心
设计时间:2018.03-2018.11
建设时间:2018.11-2020.01
主创设计师: Amata Luphaiboon , Twitee Vajrabhaya
项目负责人:Chanlika Boonpha
硬装设计师:Department of Architcture Co.
软装设计师 : Patom and Suan Sampran
灯光设计师:ACCENT Studio by Nopporn Sakulwigitsinthu
摄影师:Spaceshift Studio
Project Name: The Commons Saladaeng Location: 126 Soi Saladaeng 1, Silom, Bangrak, Bangkok 10500
Building Type: Commercial Building
Design Period: March 2018 – November 2018 Construction Period: November 2018 – February 2020 Architectural Design: Department of Architcture Co. Principal Architect: Amata Luphaiboon , Twitee Vajrabhaya Project Architect: Chanlika Boonpha Hardscape Designer: Department of Architcture Co. Softscape Designer: Patom and Suan Sampran Lighting Designer: ACCENT Studio by Nopporn Sakulwigitsinthu Photographer: Spaceshift Studio


