本案是南京业恒达智能系统股份有限公司承建,我们秉持绿色,科技,创新,智能的设计理念,融合大数据、VR、AR、三维可视化、全息投影等技术,将鄂尔多斯现代能源经济研究院展示中心打造成为国际领先的未来能源展示中心。
项目地址:鄂尔多斯伊金霍洛旗
项目面积:700平方米
项目设计:吾索设计
智能视觉设计:南京业恒达智能
灯光设计:南京光合未来
摄影机构:EMMA
主要材料:黑钛不锈钢 天然大理石
PanDOMO 混凝土漆
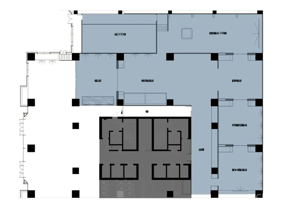
展示中心依托院士专家团队攻关的煤矿六大研究课题,为矿产资源开采新技术、新工艺、新设备提供展示平台。结合六大课题研究内容,以智能、绿色、高效、安全为主线,总体设计包括序厅、智能开采展厅、绿色矿山展厅、煤矿大脑展厅、安全预警展厅、CAVE展厅共计六个展厅。分别展示伊旗的能源整体布局、辖区内煤矿的智能化发展、绿色矿山的建设等情况,突出伊旗大力发展能源循环经济的基本情况及循环经济产业基地建设的优势。
平面布置图
展厅整体布局以科技展示功能为动线,以科技感的蓝色灯带作为空间的视觉引导,给参观的人带来纵深探索的期望
每个功能展示区域通过两扇移门作为分割,移门采用投影漆,每个空间的门通过投影仪投放画面,同时让功能性的隔断门也作为整个空间视觉展示的一部分内容。进入到每个区域都会先通过一段展示内容。
不同展示区域通过不同的展示形式,让整个展览流线的展示内容更加丰富多样。
空间整体色调及材质都以暗色及哑光材质为主,在灯光的作用下能更好的的凸显高科技展示方式带来的视觉冲击。
多样的展示内容
THE END
项目地址:鄂尔多斯伊金霍洛旗
项目面积:700平方米
项目设计:吾索设计
智能视觉设计:南京业恒达智能
灯光设计:南京光合未来
摄影机构:EMMA
主要材料:黑钛不锈钢 天然大理石
PanDOMO 混凝土漆

