Minimalist House
纯粹的极简,已经成为全世界众多设计师喜爱的设计气质。它们纯净、自然、质朴,还能凸显出艺术气息。
来自瑞士的建筑公司 Think Architecture,由 Ralph Brogle 和 Marco Zbinden 共同创立于 2008 年,以极简风格闻名 ▼
Ralph Brogle
他们擅长创造简洁清晰的建筑形状,并通过对色彩的限制与空间的留白,表达一种独特的高级意境。
我整理了 Think Architecture 的 8 个作品,包括最近在苏黎世湖附近完成的一栋别墅,以及一些非常好的别墅作品和效果图。
House at a Vineyard
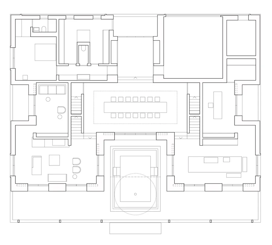
这栋位于苏黎世的「葡萄园之家」位于一个野花盛开的草地上,事务所为一个年轻的四口之家所创建。
两层楼的别墅建筑拥有对称、简单的外观,简洁的线条融合了新古典主义的风格,直线空间将周围的景观切割成一块一块的风景画。
室内有着相当朴素低调的色调,并且通过各种不同的材质将空间的层次感凸显出来。
人字拼木地板与厨房岛台的绿色大理石台面,材质和纹理形成了鲜明的对比。
从巨大的玻璃落地窗可以看到窗外的下沉式庭院。
卫生间的浴缸采用了极具工业质感的白色浴缸,墙面采用了蓝色,让整个氛围更加舒缓而宜人。
室外的庭院以及阳台是整个别墅最独特的设计,在这里可以享受到独属于乡村的田园风光。
庭院的地板采用了深浅不一的人字拼木地板,让地面充满层次感和节奏感。
下沉式庭院中央种了一棵树,周围空间都是围绕着这棵树而展开,地面的碎石子让自然气息进入到空间的氛围之中。
House in a Park
这个房子位于一个山坡上,就像是由一系列单体建筑组成的空间,建筑主要采用了天然石材以及混凝土材料,周围的空间也如同公园一般舒适宜人。
建筑的形态从周围的自然轮廓中汲取了灵感,层叠蜿蜒地形成简单的形状,并且和谐地融入了环境之中。
室内充满简单的几何形状,相互组合,形成了极简高级的空间氛围,大面积的留白用不同的材质来加以区分,让画面更加协调。
天花板上可以看到有许多天窗,将室外的自然光线引入室内;空间中的书柜则是专门定制,有着如同迷宫一般的柜架设计。
设计师通过减少形式和色彩,提取了纯粹的环境品质。
房子内还有一个纯色的旋转楼梯,其轻盈的体态给予看似沉重而肃穆的空间中增添了灵动之感。
卫生间同样有着非常强烈的线条感,不同的材质之间通过和谐的比例形成对比,构造出一个充满秩序美感的画面。
House on a Ridge
这栋房子同样位于山坡之上,如同盒子堆叠而成的建筑,有着极为简练的外观。
下沉式的入口处为进入房屋增添了仪式感,同时可以看到石材以及条木等充满自然气息的材料,让其与周围的环境相融合。
Think Architecture 的效果图与其他追求真实感的效果图不同,他们喜欢处理成更加有意境的画面。
Ensemble Bergstrasse
一个巨大的别墅通过虚实结合的画面,创造出一个充满意境的极简主义别墅。
Cross House
Pergola House
Shed Houses

