不同材料和形状的家具 ©汪敏杰
这个项目非常复杂,但在设计时我们并没有刻意创造一个特定的氛围或空间形式。最终产生的结果更像是对思路,灵感和直觉的梳理而非设计。
DSC是一家拥有多个品牌的买手店,设计目的是希望有一个空间可以适合所有服饰,而店铺主人的喜好也是丰富多样。在理解设计需求的基础上,我们意识到DSC会是一间拥有多种材料,元素和风格的店铺,因此我们将重心转移到创造多种元素之间的和谐。
▼设计草图 ©Say Architects
我们把现状的几个柱子用异形形状包裹起来,这些形状完全随机,由空间尺度和视角决定(当然了,这些形状都是由草图发展开始),在不同视角这些形状也看起来不同。在这些奇形怪状的柱子旁边就是衣架。天花也是异形的,在和柱子交接的位置被柱子拉扯住,和柱子产生了联系。
▼柱子用异形形状包裹©汪敏杰
两个面向不同方向不同材质的木柱穿过天花撞在地板上,不同颜色的着色玻璃咬合住木柱形成搁架。
▼不同方向的柱子上设搁架 ©汪敏杰
店内的家具仿佛是多种元素和材料的杂交,其设计完全出自直觉,具有一种有趣的混乱感。店铺中央奶酪一样的桌子,因其形状和色彩,而具有很强的存在感。这桌子的精确尺寸最终是在施工现场一点点调整出来的。
▼不同材料和形状的家具 ©汪敏杰
背景墙是在施工开始前拆除后留下的原始墙面,当然这些墙面的表面都是经过处理的,毕竟我们也不是原始人,还是要保持衣服干净。墙面前不锈钢的衣架干净简洁,和墙面形成一种有趣的对比。异形天花和柱子形成了非常有趣的奇怪空间体验。
▼异形天花和墙面 ©汪敏杰
▼粗糙的墙面与不锈钢衣架形成对比 ©汪敏杰
在面向东面的一面全尺寸玻璃前,我们放了一块一吨重的砂岩(专门去石材厂选的,只有顶部和底部经过打磨处理,侧面完全是原始状态,这样它就变成了一张桌子),在搬运进场的时候,8个“猛男”才将这块石头搬运到位。另一侧有一个弹簧一样的衣架和另外两块摆放鞋子和包的石材,这两块石材小很多,但也四个“猛男”才可以安全搬运放置。“弹簧”和这两块小石头放在一起产生了一种很趣味性的场面。这个弹簧衣架在放置衣服的时候还会有轻微晃动,真的像弹簧一样。
▼玻璃前的砂岩桌和弹簧衣架 ©汪敏杰
DSC有一个小咖啡馆贴附在DSC北侧,面东开门。这间咖啡馆和买手店截然不同,规则而且甚至有点复古。我觉得,在设计阶段我们花在这间咖啡厅的设计时间远大于买手空间。咖啡厅的地面是用这间店铺以前装修使用的石材碎片制作成的。
咖啡厅和买手空间通过黄色着色玻璃分隔,并延伸至室外一个小庭院,庭院地面是和室内相同的特制水磨石。我们手工制作了三块混凝土作为店铺的标牌,每块都有些许不同,非常粗糙而且信息也不清晰,但是我认为这恰恰反映了DSC最终的呈现效果和性格特点,这间店铺混乱却和谐,空间甚至有点童趣和粗糙,整个空间就像是一个富有天赋的小孩子,没有规则但却丰富有趣。我非常愿意称这个项目为“不设计的设计”,他的设计过程更像是对灵感和思路的整理,是一种充满确定性的不确定,材料多样混乱,但相互融合协调,项目进程就像是和自己不断进行讨论和尝试。
▼小庭院细部 ©汪敏杰
不设计的设计,确定的不确定,不协调的协调。
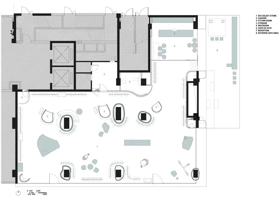
▼平面图 ©Say Architects
状况:完成 年份:2020 面积:320㎡ 地址:中国海宁 项目类型:买手店 设计公司:Say Architects 主持设计:张岩、单嘉男 团队:范雅雯(项目负责人)、杭升、朱佳鸣 网站:
www.sayarchitects.cn
info@sayarchitects.cn
空间影像:汪敏杰 家具设计:Say Architects 施工团队:杭州齐天装饰工程有限公司 装置制作:浙江诺隐家居有限公司


?
?