你或许已经见过无数种别墅的设计,但围绕着一台车来进行设计的呢?
来自法国的汽车品牌雷诺,为了研究围绕电动汽车的新生活方式,邀请到了建筑事务所 Marchi Architectes 来进行概念设计,名为「House 33」。
Marchi Architectes 创始人
最终,House 33 在法国的一个村庄附近正式落地 ▼
房子位于一片草坪旷野上,有着简单而独特的建筑外形 ▼
这个房子呈现出狭长的形状,具有金属结构、木质内饰面板和大面积的玻璃落地窗,室内采用了开放式的布局 ▼
室内可以看到主要还是采用了条木作为主要的饰面,配合对比度比较强大的色彩搭配让室内空间更有活力 ▼
最近,他们也公布了整个房子的建造过程,可以点击视频观看 ▼
在地上铺上几块铁板,用来支撑房子的支柱 ▼
房屋的架构开始搭建 ▼
不同于一般传统别墅的建造,这个房子的建造过程是非常快速的,因为只需要一些简单的预制件即可 ▼
整个房屋的框架基本上就搭建完了,看上去就像是一个铁盒子 ▼
房子的车库以及停车台面采用了圆筒状 ▼
二层同样也是采用圆形镂空面板的铁面预制件,直接拼装组合而成 ▼
外立面则是再用上金色金属面作为表面 ▼
房屋内会使用到升降台,也是现场直接制作装置 ▼
室内则是直接用条木贴在天花板是那个 ▼
细条木呈现出简约的美感 ▼
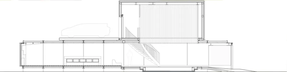
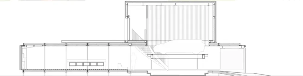
整个房子长 21 米,呈矩形结构,最高的地方高 7 米,整体只有 120㎡ ▼
房子的一层,四面都采用了全高的玻璃落地窗 ▼
整个房子主要采用了钢材、玻璃和木材,保持了极简主义的特质,突出了质感和透明度 ▼
房屋的二层有一个停车平台,可以直接将车停在屋顶上 ▼
房子的一层是主要的居家空间,包括了起居室、厨房和餐厅 ▼
室内主要就是木质的内腔为主,配色方案主要延续了金色的外观 ▼
房子的客厅看上去是一个下沉式的圆形小「广场」,采用了比较独特的配色,更加具有现代感 ▼
实际上这里收拾收拾,就可以用升降平台将车子运到一层 ▼
这台车是雷诺的「Symbioz」电动车,它在房子内与周围的空间相得益彰 ▼
此时二层依然可以作为生活区域,并且有一个可以移动的条木门 ▼
车子的内饰则是邀请到了设计师 Aleksandra Gaca 来设计 ▼
Aleksandra Gaca 创造了一种 3D 有机织物,她修改了不同纱线的结构,使其具有更加强韧的质量,让这种纺织品适用于汽车和家庭 ▼
得益于内饰的设计,档车子位于一层的时候,车子也可以做为客厅来使用 ▼

