济南自古以泉水众多而闻名于世,湖光山色是城市的生命之源,也是文化之源。文案以泉水为切入点构思空间格局,希望诠释流水从石缝中涌出的流畅姿态,波光粼粼。同时,以丰富的城市景观文化为脉络,水相设计从博物馆的概念出发,希望所创造的空间不仅能展示物品,还能给观者带来纯粹的建筑力量和美感的享受。不寻常的特殊尺度和观看方式,使直观的体验与展品相融合,交织成独特的文化记忆,提供更深入的田野意蕴。
 
 
用泉水滋养城市,用水滋润心灵
我们选择“水”作为核心,但它并没有像泳池水或瀑布那样具体的布置。相反,我们提取形而上的、与直觉产生共鸣的“意义”,希望空间中充满流动而宁静的自然力量,就像面对大自然的无限尺度时,我们意识到自己的渺小,会不知不觉地放慢自己的脚步。
 
 
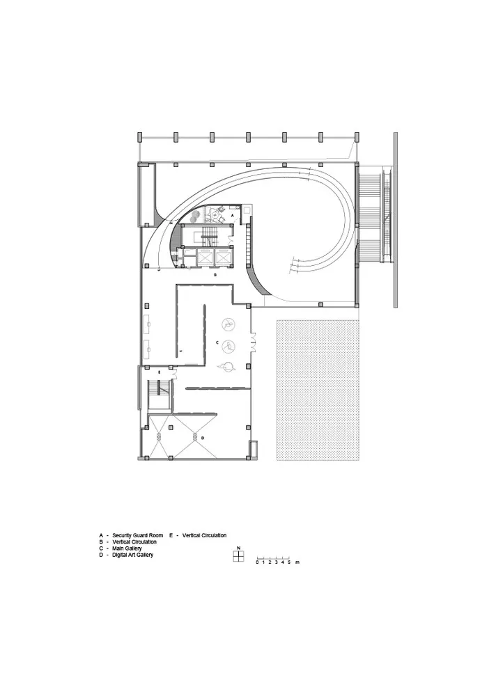
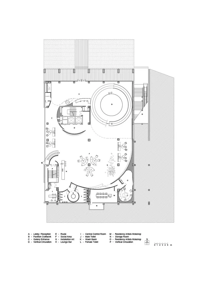
建筑设计通常使用垂直和水平线和分配空间立面,但当缓缓流动曲线作为设计的主要思想,我们可以看到创建一个环境,没有棱角,线条充满韵律感,使观众一个不寻常的感觉。具有这种属性的建筑就像一个巨大的、可进入的雕塑,它不仅塑造了内外空间关系,还包含了观者的时间感和行走感。如何将建模扩展到四维空间,形成一个复杂的观者与环境,成为一个重要的课题。
 
 
在14.5米高的大厅里建造了一个逐渐弯曲的梯子,创造了一个空间威慑感的开口。我们与温柔的斜坡取代锐利的楼梯,这是首次打破传统的刚性分割边界地板和消除中断愿景的角落,类似于经验参加展览在纽约古根海姆博物馆,在墙面围绕着观众喜欢strip-shaped景观,和观众可以步行或暂停稍微倾斜水平表面上没有困难,享受散步的宁静感觉。
 
 
忘记自己在大自然打磨的曲度里
延续流畅的逻辑,没有断裂面,大厅的墙壁和动线都是由线条和曲面构成的,看似不经意的弯曲,其实简单整齐。它们要么重叠,要么随风折叠,就像数百年来被水打磨过的天然洞穴一样。脱皮,切割、挖凿开的轮廓通过自然洗礼,线的及时性和力量,室内动态线由向前和撤军表面与不同的功能和地区春天就像看不见的海浪和洞洞穴,在沉默和连接现有的,每个波动和弯曲导致视觉上另一波的曲面和维度。
 
 
墙壁的运动方向也类似于意大利雕塑家翁贝托·博乔尼的作品,通过自我造型,有意识地延伸出活力和独特性。在这样一种场语言中,你能感觉到来自静态形式的一种倾向性的驱动力,就像进入一个在最后一刻被扭曲、变形、分割和移动的建筑。我们试图通过空间造型将物质世界和精神世界结合起来,让观者融入时间,从而通过对印象和思维的依赖,随着空间关系的出现而产生变化。
 
 
墙壁看起来像石头,在水平方向上扩展纹理,而水平面上看起来像一个平静的湖,沿着湖岸形成。岩石、石头、碎石、湖泊等自然事物通过更细致的材料表面来诠释,而代表手工劳动的笔直、冰冷、坚硬的切割线条则被弱化。这又一次呼应了有机运动中的线条,在结构中沸腾,让人体验到一种更持久的存在,超越了单调的天地日常生活。
 
 
昏暗的灯光是在低沉的声音中度过的时间
在这样的空间里,光线不是一目了然的。除了亮度变化曲线表面由于窗外阳光运动,交错的阴影深度的墙面和绕组之间的光环流动路径和墙接缝看起来闪闪发光的光的波反射在洞穴的圆顶,概述了空间和速度变化的同步性,就像楼梯的裸女,2号,马塞尔·杜尚的著名的现代主义绘画,它采用连续运动的静态来表示运动和捕捉时间。在这样的空间中,观者不仅被具象的结构所震撼,还能看到空间如何展现出超越立面的无限和运动的力量。最后,走进一个建筑后带回家的营养可以一点一点的滋养人们的日常生活。
 
 
 
 
 
 
 
 
 
 
 
 
 
 
 
 
 
 

 
 

 
 

 
 

 
 

 
 

 
 

 
 

 
 

 
 
 
 
 
 
 
 
 
 
 
 
 
 
项目位置:中国山东济南
设计公司:水相设计
设计面积:2800.0 m2
设计时间:2018
客户:济南华润
摄影师: Yuchen Chao


