会议室 ©DPD香港递加设计
“一起躺在梦中游, 岁月随着美梦流, 夏日伴着梦境走。” —— 《爱丽丝梦游仙境》
▼空间展示-视频 ©DPD香港递加设计
2020年是魔幻的一年!在疫情最严峻的阶段,居家办公的需求促使人们加速思考新的办公模式与状态。线上与线下结合的办公模式既提高工作效率,也减少沟通成本,为品牌产出更多的价值,开始广为接受应用,DPD在这个特殊阶段接到了这个特别的办公设计项目邀请。本案位于上海青浦区,作为一个以女性为主要消费群体的线上品牌,它更倾向于能够结合新型办公模式的空间。DPD以“新型办公室”为设计思路,将“梦幻”与“现实”、“艺术”相结合,展现一个兼具时代需求与美感的梦幻空间。
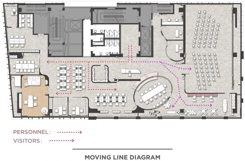
在空间设计上,考虑到对企业文化对外传播输出,有些区域能应用于拍照打卡,而在人流动线的设计上也是围绕着品牌传播和日常办公两种不同情况动线。
▼SU模型主功能分析图 ©DPD香港递加设计
▼人流动线图 ©DPD香港递加设计
YEARNING · 超前未来想象
“一个幼稚的故事,用温柔的手,把它放在童年梦想缠绕的地方,在记忆的神秘乐队里,像朝圣者枯萎的花环,在遥远的土地上采摘。”这是女孩一直都喜欢的童话故事,她憧憬向往着能在将来筑起那属于她的梦想地。
▼入口接待区 ©DPD香港递加设计
随着线上零售的崛起,互联网办公模式和线上销售模式逐渐普遍,因应于此,办公环境亦跟随时代不断进步。DPD在设计思考上希望整个空间能区别于传统的办公室,以顺应新型趋势为思考原点,弱化传统的功能需求和工作面积,提高工作效率,通过全新的空间布局和功能传递企业调性。
整个空间的主要亮点区域(前台、弧形会议室、培训室、休闲区等)放置于左侧,基础办公需求空间放置于右侧。椭圆形半开放会议室与前台结合穿插,产生互动连接。
▼天花和地板的弧线对称呼应,仿如天地各一线相交 ©DPD香港递加设计
▼具有女性形态代表的弧度,让空间更具柔美感 ©DPD香港递加设计
▼休息区 ©DPD香港递加设计
整体空间以粉红色和白色为主色调,营造干净、柔和、轻盈、富有少女感的调性;结合品牌愿景为方向思考,在空间结构上采用圆形、弧形、椭圆形等较为柔软的几何图形作为穿插,配合空间的结构通透感,运用自然采光的手法,让整体的环境氛围变得更加柔和。
▼大面积落地玻璃窗将自然光引进空间,提高整体空间的氛围感 ©DPD香港递加设计
STARTING · 打造梦想世界
业主兼品牌创始人是一位95后女孩,她梦想着生活在爱丽丝仙境般的梦之国度,但对办公空间要求具有“现实”的前瞻性,能迎合未来的办公趋势,对未来充满着向往和憧憬。设计师认为,面对未来,让空间更具灵活性尤为重要。本案最终舍弃了传统的稳坐于座位、面对电脑办公的模式,以活动、线上互动、直播、线下头脑风暴、线上远程会议等代替了传统的坐班、座谈、会议等,并利用空间功能来促进品牌销售和产品的运营。
▼快速高效的头脑风暴会议,不但能提高工作效率还能加快工作进度 ©DPD香港递加设计
弧形半开放会议室用于内部头脑风暴和线上远程会议。“半开放式”对方式作为对外输出形象和品牌内容的关联点,为办公空间的动态展示体验画龙点睛。天花上特殊设计的圆形灯饰装置呼应了设计主题,大面积柔和的灯光让环境更加舒适。
▼会议室 ©DPD香港递加设计
▼圆形灯饰呼应设计主题,提供柔和的照明 ©DPD香港递加设计
灵活的办公空间体现在任意一个区域,不会只针对一种功能需求来安排,比如超大的培训室可容纳上百人,采用多媒体功能展示为主,既可作为培训功能,还能做线上销售推广、活动策划等。
▼培训室-大型直播舞台功能分析图 ©DPD香港递加设计
▼在大型的空间中设定多功能效果,提高空间的可利用率 ©DPD香港递加设计
如今的企业越来越重视员工对工作氛围的感受,在空间设计上需要更人性化,休闲区也成为重要的构思区域——内外兼并、满足内部需求的同时,还能作为品牌传播、线上直播、自拍打卡、活动开展以及客户休闲洽谈区。
▼休闲区不但用于员工日常放松,还能在此举办小型活动带动品牌传播效果 ©DPD香港递加设计
▼自拍区作为一个品牌形象的打卡位置将品牌和产品相结合通过线上传播推动品牌传播效应 ©DPD香港递加设计
传统上,1000㎡的办公空间会安放工位100个左右,而这个项目考虑到其业务是以线上销售为主,设计上刻意减少了办公工位,只安排了30个左右。员工更多地采取手机及手提笔记本这类灵动性高的办公工具,提高工作效率。
▼灵活性强的办公环境模式,采用无间隔板办公桌方便沟通,降低工作效率慢所消耗的成本 ©DPD香港递加设计
董事长每天参会及线上办公的时间相对较多,其办公室的设计更需要安静舒适,能让人沉静思考,风格更偏向轻盈、通透、和谐,采用简素的肌理材质和软装为空间添加质感氛围。
▼董事长办公室经过一天的繁琐工作,在此刻终于安静下来让身心得以放松 ©DPD香港递加设计
AWAKENING · 呈现极简美学
“少女打开了一道光之门,梦境初醒,恍如隔世。少女心中触动,仿佛在梦中已经寻找到她所憧憬着的梦境国度”,整个空间巧妙地运用同种色调,通过不同材料体现不同质感,粉红色艺术漆增加肌理感,绒布软包材质体现柔软,大面积留白让空间更加简洁干净。
▼白色的走廊 ©DPD香港递加设计
▼女孩轻轻推开粉红色的门,仿佛将要进入梦境国度 ©DPD香港递加设计
▼项目细部 ©DPD香港递加设计
未来,新型办公室还有很大的发展空间,办公空间的应用和模式也一直都在改变,设计团队更多的是对未来这一方面的挖掘和研究,让空间不再拘泥于传统模式。怎样将空间变得更加多元以及具有前瞻性,是DPD对办公空间设计的挑战和突破。
▼项目材质图 ©DPD香港递加设计
▼项目平面图 ©DPD香港递加设计
项目名称:MOTTOES上海办公总部 项目类型:设计 · 工程 · 软装执行一体化 设计范围:空间设计、软装设计、灯光设计、导视设计 项目地址:中国 · 上海青浦 室内面积:1000㎡ 设计时间:2020 年2月 完成时间:2020 年6月 设计总监:林镇、Gaby Teng 设计团队:扶艳荔、罗安琪、李梓健 工程团队:莫自豪、黄林辉 施工团队:杭州华昱工程有限公司 · 江爱林 主要材料:艺术肌理漆、人造石、烤漆、绒布 软装设计:扶艳荔、莫思敏 软装品牌:Grado、Tom Dixon、Ekstrem、SET studio、本土创造、野兽派 项目撰稿:龚妙君 特别鸣谢:Grado团队、吉水灯光、塑影艺术 文稿翻译:刘嘉欣


动线很舒适