阿波罗湾屋坐落在海湾边缘的植被之上。它为业主提供了一个休闲的海滨居住地。设计理念是通过使用多个受遮蔽的平台,提供便捷的内外空间,提升流动性的同时与外界产生视觉连接。
 
 
场地上已有的雪松木小棚是这个项目设计的主要驱动,并且被完好保存在了新加的不对称钢结构下。新的空间围绕小棚而建,这些空间都充斥着斑驳的光线和倾斜的墙壁,与原先的老旧封闭的直角房间成对比。新框架的几何形状如同一张有着许多层的帐篷,轻盈温柔地覆盖着小棚。室内的材料颜色干净浅淡,而外部的材料则受到了海滨场地的影响。
 
 
 
 
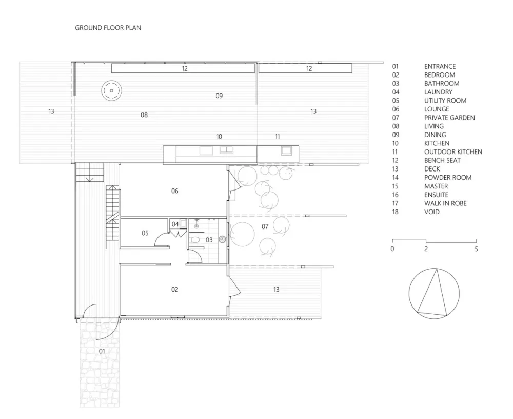
主要生活区域围绕一个悬空的壁炉,烟道往上延续到主卧室。从这个主要空间望出去,落地窗形成一个广阔的取景框,捕捉了附近的植被和跨越水面的远山。生活空间的尺度被两头的室外甲板拉大。
 
 
 
 
 
 
 
 
 
 
 
 
 
 
 
 
 
 
 
 

 
 

 
 

 
 

 
 

 
 

 
 
 
 
 
 
 
 
 
 
建筑师 Dock4 Architecture
地址 澳大利亚
类别 独立住宅
主创建筑师 Richard Loney
设计团队 Sebastian Young, Kirsten Fox
建筑面积 125.0 m2
项目年份 2018
摄影师 Adam Gibson Photographer



学习好资料