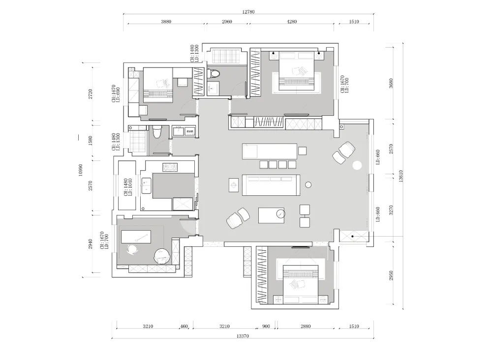
总体看下来,结合业主需要,房子的户型上有些不足。 ○ 入户的收纳不够充足; ○ 客厅电视背景墙太短而且被次卧室门分割; ○ 客厅和餐厅整体错位; ○ 主卧L型衣帽间尺寸利用率不高; ○ 北边的两个房间,厨房,卫生间干区都很小; ○ 南次卧原始结构规划不合理。 最大的劣势在于看上去每个空间都显小,有孩子有老人的家,储物空间必须到位,四个房间都要保留,朋友也很多,需要六人以上的餐桌活动区。
为了弥补原有户型上的不足,在结构上做了些改动。 ○ 拆除了之前的衣帽间你,选择横向衣柜,两个衣柜分别可以摆放不同的衣物,解决了公共空间不流通的问题,改变传统客餐厅布局。就餐人数增大,观影聊天一应齐全。 ○ 将次卧室的门洞开到靠近阳台,确保客厅的电视背景墙长度,选择隐形门保证统一性。 ○ 打掉阳台的原本移门和中间的墙体,把阳台规划到客餐厅,除了晾晒,活动区休闲区也很大,选择遮光窗帘,保护晾晒隐私。 ○ 洗衣空间放置在外卫的干区,不影响淋浴等功能区的使用,阳台也保留洗衣机,两个洗衣机增加实用性。 ○ 主卧室背景突出的承重柱,利用做展示区,同时也可以放置水杯,手机等物品。 ○ 南次卧在预了一米八床之后,其余空间充分考虑到收纳,将原有储物间的部分区域定制了柜子。 ○ 儿童房扩大的空间做一组衣柜,飘窗打掉后做储藏和书桌使用。
改造前:玄关
整个过道整体往南移动,扩大厨房,卫生间干区,两个北卧室的面积。
改造前:客厅角度1
改造前:客厅角度2
电视背景整体被破坏,考虑到统一性,同时取消原来次卧室狭小的衣帽间,开门放在靠近阳台的位置,增加了实用性,美观性。
改造前:厨房
喜欢烹饪,原来的厨房尺寸不够用,所以墙体拆除后往南扩大,扩大后除了双开门冰箱,高柜也可以放在里面,增大了公共空间,全部的操作都可以在厨房完成。
改造前:餐厅角度
改造前:主卧1
改造前;主卧2
改造前:书房
改造前:儿童房
改造前:阳台
改造前:卫生间
主卫需要一个浴缸,所以在包管道的时候我们做了提前的预留,浴缸也是刚刚好放置。
业主说:
因为是自己新房,所以在选择设计师上面花了很大功夫,前前后后看了十几家公司,最担心装出来就是买家秀和卖家秀的巨大反差~认识老李是陪朋友过来看方案,初次见面,交流了自己对家的要求,他拿着户型图随手一勾就把空间做了合理的区割,就他啦!随后一路从硬装,柜子,到家具,到软装… …每个环节都可以见到他的用心,每个环节都和他沟通,我算过他出现在我家工地不下20次,期间在很多环节考虑到装修预算,挑选的东西都是物美价廉,很为我们着想,省下来的钱远远高出设计费,从陌路到朋友!
毕业了,老李说到目前为止他就要真的从这个家撤场了,下次再来就是蹭饭了,看着自己的新家,每一个地方都是喜欢的样子,很幸运与冠程团队和软装师怡函相遇,才有了新家的落成!

