中国 上海 玖玺销售中心
本案项目位于上海市闵行区,处于远期规划中的居住生活区,西侧是生态绿地,风景环境优越,属于低密度住宅区。
上海这座繁华城市的瑰丽面孔在社会发展的进程中呈现出人文进步的独特气质,矩阵早已深知它的底蕴深厚,也在寻找它独有的文化空间体系,上海·玖玺由金地操盘设计、碧桂园摘牌,双方联动合作打造独有的人居气质。在本案设计中矩阵以禅的信念与境界结合着上海的城市气质,以简素之美诉东方明珠的辉煌高雅。
矩阵在本案项目设计中着重保持原木的素色和石材等其他材质清晰的纹理,利用简素的物体和天然材料所营造的室内空间,空间感受是平和安详的,超然物外,精炼的视觉美感也迎合了禅意空间的主基调。 软装在东方禅意的主基调下大胆融入棉麻布艺与丝绒皮革增添空间层次感,同时配以东方气质的人文艺术品,从艺术多维的角度重构空间极致表现。
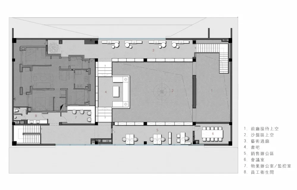
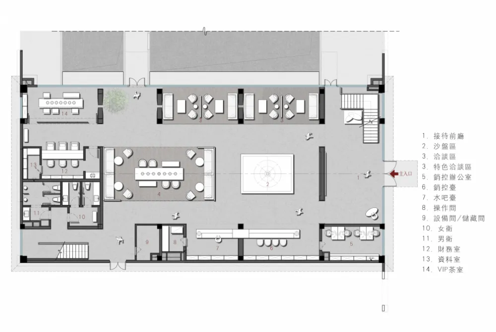
从建筑一层进入空间内部,接待前厅保持着室内中性的基调,注重设计的纹理细节。 自顶部向下延伸、贯穿分割空间的艺术隔档装置来自德国艺术家,作品运用了光和影呈现出材质新的特性与结构,反映了不存在与存在之间的关系。镜面的细节将室外的光景代入,增加空间的光影;透过底部流动的大理石造型能窥见内部的沙盘的一角,减轻整面墙体的厚重感。
在沙盘区能一眼收尽洽谈区与水吧台,甚至能窥见二层艺术过廊的秘密空间。 以日式洗练素描式的禅意空间风格为主题,原木素色环绕着空间上部与墙面,不同的排列角度和方式带来层次感,自然色的哑光地面铺叙着东方气质,墨色水波纹的水吧台与模型台底座相呼应,引入更多水动禅定的意象,一呼一吸,一吐一纳之间,感受自然的韵律。
从接待前厅上到二层艺术过廊,原木隔板将过道分割,层层渐入至尽头的延伸空间里光影秩序的变化宁静美好。
自然风化质感的深色石材地面与其他区域成对比,超然脱俗,时间流逝的痕迹都了然于中。
软装设计中棉麻皮的色彩选择都回归大地色系,艺术摆件在空间情感基调中起到至关重要的作用,或有着斑驳的岁月印迹,或是带著文化情感的实木雕花,营造着绝对禅意的高雅格调。
在靠近过道与阳光的地方,矩阵无花花艺将绿影带进这方禅意空间,光从树叶中漏出洒在桌面,光斑点点,随时时间变化,透出静谧的惬意,设计瞬间有了鲜活的力量。
如同宇宙中星球航行的轨迹,总是在环绕着某个原点,周而复始。在如此禅意空间内,人们遵循着某种方式思考,在繁华瑰丽的城市表象下,回归简素之美。
— 项目名称:上海·玖玺 业主单位:金地华东-碧桂园 项目类型:销售中心及会所 销售中心面积:644 ㎡ 销售中心硬装造价:4500 元/㎡ 销售中心软装造价:4500 元/㎡ 地下会所面积:525 ㎡ 地下会所硬装造价:4500 元/㎡ 地下会所软装造价:2500 元/㎡ 硬装设计:矩阵纵横 软装设计:矩阵鸣翠 空间摄影:释象万合 主要材料:灰摩卡石材、奥兰多大理石、砚石、木饰面、隔断实木、木地板、墨黑拉丝不锈钢、仿木纹铝方通、墙纸 完成时间:2020.06
“Matrixing纵横”创立于2010年,是以提供室内硬软装一体化设计服务为目的的高端设计品牌。作为Matrix Design矩阵纵横旗下三大设计产品线之一,Matrixing纵横涵盖地产、酒店、豪宅、办公、商业、康养等设计业态。经过10年的发展,Matrixing已成长为兼具业界影响力和当代代表性的中国设计品牌,并向着家居产品设计生产、新材料研发与生产制造等产业纵向一体化发展。Matrixing积极回应可持续发展的人类需求,针对资源、文化、城市、居住、商业和市场等要素贡献前瞻性地解析,用智慧和责任展示设计的魅力。


点点赞赏,手留余香