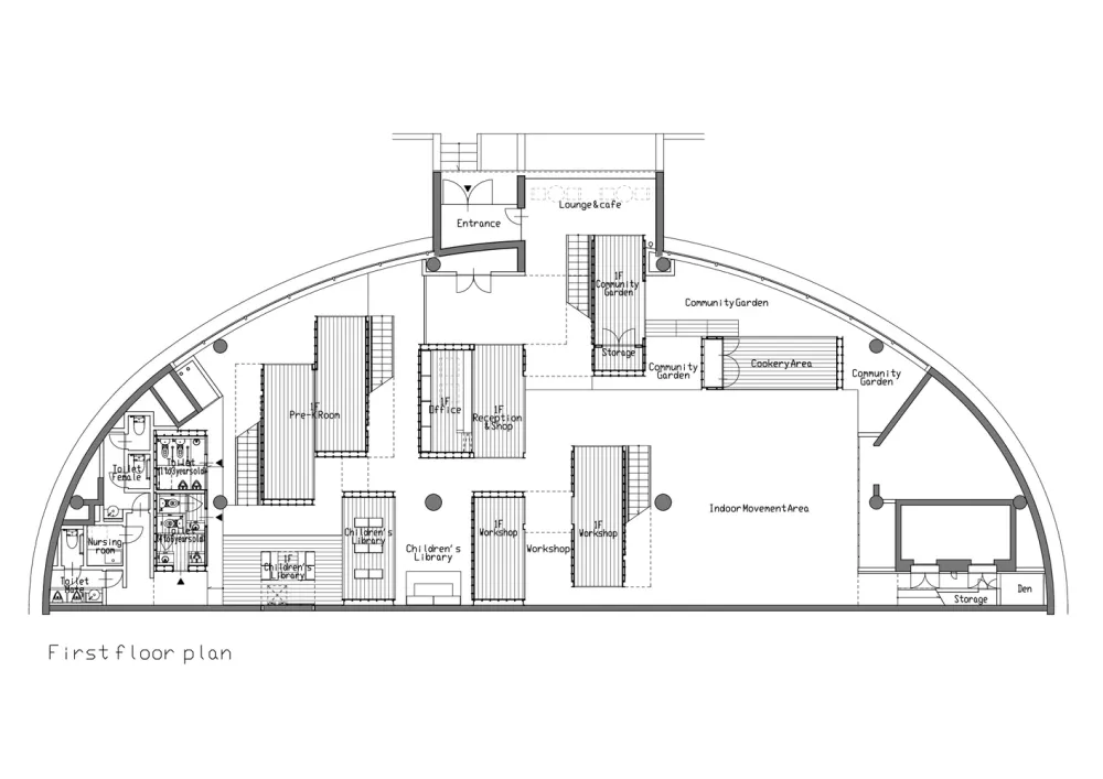
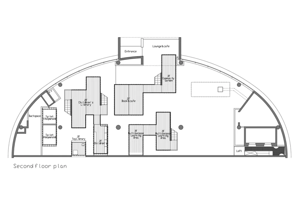
此项目是一个儿童保育和学习中心,位于北京市中心豪华小区的一栋高层公寓里面。该中心主要为当地的年轻家庭服务。从严格意义上来讲,也并非是完全为儿童服务,它同时对家长和周围社区开放。此儿童中心是一栋半椭圆形建筑楼,高为4米。
我们以“城市中的街头游戏”作为我们设计的核心理念,并期望在室内设计中将老北京街道的的感觉融入进来。为了满足不同的需求和孩子们的喜好,我们还对空间进行了有机的分配,并在其中摆放了一个集装箱模块。
集装箱模块是开放式的,这样可以让孩子们自己很容易的识别每个模块空间的功能。此外,该空间还可以根据设备的需求和教学课程的要求安放新的模块,或是扩大或是缩小。
这个集装模块就像是建筑物,中间的过道就像是街道。而这些过道的亲密度也是这个原本开放的空间中增加的一些私人元素,这是孩子们喜欢的,同时也可以用于需要集中注意力的活动。集装箱的上部添加了扶手,形成了一个露台阁楼,这让整体体量更具有活力,因此也适合创造性的学习和玩耍。
模块在设计中保持了极简主义风格,只使用了两种颜色;外墙是深灰色的,地板、墙壁和天花板是木质的。此外,模块化结构还有另外一个好处,它可以简单快速的提供材料,应用和维护。























建筑师 : HIBINOSEKKEI, Youji no Shiro 地址 : 北京,中国 建筑面积 : 432.0 平方米 项目年份 : 2018 年 厂家 : Muuto
版权声明:本文内容由用户自行发布上传或投稿由设计芝士代为发布,版权归原作者所有,设计芝士不拥有其著作权,亦不承担相应法律责任。如果您发现本站中有涉嫌抄袭或侵权的内容,请点此提交工单进行举报,一经查实,本站将立刻删除涉嫌侵权内容。

