我们用暧昧与冲突表达“NOT SWEET不甜”的甜与不甜。
社区商业是我们生活的一部分,但千篇一律的形式却没有丝毫精彩,我们总是一如既往的忽视萦绕在旁的这种存在。“NOT SWEET不甜”的出现就是要打破这种常态,以一种平凡且寂静的姿态地隐匿于周遭,毫无矫揉造作的融入我们日常的生活。
小懒桔旗下品牌“NOT SWEET不甜”是一个充满戏剧性的店名,面对甜与不甜本身的矛盾性,我们以什么样的方式介入,以及对空间的思考提出新的要求。
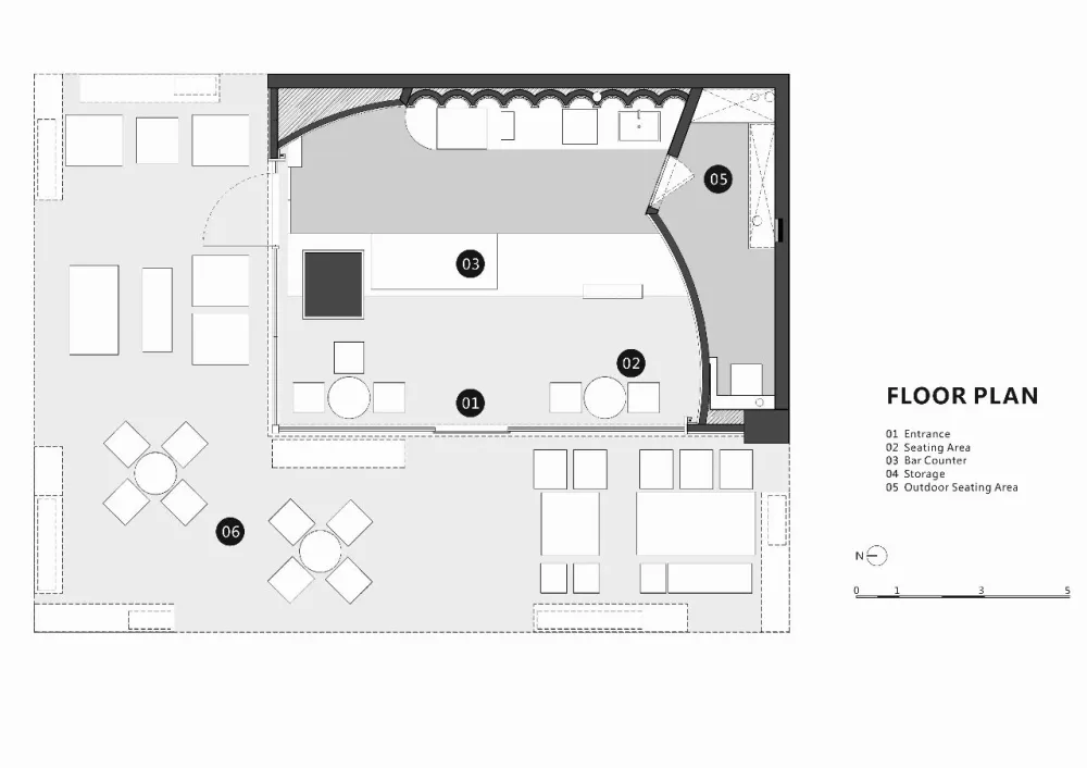
对内,在不足50㎡的空间,不仅要满足甜品店具备的所有功能,还需要化解一根单边长1米的承重柱对空间的干扰。对外,不仅要体现品牌意志还要尽量避免与周边环境产生冲突。
我们构思,从品牌本身出发,以“桔子”的几何形态具象的在空间中形成符号化的表达。
空间以一个小尺度的简单开放的盒子为基础,“桔子”作为另一个几何体嵌入盒子体内,挖空两个几何体之间的重叠部分,使之成为新的使用空间。
甜品展示、咖啡机和服务台组合成一个整体,底部内退形成悬空的横向体块,再和竖向承重柱形成交叉,共同组成空间中一个新的结构体,造型如丝带般轻盈的悬浮空中。不仅解决了功能需求,在视觉上增加了立体感的同时也化解了承重柱对空间的干扰。
完成空间的塑造,我们运用灯光、材料和色彩来暗示“NOT SWEET不甜”暧昧与冲突。
球形空间中的暖色光线通过橙色肌理墙面所产生的漫射让结构体块和材质随着人的视角变化时而模糊时而清晰,空间氛围温柔暧昧,与黑色火山石外墙表皮形成冲突。
项目名称:NOT SWEET 不甜
设计公司:Geemo Design 治木设计
设计团队:石朝思、易毅、杨巧
主要材料:涂料、石材、黏土砖
完工时间:2020.06
Geemo Design 治木设计,创立于2016年,专注于室内设计和改造。治木坚信每一个项目都有其独特的自身背景,设计从功能出发,通过对光线、材料和技艺的研究,并融入日常对文化、生活、艺术的观察和感知,进而思考人与人、人与空间的关系,探讨在现有框架下重新创建空间并赋予空间新的形式的可能性,以更多元的组织方式积极开展设计实践。
易毅先生(左),石朝思先生(右)
2016年石朝思先生联合易毅先生共同创立Geemo Design 治木设计。石朝思先生以非专业身份介入室内领域,通过多元的视角与易毅先生共同探讨设计的更多可能性。易毅先生毕业于四川美术学院,以日常对文化、生活、艺术的观察和感知融入设计理念,认为设计的精彩,在于设计之外。
重庆 治木设计 / GeeMo Studio 创始人 / 设计总监
中国建筑学会室内设计分会会员(CIID)
重庆青年设计师俱乐部成员
重庆市建筑室内设计联合会会员
2019-2020 40 UNDER 40中国(重庆)设计杰出青年
红棉中国设计奖 最美现代空间奖 室内设计奖 最美奢雅空间奖
2019第三届中国室内设计新势力榜西南赛区重庆TOP 10
中国新商业空间大奖(2019 – 2020)杰出新商业空间设计师TOP10
金瓦奖杰出青年 金瓦奖优秀商业空间


?