建筑物一层用厚重的夯土建造 © JSPA Design
本项目位于湖州与杭州之间的小城镇埭溪,坐落于山脚地势平缓的半坡上,四面环绕竹林,所见之处茶海漫山。整个区域未来将包含一片面积广阔的玫瑰种植园,以及度假酒店、矿物疗养中心和芳香博物馆。作为接待使用的小体量建筑,玫瑰庄园精品酒店是整个规划的第一阶段,设置有服务台、餐厅、多功能等公共区域,以及少量客房。其余项目将在其之后陆续建成,逐渐形成一个建筑群体与自然环境相互融合相互理解的整体。
▼项目概览 © JSPA Design
▼建筑外观 © JSPA Design
场地已有的独立建筑采用了浙江传统的建筑形式,我们选择保留此现有的老建筑,在旁边安置新建筑与之毗连。设计灵感由此而生,采用浙江当地古老而传统的建筑工艺和材料,寻求一种合理而有效的方式可以更适合这片场地,并由此为出发点选定了本项目的最终位置。建筑物与场地现有的农场垂直分布,使农场与两栋建筑之间建立起对话,同时又运用平台和游泳池使两个实体相连接。
▼建筑物与现有的农场垂直分布,又运用平台和游泳池使两个实体相连接 © JSPA Design
▼游泳池及平台 © JSPA Design
建筑设计概念来自于典型的房屋形式:坡屋顶和四面围合的建筑墙体。然后采用了四个钢”盒子”来影响此建筑. 其中主要的一个以八米高的体量切开建筑物,创造了一个室外流通空间, 可通往二层的户外阶梯楼梯和画廊。其他三个盒子用于组织建筑外立面以及室内外之间的关系,将繁杂的事务框在视线之外,创造出一个与景观亲密接触的最佳视野空间。
▼室外流通空间 © JSPA Design
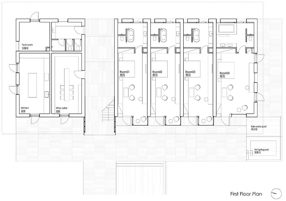
建筑物一层用厚重的夯土建造,搭载二层更简洁轻盈的建筑形态,内包含4间客房。夯土墙可以创造一个良好的保温隔热空间,并起到充足的隔声功能,同时,可以自然形成外立面和房间内墙上的特殊纹理。它既是一种合理的建筑方式,又是对当地建筑的微妙参照。
▼建筑物一层用厚重的夯土建造 © JSPA Design
▼外墙细节 © JSPA Design
▼一层客房内景 © JSPA Design
▼内墙具有特殊纹理 © JSPA Design
▼客房看向泳池的角落 © JSPA Design
▼墙面细节 © JSPA Design
二层设有会议室和起居室。这一层建筑物的形态开始变得轻盈,外立面使用原色实木整齐铺设。实木部分可以设计为富有变化的打开部分,从而在打破正立面封闭性的同时,又极具功能性:在一层设置为局部打开,作为一扇进入室内空间的自由封闭门,而到二层,设置为全部打开,作为建筑通风的同时最大化的引入景观。
▼通透的二层空间 © JSPA Design
▼厨房及会议室 © JSPA Design
▼起居室 © JSPA Design
屋顶通过木椽与钢结构的组合结构来实现超长跨度,结构外露的形式,为项目的公共区域创造自由阔达的空间体验。建筑的南侧同时设有有顶露台,为使用者提供视野开阔的观景区。
▼屋顶结构外露 © JSPA Design
▼南侧有顶的露台 © JSPA Design
▼场地平面 © JSPA Design
▼建筑立面 © JSPA Design
▼建筑平面 © JSPA Design
▼剖面 © JSPA Design
▼屋顶结构 © JSPA Design
地理位置:浙江省湖州市吴兴区埭溪镇四季玫瑰庄园 业主方:四季玫瑰庄园 设计方:JSPA Design (卓汉苏文建筑事务所) 主持建筑师:Johan Sarvan (法) / Florent Buis (法) 场地面积:240亩 建筑面积:700m2 项目时间:2018 – 2019年 工程顾问:蒋杰

