生活在繁忙都市中,你可曾向往宁静致远的生活?
闲适写意、悠然自得,温润又克制
该项目位于日本镰仓市的山丘顶端,由
现代与传统日式设计的融合
,将居室与户外环境无缝衔接,现代日式感十足。
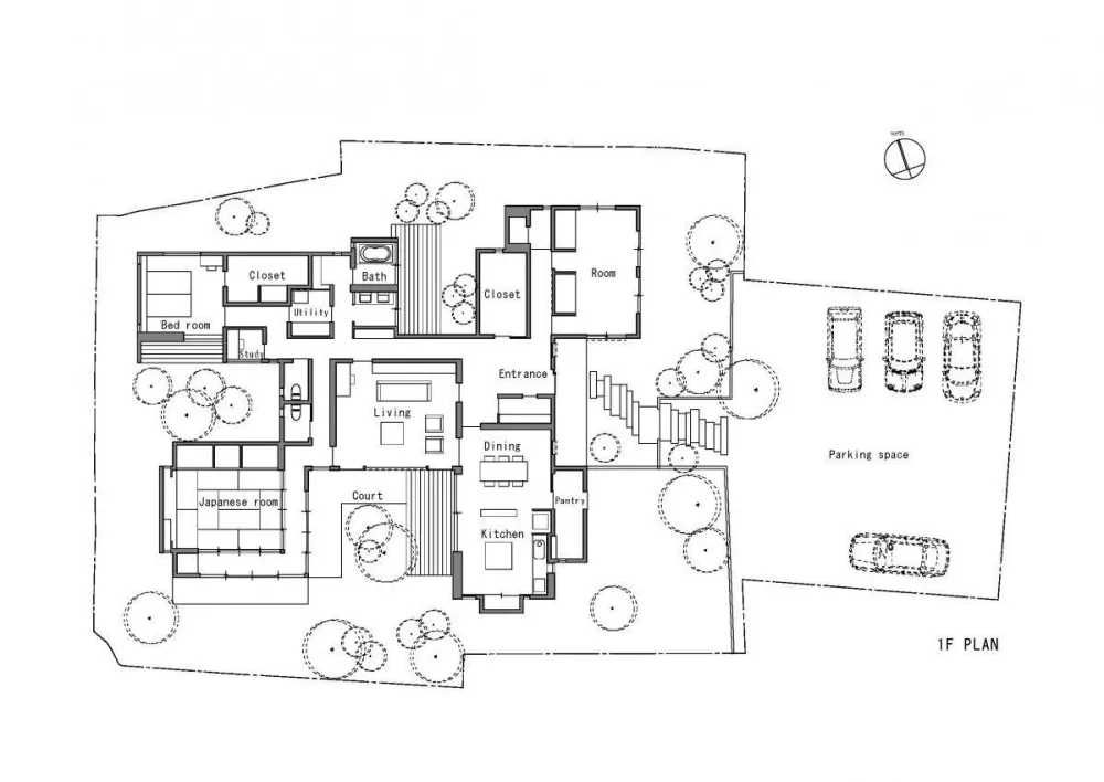
首层的和室呈三面采光布局,
,设计师优先使用了花岗岩、日本纸、黑色灰泥、木制栅格和百叶窗等
,现代陈设与传统日式空间相结合,感官上
,以传统的技术、方法和材料,打造出了更具
玻璃与实墙虚实交错,模糊了建筑与自然的边界。
,可以一览建筑周边最美的风景。
,如同繁忙都市里一片宁静乐土。
,墙上的挂画是点睛之笔,为简单的
的空间氛围。阳台绿色的马赛克瓷砖与客厅原色橡木被日光连结,
。绿色的吊灯和玻璃花瓶,为空间注入几分
独立,行走其间移步异景,别有古典氛围。
与阳台相连,两重隔断错落分布,在玻璃砖的映衬下,呈现出
经过特别的设计,拱形与原木的组合,将
项目位于松山山手幽静的住宅区,由奥野崇建筑设计事务所设计。
作为日式风格最经典的元素,
(坐在椅子上表演的茶道)
,就可以创造出一条可供客坐的走廊。
设计将首层与二层相连,
经典质朴的材料,往往拥有无可替代的魅力。
每一个开口都面向不同的户外景观
利用宽敞的场地优势,设计师将五
,同时也确保了屋主的隐私。
与客厅一墙之,利用拉门可分成不同的空间。这里同样可以欣赏庭院美景。
屋檐与建筑外墙之间的空隙形成了一个走廊空间,
每一组框架内都是一副风景画
协调空间的私密性与开放性
过滤出柔和的光线,营造更好的睡眠空间。
相结合,形成了这个住宅
用最淳朴的日式风,寻找生活真谛。

