HISTORY IS NOT A SAMPLE
BUT A CONTAINER
历史不是范本,而是容器
图片 | 鼎合设计提供
在世界文明史上,中国的“瓷器”不仅是技术的高峰,更是艺术的“极境”!一千多年前的“宋朝”,因为赵氏皇族的个人诣趣,使得中国人的物质生活和精神世界都富足而丰沛。“五大名窑”复兴和繁荣,更是开启了中华民族的文化与经济的峥嵘岁月。至今,我们都津津乐道。
河南禹州神垕镇的“钧瓷”,“始于唐、盛于宋”,有别于盛行于世的“青瓷”,以“润”、“活”、“纯”、“变”、“厚”为特征,吸引了追求极致之美的赵氏皇族和士大夫的目光。在神垕镇设立皇家御制瓷器的“窑口”后,一时间,神垕镇人头攒动、“钧瓷”声誉鹊起。历经千年的沧海桑田,曾经盛极一时的“神垕古镇”已经落寞,唯有“钧瓷”千年不倒,在文玩界至今盛传“家有千贯,不如钧瓷一片”的美誉。
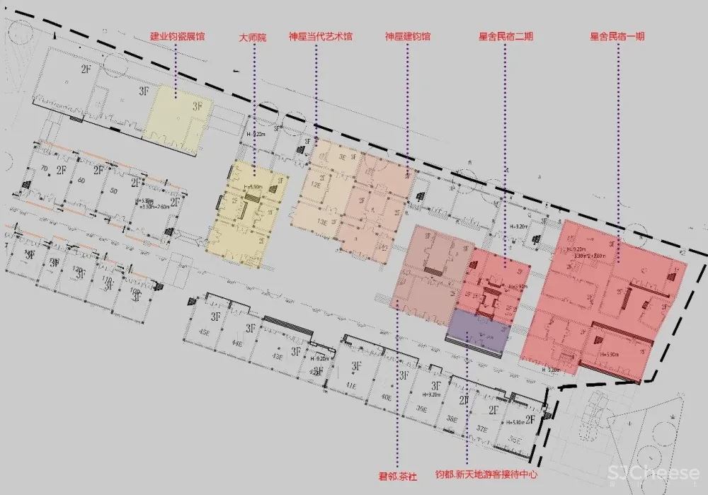
2019年9月,河南建业集团历经十三年的规划、设计和招商,将古镇唯一的老街梳理、建设成神垕天地街区。它占地33.3亩,建筑面积1.7万平方米,最终将形成一个集历史体验、文化旅游、特色商业为一体的钧瓷历史文化特色商业步行街,这是建业集团的第一个镇级项目。
河南鼎合设计担纲设计了建业・神垕天地项目集群的游客接待中心、星舍民宿、君邻茶社和建钧艺术馆等几个最具商业与文化价值的空间的设计。
面对委托,鼎合设计清楚地意识到:这几个不同类型的空间,虽然极具文化与生活的含量,却过分偏重于面面俱到的功能诉求。如何在文化价值与功能中获取平衡,成为方案中鼎合设计事务所设计总监刘世尧、孔仲迅以及孙华峰必须要破解的难题。他们反复思量后认为:尽管“神垕天地”项目是因为“钧瓷”而发端的,但是,它必须面对当代生活。曾经的历史,不能成为设计的羁绊,而只能成为容器,承载当今的生活,空间才是有生命的活物。因此,设计最关键的不是形式问题,而是设计师如何看待在传统下的当代生活。
设计师几次探访项目空间的所在地,古街的小径吸引了他们的目光:在现代化强烈的仿古建筑下,一条古街,恬静平淡,富有韵味的石板路,仿佛在诉说一段历史,斑驳的记忆。于是,一种“师古而不泥古”的意识飘荡在设计师心中。正如美国人类学家休斯顿・史密斯所忠告的那样:世界是一座桥,走过去,但不要在上面盖房子。
神垕,一座跨越千年的钧瓷之都,虽然昔日繁华已经淡去,但“钧不成对,窑变无双”的美学记忆还在,设计师的任务是将它提取出来、融入今天生活。
神垕天地游客接待中心,是一个完全开敞的空间,结构与材质也都以最真实的模样呈现。空间围绕“工坊”氛围为基调展开,给历史以敬意。人们可以将旅行体验与日常生活区分开来。长桌、金属与木架并置成工作案台式,仿佛看到古代匠人的专注和笃定。手工拉胚与素烧器物作为陈设,让工坊的气息浓郁,钧瓷之美自然的融入空间之中。
为了更好地融入传统的生活方式,住下,成为当代生活中一种重要的体验方式。为此,鼎合设计在这里用“星舍民宿”表达了对“深度体验”的理解。
“星舍民宿”的建筑主体原本为独立的四栋商业小楼。设计师考虑到建筑空间是为了满足现代人居住使用和传统生活隐喻而刻意为之,因此,设计师在尊重建筑本身构造的前提下,将空间进行重组,融入现代人居住使用和对传统生活的隐喻,通过对材料、空间、光影的运用,形成一个既对比又融合的“多义空间”。
四栋小楼自然围合,形成属于北方城市的居住庭院,在保留建筑的围合的语句中,外向墙面形成封闭、坚固、对自然产生强烈的抗拒姿态,表明中国文化中内省的意识。在庭院内部,设计师通过对廊道、窗户梳理与调整,使内部开阖相宜,家人的亲切感怡然。窗前凭栏而望,远处的楼头画角 近前的小小院落尽入眼底,传统城市的画意与章法让我们感受到古镇另一番人文自然。
进入室内,涌入眼帘的是陪伴我们千百年的砖木结构房屋格局,为了使现代人感觉到一丝新的视觉冲击,设计师转换了内外关系,用彼间的老砖砌此间的墙,羊皮灯与纱帘后的格子窗使光线柔软了,让人感受的空间里的包容和时间的从容,住居多了些许隐逸的奢华。
对于东方的美学意义看来,“茶”空间,既是中国传统的社交场所,也是具有个人符号特征和美学意趣的“灰空间”,是东方的“静”与“净”叠加与结合。因此,在设计师在紧邻“星舍民宿”侧畔策划的“君邻・茶社”既是住居的回旋与延展,也是传统的美学意识的苏醒。
在这里我们看到在中国北方城镇,有一种不同于江南士大夫阶层的审美与社交方式:旧木板、老门扇、方凳围着圆桌、沙发背靠不同书画的屏风,围坐在茶桌前的三两茶友,无论谈天说地,品味着茶香意趣,一切都是自然、自在的,于平淡中有惊喜,在朴拙浸漫出人性的温暖。正如陆游所云:叹息老来交旧尽,睡来谁共午瓯茶。
经过传统文化和生活方式的浸润后,我们回到现实、回到现代语境中的“钧瓷”。设计师在“建钧艺术馆”中,以地域文化为根源,用现代手法让传统与当代对话,空间被刻意“留白”了,营造出静谧、平和、富有韵味的艺术氛围,淡然间,“钧瓷”用不可复制的色彩变化,显示出气象万千的格局。
在这里,当代工艺生产的钧瓷,虽然色泽依然斑斓、润泽,但是已经不是皇家的玩物,它具有了更多的当代气息,艺术是主体,空间仅为陈列的容器,给予最大可能的转换。
好的设计,应当构建人文、空间、和服务交织的场所属性,需要善于挖掘令人难忘的记忆点,展现出当地文化和小镇生活的场景,达到人与空间的情感关联。就这个意义上来讲,“神垕天地”值得借鉴。
ABOUT PROJECT
:建业·神垕天地 开发商:建业集团 空间设计:河南鼎合设计 设计总监:刘世尧 主案设计师:孔仲迅 参与设计:徐延龙 黄可 孙华锋 软装设计:大境陈设 照明设计:S.C.L照明设计 摄影团队:如初建筑空间摄影 设计时间:2019年 项目面积:3345㎡ 项目所在地:河南省禹州市神垕镇
ABOUT DESIGNER
河南鼎合建筑装饰设计工程有限公司
河南鼎合建筑装饰设计工程有限公司

