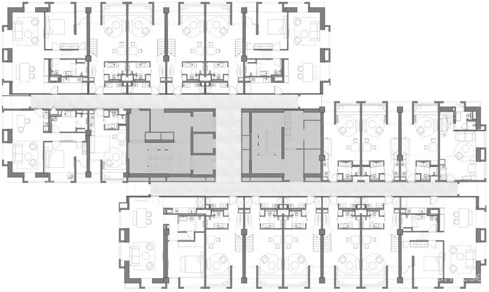
相互连通的空间,通过颜色和木门区分
太棒了吧!年轻人共享相同兴趣的空间,让我们的室友和社交越来越“垂直”也越来越紧密了!当下世界各地仍处于疫情特殊时期, 然而AIM恺慕与Cohost后社合作建成的共享公寓,位于上海的张江科技园内。
该共享空间初衷于重构疫情之后的新世界,重新审视大城市年轻人住所和公共空间、及社区之间的关系。在疫情影响之后,他们到底需要什么样的共享空间?
00后已逐渐成为城市的消费主体。这一代年轻人更注重个性化和标签化,面积大小则退居其次。一个彰显个人性格和文化属性的空间,将成为未来住宅的趋势。
筑桥居•后社共享公寓中,并非将共享居住单纯作为一种实用性的考虑,更希望它是一种大胆的生活方式的选择。设计师希望租户们分享的不仅是厨房和客厅,也分享他们相同的兴趣爱好。传统合住模式“房间”是相互独立分割,在这里设计师更希望它是自由“连接”的。
在公共区域上,设计师通过一系列连续的房门将房间互相联通,好比串联的电路,门即是开关,过道即是电线,这些最终都将点亮每一个“灯泡”——功能空间。
不同的空间拥有各自的个性和主题,但又相互连接,产生互动。从绿房间透过过道和门,可一眼望清红色房间及黄色房间里同伴的各种活动情况。
木门开闭控制空间的私密性
空间巧妙运用木板门进行功能分区:关上木门,拥有各自活动空间的私密性,敞开后又连为一体成了一个完全开放的空间,产生更多的互动和便利。
合租过的人都清楚,共享居住空间总让人想起狭窄闭塞且混乱的宿舍!
但这里重新定义了共享公寓:4.5米层高的天花、复式挑高、每个房间都设计了飘窗,拥有充足的自然光,也延伸了空间。
最重要的是,筑桥居是为了真实的生活量身设计的。我们可以想象未来入住的年轻租客们,在某个夜晚一起烹饪美食、在五彩缤纷的空间敞开所有的门成为一个连通的大空间在此狂欢,和一群兴趣相投的室友尽情挥洒。在这里,共享居住不仅仅是空间的分享,它更是人的连接!
我想,这是年轻人目前最好的合住方式了!在有限的收入之下,不知道你是否有更好的设计想法献给身处异乡奋斗的年轻人们呢?
业主:上海挚信资本 运营方: Cohost后社 项目地点:中国上海 建筑面积:13410平方米 建成时间:2020 设计总监:Wendy Saunders,Vincent deGraaf 项目经理:徐心懿 项目建筑师:田炳玟 室内团队:陈卓然,朱彦文,李梦婕,蔡宁远,焦琰 软装团队:利佩珍, 胡萍, Michael Hankiewicz, Sowon Lee 摄影:Dirk Weiblen,Cohost后社
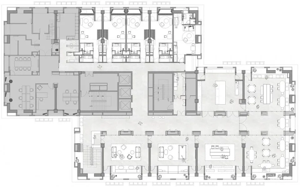
室内设计和软装包括服务式公寓157间客房,大堂、休息区、厨房、餐厅、公共卫生间、洗衣房。

