设计团队:李冰峰、尹莉丹、钟洁茹、许舒婷
陈设设计:王红娜、谢耿铮、吕思
项目面积:1518 ㎡
“真”向来要比“美”更重要
所以其艺术和居所是俯视和移动的
是超越形这层幻相及时空之局限的
旷世星辰的平面蓝色地球
更是梦寐以求的人居之境
泰州文卷、枯竹虚节,水墨书法等
让人徜徉在泰州艺术文化的理想之中
借墨竹枝叶局部合于斗室
辅以墨木桌子、古瓷、轻简的家具
恒定的自在感官让人舒适安逸
耐得住品赏,耐得住不断向前的时间
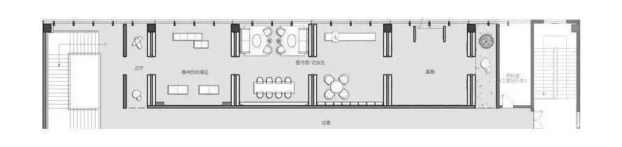
LITERATI SPACE
ANALYSIS DIAGRAM
在空间感知中营造江南特有的情境
同时在关键点和看似随意的笔触中
悄然提炼了抽象的传统美学元素
最大化地呈现泰州本土文化和美学内蕴

