底层右侧的小房间作为序厅©WenStudio 感谢 ONOAA STUDIO 对gooood的分享
建筑位于上海徐汇的法国梧桐树下的街道上,是一个由80年代砖混结构建筑改造而成的室内建筑项目。建筑共有两层,总面积200平方米,改造前身为一座2层的砖混结构办公建筑。作为法租界商圈的重要组成部分,永嘉路一带以更市井和绵密的方式组织起城市中的日常消费生活。
▼项目外观,位于种有法国梧桐的街道
上©WenStudio
▼咖啡厅立面©WenStudio
空间的拥有者希望在这样的环境中通过一个独立的空间进行经营。一个可以被扩展功能、重新定义的空间需求也因此出现 HASHTAG#cafe#space#shop 是集咖啡简餐、展览空间、酒吧和零售于一体的综合生活空间,这三个单词很好定义了整个空间。
▼室内空间一览©WenStudio
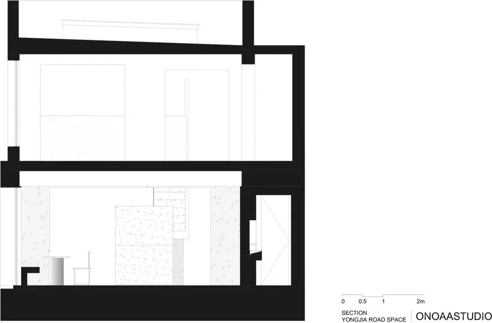
原建筑的二层部分略突出一层,通过一个隐秘的直跑楼梯在建筑的背面进入。改造设计首先将原有的体量关系进行梳理,使用简洁抽象的体量,将新建筑的二层部分推进,使底层突出。再通过颜色的区分将原有体量的“上大下小”逆转为新的形式。除了可以减少对街道的压迫感,也使人们在街道上可以更容易观察到二层的活动。突出的底层顶部设置了隐藏的排水沟,保证立面清洁的同时,为项目所处的场地带来了一定的陌生感。这种底层突出的动作可以被很轻易的察觉,但又不具备阳台等具体功能空间的尺度。我们希望通过这种抽象的操作给体验带来不确定性,而不仅仅是完成一个图像,这种操作在建筑内部同样存在。(改造设计外部与城市的关系)
▼空间轴测图©ONOAA STUDIO
为了适应功能的灵活性和保证建筑的结构安全,改造对原有建筑的基础和梁进行了加固,并在开口处补充构造柱,重新浇筑了部分的楼板。与其说是改造,新的结构更像是对原有建筑的一次修复。
由于城市管理的规定,改造后的店铺无法在建筑外部悬挂招牌,因此底层右侧端部的一小间房间变成了进入建筑的序厅,面向城市开放。店招与展览信息在这里通过电子屏幕和海报展示,也给客人躲雨和短暂停留提供一个有遮蔽的半开放空间。完全进入建筑后,人的视线可以一直贯穿到建筑的最尽端。三组被加固的“洞口”形成了主要的空间序列,洞口的边缘延续了室外建筑“下大上小”的操作,使用一个装饰性的薄边来消解梁的厚重感。尽端的开间放置了一张由白砂岩做成的大桌子,人们可以围着桌子进行不同状态的使用。矮凳被设计成矮椅背的墩子,举办活动时可被完整地收纳到桌面下方。
▼底层右侧的小房间作为序厅©WenStudio
▼从入口看向咖啡厅内部©WenStudio
改造保留了原有建筑的楼梯作为后勤通道,与此同时,我们希望在两个水平层之间提供一个通高的空间,既形成尺度上的差异,让尽可能多的街道和城市生活从视觉上进入室内,又可以解决顾客上下楼的流线。楼梯从下至上,通过三种颜色的材料,从黑色火山岩、灰色花岗岩到白色涂料,延续了室内外贯穿的色彩方案,即底部纯色,上部白盒子的策略。
▼空间中部设置楼梯,下黑上白©WenStudio
希望营造灵活的空间体验,建筑内除墙体外,所有的物件都被设计成独立的形态。从入口处可被环绕的吧台、脱离墙体的收纳柜、悬挂在天花下的空调出风口,到靠窗的长凳甚至以往尽可能被隐藏的干垃圾筒收纳,都被单独零散地放置在室内。在室内材料的选择上,尽量使用纹路较浅的、哑光的纯色材质,比如吧台的黑色热轧铁板和楼梯的火山岩材质,一眼看上去是一种单色的块面,靠近后才会显现出细腻的肌理。
▼黑色铁板制成的独立吧台©WenStudio
▼多功能区,座椅可以收到桌子下©WenStudio
▼从楼梯上俯视多功能区©WenStudio
为了在二层的端部营造自然的光线,改造去除了部分预制板屋面并浇筑了新的天窗,狭小的空间因此不至于闭塞不堪。除了一个可以用餐的区域和后厨外,二层尽端的三跨都被定义为展览空间,因此墙面和地面选择了更容易被反复修复的材料。“策展”的概念逐渐开始被商业场所所接纳,店铺的经营者希望用这样的空间作为艺术家的作品展示和为品牌活动提供场地。
▼二层展览空间©WenStudio
首层和退缩的二层分别用了不一样的材质,首层是希望相对粗燥,低调的质感,我们用了模仿混凝土砂浆质感的浅灰色质感砂,二层是纯白色的外墙涂料。建筑师希望让建筑外与室内看起来是一致的,室内功能也能通过室外观察可以分辨出来,所以同样的质感效果延伸到了室内,首层是米灰色的质感砂墙面,整个空间设计是极简的,低调而有质感的材质都是经过慎重的选择,石灰石地面,砂岩桌子,黑色的火山岩和灰色花岗岩组成的楼梯,“道具”的设计也是以哑光材质为主。二层还是延续了外立面的白色色调为主的空间,以展览空间为核心,白色墙面,灰色的自流平地面,都是展览空间常用的材质。
▼一层使用灰色哑光材料©WenStudio
▼材料细部©WenStudio
由于晚上首层要作为鸡尾酒酒吧使用,在一个极简低调的空间里,灯光的设计起了重要的作用,我们在首层墙体上与梁底做了一圈可调色的RGBW灯带和发光灯膜,并且设置成跟随音乐的变化而变化出任何一种颜色。白色就固定一种暖白光模式,晚上是幻彩色,一周七天都是不一样的效果。让这个白天低调简洁的空间到了晚上则变成色彩斑斓的鸡尾酒酒吧。道具化的布置增添了室内临时的、动态的体验,在夜晚,底层的灯光颜色随着音乐而变化,人们就可以在这些道具中走动交谈,而不必端坐在一个位置。
▼夜晚变化的灯光©WenStudio
在互联网时代,消费空间似乎难以逃脱网红打卡的图像式诉求,在店铺的设计中,我们也是用简洁扎实的当代手法探索一些图像之外的体验。
©ONOAA STUDIO
©ONOAA STUDIO
▼剖面图©ONOAA STUDIO

