中信泰富-仁恒置地海和院售楼处
Chongming Curtilage Sales Gallery
Chongming Island,Shanghai
工业革命后,人类有更多材料,有更快的方式去大量建造和复制弥天大厦,而我们始终不忘寻找重返家园之路,在城郊之处寻得一片净土,闭门听闻虫声鸟鸣,开门即是绿树青山。
坐落于上海市崇明岛的海和院售楼展厅,位于崇明东滩陈家镇板块的中心镇区——生态实验区东部,离中央生态湖泊集中规划的生活配套和湿地绿楔仅一路之隔,是东滩距离上海城区直线距离最近的低碳生态居住示范区,日常生活配套和具有在地特色的生态度假娱乐项目环伺四周,是极好的居住佳地。
“羁鸟恋旧林,池鱼思故渊。暧暧远人村,依依墟里烟。” 贴近自然,虫声鸟鸣,描述的恰是这里的意境,如同开辟一处城市的后花园,去拾我们记忆中失落已久的印象。
△ 影音室中的艺术装置
海和院展厅将生态大岛的质朴和淳厚的气韵结合现代的设计语言,以崇明岛的地理区位为先导来定义场地空间,量身打造一方去繁从简、返璞归真的岛居诗意栖居。“海上别院”是空间的设计主题,积聚了岛上水洁风清的特点,清寂与安然的气场与岛上的生态浑然天成。
从接待厅便开启了层高开阔的视野,顶面的选材采用和纸发光灯膜,拔高视线,带来了视觉上的震撼。墙面是平坦而无限延续的大地色,赋予空间天地与乾坤。空间没有做多余复杂的修饰,而是营造平衡与协调感,宁静深远。滩涂水岸与树木肌理中的自然符号,重现当代语境下的归园田居。
途经别有洞天的艺术前厅,进入宽敞明亮的洽谈区。座位区靠近庭院,径直往前通向远处的吧台。
阅读区借助下层庭院的采光与景观优势,带来很好的阅读与休息的条件,阅读区的座位也根据长远考虑,可以灵活组合,由书香与惬意的阅读环境构成了书吧浓浓的文艺气息。
进入二层,迎来的是更私密的就餐区域,分为茶吧,全日制餐吧与私宴的空间。空间顶面采用藤编墙纸的材料,结合崇明在地的风格,搭出木构结构,利用建筑的构成处理顶面和墙面的协调关系。天然石材与木饰面的选用,让空间的格调保持在自然而不失尊贵的状态。
地下一层由泳池、健身房、储藏室、更衣室等多功能区域构成会所的空间。会所区以宽阔的泳池为核心,顶面采用铝格栅和发光灯膜模拟自然光,保证整体的发光照明,并且结合建筑通过设计手法规避掉了层高矮的问题;墙面采用石材与铝饰面,下层庭院的景观引入室内,成为会所天然的“背景墙”。
海和院试图启发的是每个同行者的灵魂深处,唤醒对于真正美好的集体记忆,如若能在生活的点滴中增添一丝雅趣,贴近高古的意蕴,便是传统的破茧新生。城市的脉络和人的距离不停地被重组,郊外岛居,海上别院,也许正是你城市生活的启示录。
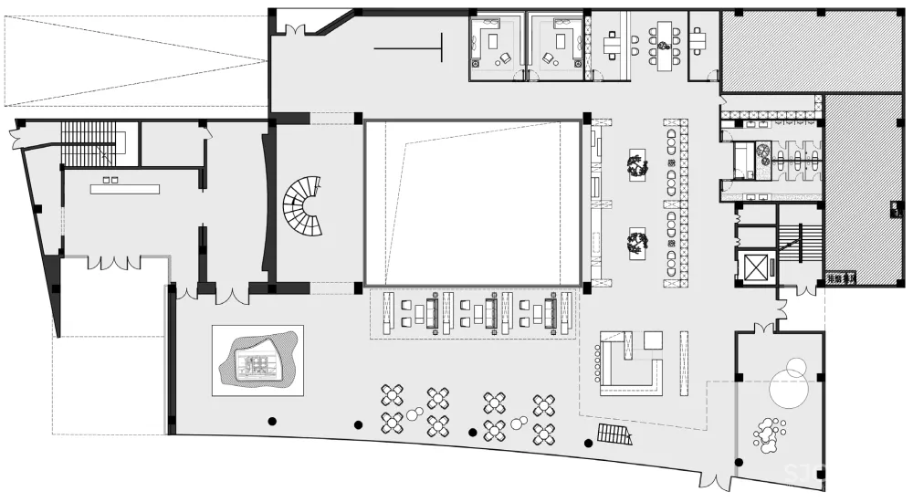
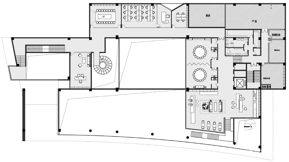
△ 1F-2F–1F
业主 Developer:中信泰富 CITIC Pacific – 仁恒置地 Yanlord Land
项目面积 Area:4000m2
硬装设计 Interior Design:SWS Group
设计总监 Design Director:邬斌 Wu Bin
设计主创 Department Head:张虎 Zhang Hu
主案设计 Design Lead:蒋亿中 Jiang Yizhong
项目团队 Design Team:SWS Group室内设计二部
摄影师 Photographer: 夏添 Xia Tian
,SWS Group创始人之一,在地产设计管理和中高端室内设计上有着超过 20年的丰富经验。他的代表作绿城·沁 Gallery 生活艺术馆与上海新鸿基滨江凯旋门样板间荣获2018年和2019年英国SBID国际设计大奖。代表作品:杭州绿城沁园 E18,武汉绿城凤起听澜,杭州绿城晓风映月,苏州华贸,九龙仓静安花园,九龙仓E18, 苏州新鸿基环贸中心,武汉中信滨江,长沙九龙仓 IFS 中心等。
SWS Group室内设计二部团队
SWS Group 建筑室内设计
SWS Group 是一家立足于中国上海,在伦敦,阿姆斯特丹和吉隆坡设有分办公室的多元化建筑室内设计事务所,由HD Studio, WS Architects 以及 Yee Home 等多个品牌组成。
SWS Group 提供国际化的建筑、室内、整体规划、平面以及产品设计服务。公司目前的项目涵盖文化项目、度假酒店、教育建筑及高端会所及住宅。

