设计不只是停留在满足功能与美学层面,更多开始关注精神层面,极简不仅仅是风格,更是一种生活态度。设计师Alexander Velgan,
善于运用少即是多的设计理念,结合质朴的材料,打造治愈的居住空间。
Alexander Velgan
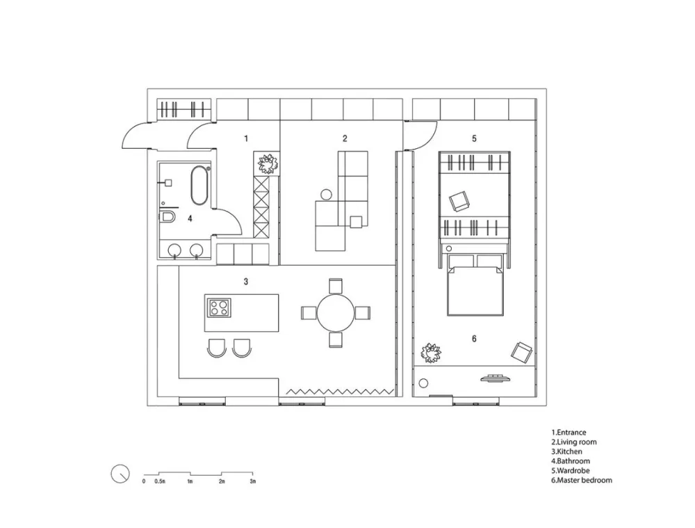
一个面积248㎡的房子,位于西班牙的项目,格调简洁、大气而不乏时尚气息,给人带来一种意想不到的惊艳。
Alexander Velgan精巧的布局,由不同明度的灰色调,搭配大面积的白色、木色组合而成,绿色的运用传递着一种清新感,让整个空间如同自然般纯粹,不张扬不做作。
餐厨区域则包含餐厅跟厨房,光线自然而然进入室内,与木纹质感的深浅搭配,让木色柜体为主体的厨房拥有更温和的个性,想必在这里烹饪定是十分惬意的事情。
卧室,是我们放下每天的疲倦,舒缓每日的压力,让自己整个人都完全放松下来的地方,所以说,还是简单一点,再带点小清新的感觉,总是能够让你感受到轻松的感觉。
让人感觉更加的清爽,从来带来更加愉悦的家居心情。
Alexander Velgan新作
的特点,气候和地形条件,以及现有的植
防御强烈的夏季风,别墅外部与周围自然的和谐结合,是主要的设计因素。
别墅的入口干净地划分了社会和私人空间。
别墅的特色在于传统的简单材料和原始表面的调色板,如石灰水、石砖,以及与现代生活相连接的遗产和地方的木材。
滑动隔断系统改变了对象,形成了独立的空间和不同的视角点。
的别墅,设计师在空间中引入优雅的美学意涵,糅合纯白调的清丽,以华美、精致的形态散发着艺术美感。
每一处细节都构成了韵律的和谐,恍若踏进华尔兹舞曲的乐域,轻柔的光影漫进来,一个旋转、变化的艺术空间跃然眼前。
108.9㎡的长型空间,Alexander Velgan采用细腻马卡龙色水磨石,透过玻璃、石英石等异材质层层堆叠,点亮清新、粉嫩质感,赋予现代风居家活力氛围。
开放式空间精准拿捏线条、色块比例,整齐划分起居动线,入门落尘区利用黑色展示层柜,相映黑框清玻璃橱窗,消解大面积色块沉重感,客厅主立面善用大理石云理与间接照明,搭配雅白柜体勾绘宛如山水墨的恬静雅致。
地面则由温润木质转换成水磨石,象徵公私空间转换,斑斓质地一路从日光餐厨延伸至卫浴,将黑白调性石材与肌理交织相融,妥当调和衝突美感。


啊啊啊啊