每个人都渴望从不规则的生活中获得和谐与安宁的居所,Artem babayants工作室坚持摆脱空间的不必要装饰与形式,从功能元素的完善性方面重新考虑空间的意义。
项目位于莫斯科郊区,设计师基于光线与自然,设定了基本的空间形式,将材质的最原始语言与自然相融合。清晰的轮廓、自由随性的构图,定义空间的极简自然基调。
简洁的外观赋予空间更深层次的内涵,苛刻的空间比例感,不能容忍一切的细微瑕疵,但这正是极简空间的理想形式。
在森林环境中,整个空间的格调也不自觉地与森林呼应:灯的细长线条模仿了松树树干,柱与樑的纹理描绘着淡淡的原木感。⠀
脚下这张地毯,细腻而原始的纹理有着独特的魅力,做工处于精致与复杂之间,传递着自然而舒适的信号。
空间的自由、舒适、宁静,从各个角度散发而来。极简设计是极端之间的微妙平衡:朴素而舒适,沉稳而与众不同,简约而豪华。
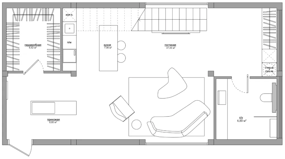
首层空间从入户起就尊重着整个布局的极简统一,墙面的质地贴合自然,无踢脚的简洁感蔓延至整个区域。
复杂与奢华正在远离人们的视线,质朴的简约格调正在迅速的占领人心。在生态与生活中找到一个平衡点,是设计师在这个项目中始终坚持的初心。
设计要从居住节奏中体会到快乐,超大尺度的开放将空间与生态相融合,更贴近自然的气息,质朴而舒适。
卫生间位于首层,墙面接近裸墙的材质简约而自然,顶部的镂空带来丰富的采光,不同于以往的立面窗采光,效果更为舒适高级。
简约的空间设计会让人觉得少了什么,不着重做装饰性点缀也是设计师的本意,看似轻描淡写的空间实则蕴含着更为复杂的取舍。
现代感与生态美平衡的卧室,位于整个空间的二层,四周落地窗让人仿佛置身森林,视线被茂密树冠形成的卧室背景墙吸引,没有装饰吗?大自然会给你最美的答案。
二层另一侧的收纳间也很是特别,高高的柜体会阻挡欣赏美景的视线,设计师将收纳都设计为矮柜,不浪费一丝一毫美好。

