“因为一个国家,最好看的风景
就是这个国家的年轻人”
正弘专注于高端奢侈品运营。郑州悦云境洋房产品,洞悉当下新时代城市力量和审美语境,为有为青年量身打造。
219平米的洋房户型,锐意不减,设计以「挺立于时代前潮」为主题,融传统文化、城市生活、建筑审美、生活方式,从空间的释放,到生活功能需求,由内而外演绎了一场优雅、温润,轻奢风的洋房美学。
回归青年生活方式的「轻奢」定义
生活中精神层面的仪式必不可少,让身心得到真正归属感,才能赋予理想人居更多可能。
悦云境洋房,精细考量人居生活尺度,以回归青年生活方式的「轻奢」定义。设计拒绝一切浮夸与奢华,意在诠释人居空间的高贵轻奢质感。空间最大的亮点,在于看似质朴的原木在形式转换的加持下,自然呈现精致的空间力量。
整体造型简洁,摒弃一切多余元素的赘述,通过细节材质的变化陈述空间,去表达一种不流于大同的审美意趣,回应着当下青年人群对文化的理解与认知。
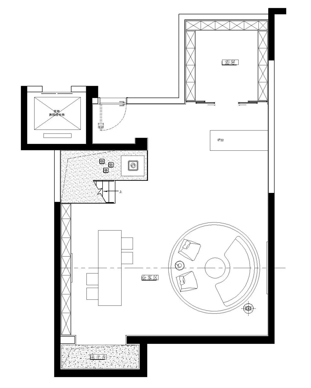
整个三层空间,最大特色在于首层与顶层为跃层设计,客厅挑空跳脱出单层扁平化的局限,这也是该户型的最大特色。设计希望强化这一挑空优势。因此立面梳理希望通过简化造型、元素统一等手法去放大空间的心理感受。
你会看到,强调低调高雅的纵向栅格墙贯穿整个空间。特别是客厅纵向木质栅格与横向白色石材的构成形式,辅以皮革,简洁又现代,空间得到最大限度拉伸。无论社交会客、家庭互动,都给予居者更开阔的体验。
光影律动的木格栅,赋予了空间丰富的变化,给生活带来质感。而现代简约的家具,统一高级灰色调,搭配水墨氤氲艺术元素的介入,营造了洋房沉稳、宁静的空间气息。
以契合现代青年的生活态度为核心
设计以契合现代青年的生活态度为核心。客餐厅采用开放式布局,迎着向阳面给予生活优渥的成长性和自由度。双层中央挑空结构,设计将各功能区融汇在一起,良好的采光搭配绿植给予生活热烈的生活色彩。
生活的本质是自由。而所谓自由,不是随心所欲,而是自我主宰。地下一层为居家休闲区域,设茶室与酒窖。居者亦可根据家庭结构、兴趣爱好,打造影音室、家庭图书馆、健身房等,让生活意趣在居住空间内得到延展。
该空间层高有限,酒窖天花采用银镜,纵向空间被无限放大,配合光影的浮动,呈现了空间的高品质生活方式。
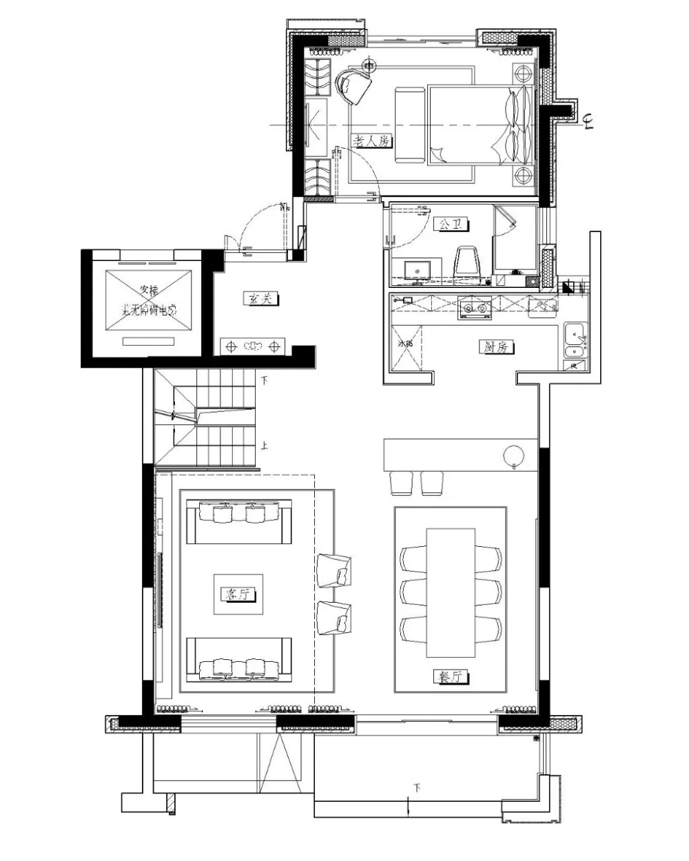
卧室作为休息的私享区域,顶层设主卧与次卧空间,静享安静、沉稳的独处时光。设计同样摒弃了浮华的装饰,以一种简约优雅的设计语言,及黑白灰三色的写意去呈现空间。
值得一提的是,主卧床头背景装置,醒目而具当代个性,彰显了富有质感的家居氛围。
次卧的设计手法更为凝练,一抹红提亮了空间的色调,明与暗的色彩对比,鲜明又利落。
正弘悦云境洋房,设计洞察特定人群生活方式与态度,突破传统却不丢失其灵魂。一层共享天伦之乐,一层轻松享受静谧的独处,以独特的设计手法打造了轻奢的高级质感,带给人一种精致且奢华的现代洋房美学新体验。
项目名称:郑州正弘悦云境洋房样板间
主案设计:王光辉、刘小羿、李洋
完成时间:2020.06
太谷形上(Taigorge Design)由王光辉先生创立,自2010年成立以来,一直专注于商业地产设计,目前已与融创、龙湖、金科、中粮、远洋、正荣、北大资源、鲁能、正商等一线开发商建立战略合作。公司以合伙人制度吸纳更多专业的设计与管理人才,融合空间设计、商业策划、项目管理等多元领域,致力于为品牌开发商提供商业地产设计研发及顾问服务,探索当代设计与商业价值的更多可能性。
“赋予能量,创造价值”是我们对空间设计的追求和终极目标。在我们涉及的会所/售楼处、样板间、甲级办公等服务领域中,我们始终将人与空间的需求放在第一位,通过创造性手法重构空间之于人的真实需求。我们推崇设计的包容性与持续性,永远以接纳的态度、多元化的创作思维,探寻设计的规则和价值,并以最具开拓性的创新与融合,演绎空间的可能性和商业价值之间的精妙平衡。

