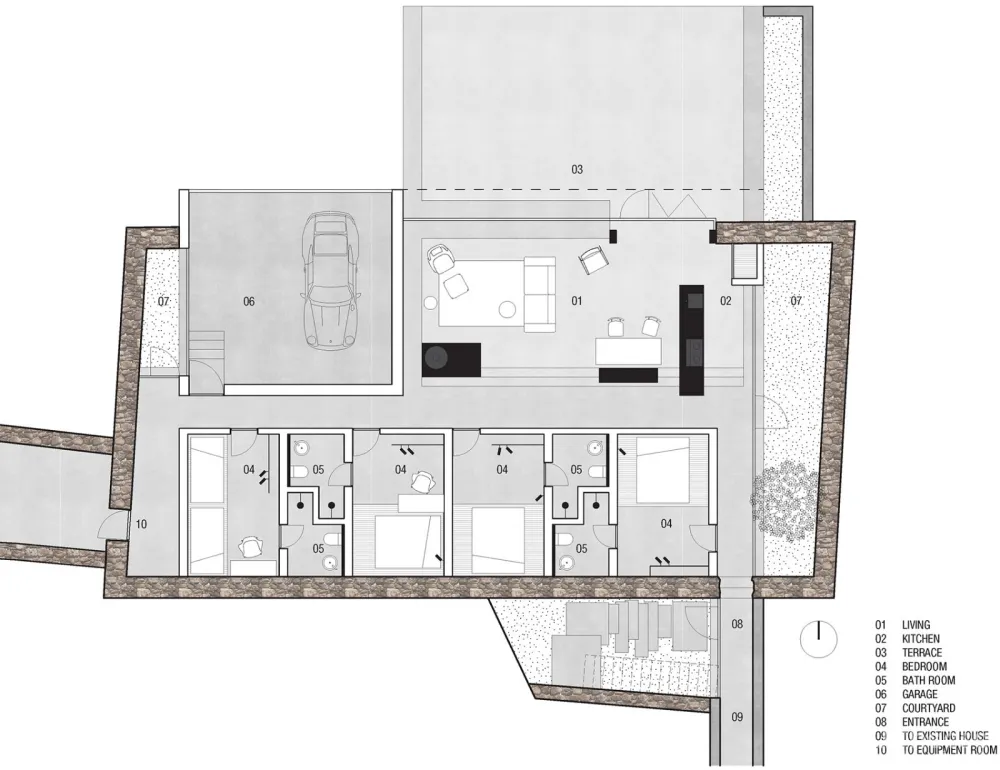
由旧仓库改造的4卧室住宅:项目坐落在北京的北侧,长城脚下。项目现有结构最初建于上世纪中叶, 作为地下仓库使用,储藏该村出产的水果。仓库完全由天然石材建造,体积规模为21x11x4 米的长方形。
业主在用地南侧拥有一栋房子,地形高于本项目,可以俯瞰仓库屋顶。设计的委托范围是将该仓库改造成4间卧室的住宅,也可以被认为是旧宅的扩建。
仓库朝北,部分低于周围地形,部分嵌入地形。为了给新住宅创造一个宜居的环境,需要针对这些特殊条件提出一个解决方案。设计策略主要集中在主要方向:增强储物空间和石墙的特征,将可能多的光线引入室内空间,并保留客户现有住宅的全景。
现有的天然石墙在很大程度上被保留,设计充分暴露天然石墙以体现其自身不可取代的存在感,新的抛光混凝土结构和白色抹灰内墙与其产生强烈对比。
只有在北侧,原本的天然石墙被一个大的玻璃幕墙所取代,土壤被拆除,与主立面对应地形成了一个宽敞的露台,延长了起居室与用餐区的长度。同样在北侧,车库是一个木材包裹的体量,被镶嵌在整体的体量里。
在开放式起居室,定制的开放式壁炉和黑色厨房柜台形成了2个视觉焦点,而车库的木材完成面柔软了起居室的背景。
新屋顶的设计最大限度地引进了自然光。现有的屋顶被两个混凝土楼板取代,这两个混凝土水平向的元素与石墙相互独立,被设置在两个不同的高度。北部较低的屋顶覆盖客厅和车库,同时也是屋顶露台。它短于现有的石墙长度,因此房子的东部和西部自然形成了两个花园。这些花园从不同的角度增加了光线的自然。
南部较高的屋顶向西转移,允许通过通往较低屋顶的露台,避免向东院投射阴影。屋顶在不同的高度上对周边梯田式的地形做出回应。两个屋顶之间的缝隙使更多的自然光进入建筑的中心部分,并在温暖的季节改善自然通风。
较高的屋顶下,南部是卧室。由于他们高高的天花板和高耸的窗户,我们试图形成让使用者能产生享受沉思的感觉。每间客房均设有私人浴室。卧室由一条通道连接,通过三个台阶与相邻的生活区相连。在卧室的旁边,项目的东南角,一条隧道连接着新房子和现有的住宅建筑。由于新旧住宅被一条区间道路分隔开,因此这条连接新旧住宅的通道被转移到了地下。
因此,从业主现有住宅的露台上可以看到两个漂浮的绿色屋顶以及长城。
场地平面图
设计分析图
模型
设计: 木答答木建筑事务所
WWW.MDDM-STUDIO.COM
团队:
Margret Domko
Momo Andrea Destro
Amirlin Sunderiya
客户:私人
起居室家具与地毯:Hay, Kvadrat
厨房岛台:北京巢居美家具有限公司
摄影:Jonathan Leijonhufvud
WWW.JLAP.COM
©Jonathan Leijonhufvud
©MDDM STUDIO

