设计师Ira Kulyk新作,这套素雅的简约住宅面积180㎡,项目位于迪拜,没有过多的华丽装饰,整个空间设计师以单色为主,却拥有极度迷人的优雅。
拥有大大的窗户,简洁舒适,当阳光洒下来也是如此的惬意。
白色调加上木质鱼骨拼地板的搭配很好的诠释了家的温馨的感觉,简约原木风有一种置身于大自然的感觉,清新优雅,有一种与世无争的清净。
餐厅木色和白色的搭配,清爽简洁,艺术吊灯很有特色。
颇有艺术感的单色旋转楼梯,整体来看,也想一个流线型非常强的玉带,真的是非常美腻哦!
Ira Kulyk,很喜欢自己从事的设计工作,擅长小空间设计,为业主提供一个功能齐全,美观而舒适的生活空间。
SAINT-P Apartment
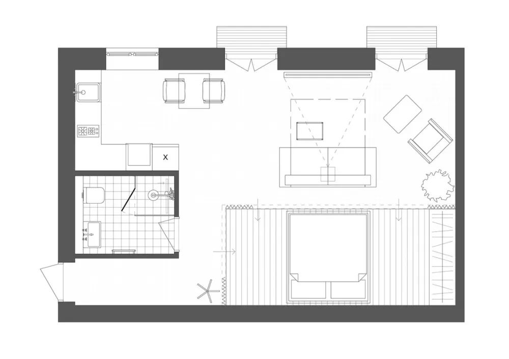
44㎡的小公寓,整个空间以白灰色为主,实用性强,简约独特的设计感,
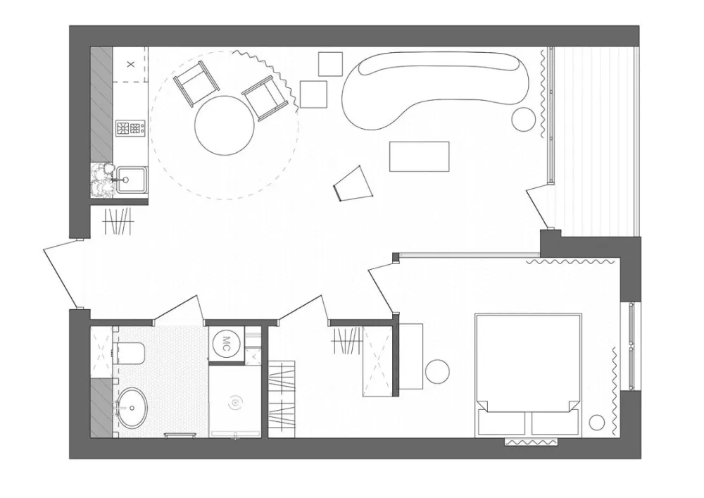
这是一间面积为54㎡的公寓,房子格局是比较端正的,
设计师把客餐厅结合起来,简洁的设计,水磨石的地板,通过设计师精心的设计,让这个家看起来更大气!

