项目位于北京 CBD 高层住宅的高区,屋主 Nico 是一个在CBD上班的海归小哥哥,喜欢简约,同时又追求优雅与质感。
平时热情好客,所以“家”通常是他与三五好友音乐创作,把酒言欢的居所。为了提升居住的生活品质,业主邀请好友设计师马志成来进行空间改造,希望让空间能够在有限的预算内,更匹配自己的生活方式、审美品味。
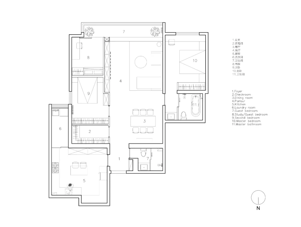
改造前空间是一个办公室空间,原结构为中规中矩的两居室,室内只有一侧的采光,导致厨房以及客厅的一侧常年昏暗,因为一些隔断墙的存在,室内动线相对相对复杂凌乱。
考虑到屋主的待客、办公需求,以及父母偶尔回来住宿,设计重置了空间格局及功能,将原本的次卧分别置换成办公书房兼具待客留宿功能,以及一个独立的次卧。
格局上以客厅及餐厅为核心,穿插多个空间功能。将业主的功能诉求拆分为公共功能及私密功能,然后将公共功能组合为客厅、餐厨和门厅一体化的“盒”空间,其余的卧室、办公空间、衣帽间分别与“盒”空间相连。
房间采光最好的位置分别留给了使用频率最高的办公空间以及客厅。
在保证功能实用性的基础上,空间表现形式尽可能的简洁,整个客厅与餐厅的立面平整而又自由,每扇门都像一个画框,如果说住宅是一个优雅的画廊,那么生活场景便是是其中的艺术品。
设计打通了客厅与餐厅的关系,同时,利用吊顶结构、壁龛、对于餐厅及客厅进行分割,让两个空间的界面相对模糊,同时阳光也能充分照射到餐厅角落。
沙发后面的泼墨画是由房子的主人自己创作的,放在了空间中最适合的位置。成为了水泥漆墙面上提亮气质的装点。
沙发采用和水泥漆相近的色系,从而与整个空间融合。
地毯的选择上,选用科帕的牛皮地毯,深色的地面上配上一块,打破家具的方正形态的同时,为空间增添复古味道。
空间的装饰上,以中性的灰、白、黑为主色调,同时用适当的木色调和平衡色彩关系,以精致的家具作为点缀,简约又不失优雅与温度。
餐桌、长凳选择了NORHOR的相对经典的款式,搭配三把中古Giancarlo Vegni的椅子,作为业主聚会最常使用的空间,餐厅的尺度相对宽阔,三五好友相聚时,能够自由舒展的享受空间带来的惬意、格调与美。
灯具的选择上,选用了Frandsen的复古款,局部的一些金属质感点缀,让空间更为灵动透气。一面纯白隐形门及另一面水泥漆的设计,使得不论从哪个角度看餐厅,都具有不同的美感。
利用地台将书房与客厅两个空间串联起来,不管是阴雨天或是艳阳天,在安静的午后躺在地台上看向天空,感受时间仿佛静止般的美好。
书房空间搭配一把舒适的藤椅,考虑到不同的功能的使用频次,合理的设置空间的功能,访客留宿时,可以放下墙面的折叠床,供访客使用。
书房空间看向地台,下午时分,阳光可以直射进室内,在书房和客厅两个空间都可以感受到阳光进入室内而产生的阴翳之美。
04 / 卧室及卫生间
调整材质配比,营造温馨感
卧室空间,沿用了客厅的材质关系,但是调整了木色的占比,从而营造出温馨的,好入眠的空间氛围。
床头一副抽象的画作打破了整面墙面的单调,不同木质结构互相叠压的状态产生了结构带来的美感。
洗漱空间独立与卫生间外面,分离后的空间尺度更为舒适,墙面使用防水涂料,保证了长期使用的打理方便的特点。黑色的点与线点缀了整个白色空间,让洗漱这件事情也极具画面感。
考虑到屋主对于烹饪的需求,以及日常早餐需求,厨房空间在设计一个中岛的同时,周围设计了非常长尺度的操作台面,可以同时兼顾各种菜品的烹饪。
同时墙面设计了超多的储物空间,每次做完饭,都可以将厨房收拾的干净整洁,井井有条。
设计的全程,作为设计更多是提供了一些生活场景、一些关乎品味的可能性,有趣的是,屋主能够与设计师共同深度参与到方案中与设计共建方案。
未来空间的内容或许会随着屋主的经历更加丰满,更多的可能是关于墙面壁龛摆放的小心思,关于探店时候心仪买下的一把椅子,关于一次旅行中其貌不扬的纪念品的温度。

