品牌形象的打造与升级成为越来越多制造业企业提升软实力的方式之一,走过十年的奥轩服饰期望用崭新而有品位的形象传达他们的精益品质。
Brand image of the creation and upgrade has become one of the ways for more and more manufacturing enterprises to enhance their soft power. After 10 years, Ao Xuan costume expects to convey their quality with a brand new and tasteful image.




◑ 无声的语言 ◐
-The silent language-
企业总部形象是企业品牌最直观的展示,无需言语就能在无形中向参访的人传达企业的品味和文化。
Corporate headquarter image is the most intuitive display of enterprise brand. It can convey the taste and culture of the enterprise to the people who visit without any words.
奥轩服饰从原旧办公总部搬到国家生态工业示范园区内的工业园。该项目是奥轩企业总部的公共空间,一楼的架空层及环绕架空层的坪地, 这里被赋予“共享”的理念,承载走秀、发布、展览等公共功能,旨在打造成集环保、自然、艺术与人文关怀的场所。也是奥轩对外品牌展示的一个重要窗口。
Ao Xuan costume from the old office headquarters moved to the industrial park in the national eco-industrial demonstration park. This project is the public space of Ao Xuan headquarters, the elevated levels of first floor, it is endowed with the concept of “sharing”, carrying the public functions of show, release, exhibition, etc. It aims to create a place of environmental, natural, artistic and humanistic care. It is also an important window for the display of Ao Xuan.



◑ 自然的对话 ◐
-Natural dialogue-
设计师对原有的建筑进行了改造,将与外界交界的南北墙体打通,变成通透、对流的架空共享空间,非室内,亦非室外,把风、光、景的自然元素置入空间。
The designer reformed the original building, break through the wall between the north and south. Turn it into a transparent and convective overhead space, not on the indoor or outdoor, place natural elements of wind, light and scenery into space.
自然对流的风向设计,放弃了人工温度设备,只有穿堂而过的自然风,体验四季的变化。
Wind direction design of natural convection, abandon artificial temperature equipment, feel the natural change of seasons by the wind passing through the hall.

平面立体图

对流图
空间设计满足多功能与针对不同人群的需求,从T台秀、产品发布、展示展览、外访会议交流等针对客户的起到展示品牌的作用。建筑空间里的电子屏幕和阶梯,摇身一变就是小型观影室。让更多的工人参与公共空间的活动,并融入其中,体现了企业的人文关怀。合理的空间动线布局让空间真正实现共享。
Space design should meet multifunctional requirements for different groups of people, the space design meets the public function requirements of T-stage show, exhibition, meeting and communication. The electronic screen and steps in the space are transformed into small viewing rooms, let more workers participate in the activities of public space, and join into it. Which reflecting the humanistic concern of the enterprise, and the reasonable lines allow space to be shared.

灯光图



空间的天花板并无任何一盏灯,取消昼日照明,而是利用地面光束的漫反射来实现照明。或许只有在夜幕降临时,才会被人讶异这设计,可以如此感受到一天的自然气息变化。
The ceiling does not have any lamp, cancels the day lighting, but uses the reflection of the ground to achieve illumination. Perhaps only at nightfall will be surprised to feel the natural changes of the day.
架空层的前坪后庭都进行了规划,前坪的花木、座椅,后庭的水景与植物墙,都与建筑空间融为一体。水、木、花的自然背景,既打破室内外的界限又体现了环保的理念。
The front and back atrium of the overhead floor are all planned, the flowers and trees, the seats, the waterscape and the plant walls are all integrated with the architectural space. Water, wood and flowers as background which break the limit between indoor and outdoor, but also embodies the concept of environmental protection.



◑ 美学的觉醒 ◐
-Awakening of aesthetics-
结合企业产品的特性。设计师以黑白灰为空间的主色调,强化企业的独特性,同时通过构建艺术感和建筑感,诠释属于奥轩的企业美学。
Combine the characteristics of products, the designer takes black, white and gray as main color of the space, strengthening the uniqueness of Ao Xuan. Also interprets the aesthetics belonging to Ao Xuan by constructing the sense of art and architecture.
所有功能房间以单体建筑的形式呈现,错落有致、大小不一。这些盒体,给空间带来了更多的建筑体量感。
All functional rooms are presented in the form of single buildings, scattered and of varying sizes. These box bodies, create the sense of volume in space.

结构图


将原有建筑结构几何图案,在形态上伸展变化,楼梯与天桥一贯而成,黑色拉丝不锈钢隔板的运用,把每一个简单几何案变为有雕塑感的作品,空间连接功能的实用性与艺术性的融合,让视角空间有了灵动。
Extended and changed the shape from geometric patterns of original architectural structure. Stairs and overpass are made by brushed stainless steel baffle which make every simple pattern into a work with sculptural feeling. The combination of practicability and artistry of spatial connection function makes the space full of sensibility of art.






效果图

总规划图

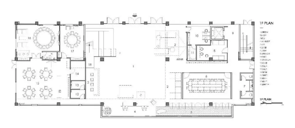
一层平面图

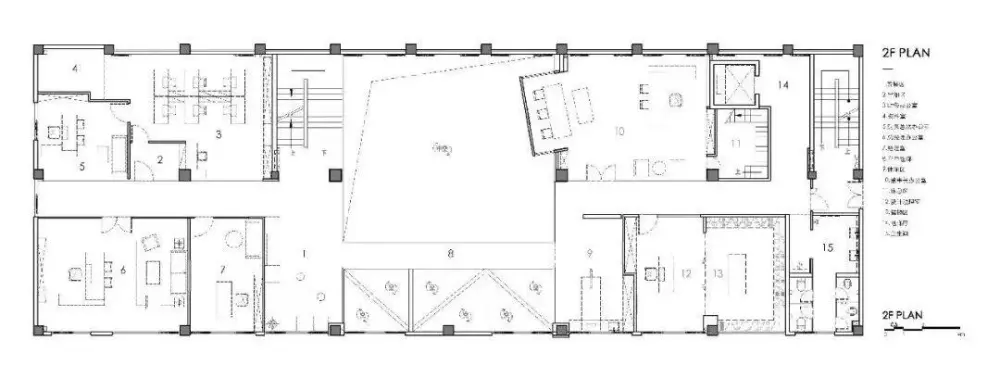
二层平面图

轴测图


立面图
项目名称 | AX-共享
Name | AX-Sharing
项目面积 | 2000㎡
Area | 2000㎡
项目地点 | 中国佛山
Location | Foshan,China
设计单位 | 瑞坤国际—正方良行设计公司
Design Unit | Lucien International—Masanori Design
主创设计 | 徐庆良
Designer | Qingliang Xu
设计团队 | 黄缵全
Design team | Zuanquan Huang
施工图深化团队 | CHL施工图深化
Drawing deepen design | CHL drawing deepen design
设计时间 | 2016年8月
Design time | August 2016
开放时间 | 2018年1月
Open time | January 2018
主要材料 | TOA太涂水泥基艺术涂料、费罗娜陶瓷、灰色大理石、铝蜂窝复合不锈钢板
Main material | TOA cement paint、Flornia ceramics、Grey marble、Aluminum honeycomb composite stainless steel plate
摄影师 | 吴永长
Photographer | Yongchang Wu

徐庆良 | Terry Xu
高级室内建筑师
瑞坤国际—正方良行设计创始人·首席设计师
80后新锐设计师
十八年行业浸陶,于2008年开创个人事业,现为中国建筑学会室内设计分会理事。
以建筑思维来思考室内设计是其一直贯穿作品的理念,并不拘泥于特定风格,更注重将项目背后的蕴意和设计师的生活体验共同融入设计,赋予空间想象和思考,唤起人们内心那些美丽、宁静、讶异等情感。引导人们去发现人与空间的艺术对于美好生活的更多可能性。设计作品在国内外斩获众多奖项,曾获第23届香港亚太室内设计大奖赛金奖。

瑞坤国际—正方良行设计,拥有一支充满活力与创造力、多元背景而又价值观一致的团队,是以国际化视野引领的,跨越品牌、空间、视觉、产品等多领域的创新型设计公司。这里没有所谓特定风格的设计,更着重深入挖掘项目背后的文化和内涵,并以当代设计语言为其构建独有特质的场景。
公司专注于居住类、办公类和新商业类三大系统的设计研究。之于这三大场景的设计理念,正方良行始终坚信设计能引领生活新态度、创新工作模式和激发新商业价值。独特的设计理念深受市场认可,设计作品于国内、外各类设计大奖中屡获殊荣,多次荣获全球室内设计权威奖项“APIPA″香港亚太室内设计大奖。
原文始发于微信公众号( 马蹄室内设计网 ):正方良行 | 承载人与自然的共享空间

