住宅应该是人们灵魂的依靠,绝不会满足于商品的属性,而我们现在很多居住环境既没有丰富的多样性也没有对居住的渴望和梦想。
哈尔滨中海合院,中式合院别墅,前庭后院,自成一脉。本案建筑面积415㎡,结构分为地下一层,地上三层,可满足三代同堂的居住需求,整个室内功能丰富,以人为本,承载了中国家庭的一种生活志趣和惬意居家。
休闲娱乐的多元平台 | 社交空间
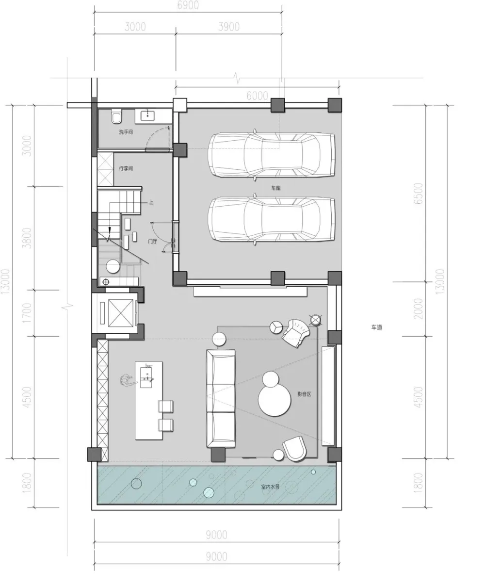
一侧采光井的开辟,将负一层的光感激活,阳光或月色,均可挥洒空间。5.5m的挑空增加夹层设计,极大地丰富了地下空间的功能性表达。大面积的酒柜通过异形的结构处理与夹层相接,成为视觉的中心点,创意的展现为社交空间带来趣味和活力。
夹层展示架为主人的收藏提供了恰当的空间,储物间隐身于夹层入口墙体之内。采光井下设计了一水池,一侧幕墙制造水景,光线通过水的折射漫散,墅居生活的悠然与舒适不言而喻。
家庭生活的温馨共享 | 家庭空间
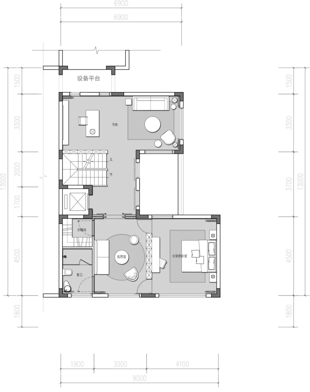
客餐厅的方正布局和朗阔尺度,包含了品茶区、备餐区、用餐区、休闲区,一家人的大部分时光会在这一层共享,会客起居,动静分离互不打扰。
茶室与客厅融为一体,摒弃了寻常的客厅搭配,以一种较为庄重的形式体现。圆餐桌是中国家庭更青睐的形体,大理石的台面显得冷静而高雅。优质石材的天然纹理与素色的简练界面,勾勒出空间营造的主要脉络。通过简化的布局、色彩、线条,让居者感知内心中真实的需求。水晶、布艺、金属材质互相交织,呈现现代时尚观感。
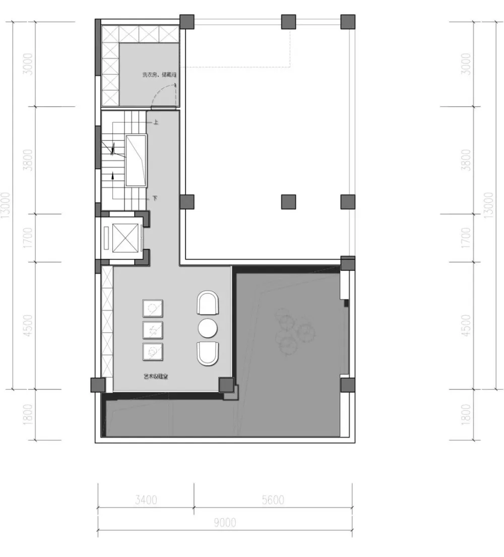
书房置于二层,半开放式的布局让空间兼具隐蔽性与流动性,室内的视野和光线俱佳,家人们的阅书写字可平心静气,不被干扰。
构筑情境的轻松愉悦 | 休憩空间
休憩空间设计基于对使用者的洞察,让居住的每一个主人翁融入到空间氛围中,唤起家人对愉悦生活的热情。卧室皆为带衣帽间、卫生间的全套房设计。
女孩房完全不是小空间的局限表达,开间可达7米,奢阔的尺度能够充分地营造一个愉悦与趣味的童话梦境。浅粉、深蓝、明黄、雪白……温柔的地诉说着空间的柔软氛围。温柔的织物、多样的家具造型为孩子创造一个友好舒适的环境,让成长充满色彩,不失趣味,更饱含自由与纯真。
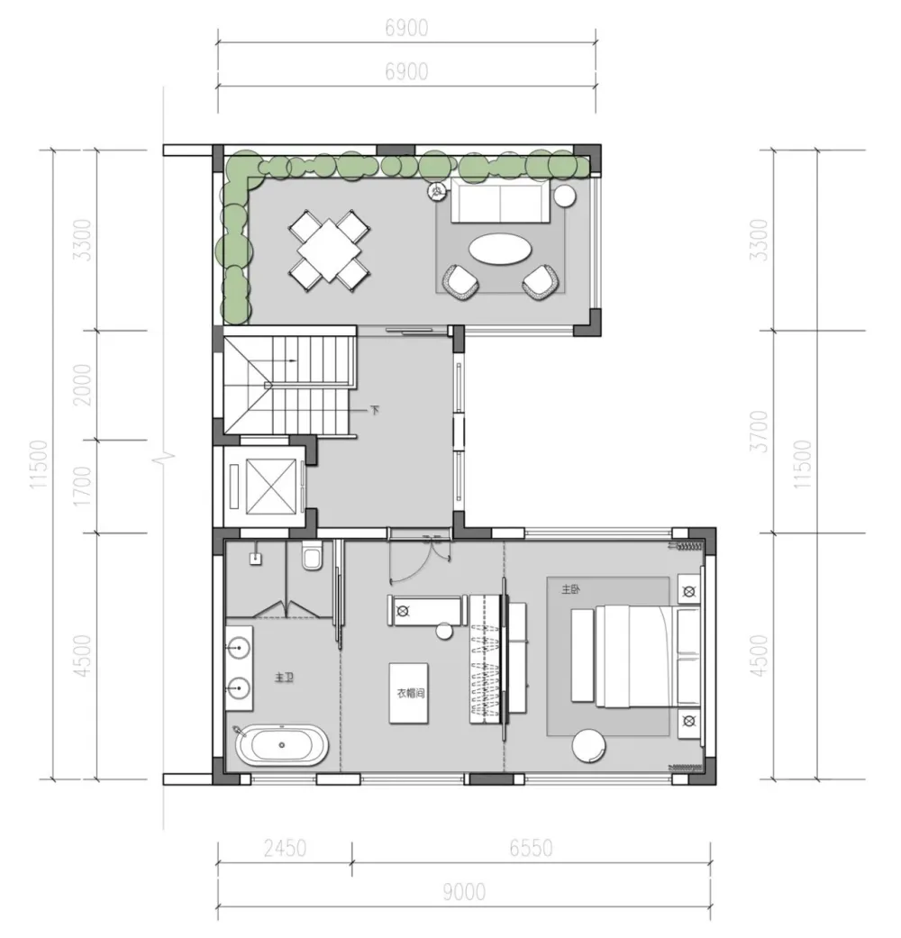
三层为顶层布置主人房,另一端为露台观景平台,私密性舒适性俱佳。主卧色调清雅,白灰色、孔雀蓝、深沉棕浓淡相宜。主卧无主灯设计,细节灯具局部照明,渲染温和气氛,雅致的挂画和红枝花器再增添几分暖意,素雅与和谐自然衔接,使生活的实用性和对艺术文化的追求同时得到了满足。
对设计师而言,让空间自然打动人,引发人们对于美好生活的畅想,是设计的灵魂所在和最终价值体现。
项目名称:哈尔滨中海合院
项目地点:黑龙江·哈尔滨
设计面积:415平方米
室内设计:李益中空间设计
软装设计:李益中空间设计
设计团队:李益中、范宜华、熊灿、刘晓红、俞常青
李益中空间设计成立于2012年,总部位于深圳,在成都设有分公司,是一家有策略思维、追求空间气质的精品设计公司,致力于地产设计、文旅设计、商业设计、私人住宅的研究及高级定制化设计服务。
公司现有100余位专业设计师,秉承“策略思维,人文气质”的设计理念,在建筑与室内设计专业以理性科学的设计策略及方法,为客户提供设计与工程的最佳解决方案。在设计中,我们亦关注当代美学、文化、艺术与功能的合一,根据每一个空间的特性,塑造其俊逸灵动、润雅圆融的人文气质。
福州融汇温泉城别墅样板间


😊